查看完整案例


收藏

下载
在现代环境下,拥有“经典”生活功能的新家庭住宅。
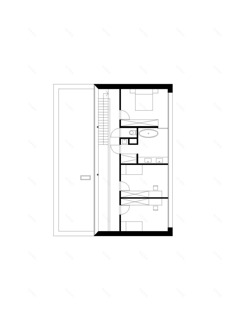
地面分为两个区域,前部有次要功能,后部完全打开,朝向田野上开阔的视野。一楼有3间卧室和一间浴室的空间。
简单的生活程序和逻辑布局反映在外观上的一个干净的对比。
Firm blanco architecten
Type Residential › Private House
STATUS Built
YEAR 2014
SIZE 3000 sqft - 5000 sqft
BUDGET $100K - 500K
Photos Yannick Milpas
keywords:architecture, architecture news, interiors, interior design, portfolio, spec, brands, marketplace, products Building contrasts in Bierbeek, BE
关键词:建筑、建筑新闻、室内设计、组合、规格、品牌、市场、产品建筑对比
客服
消息
收藏
下载
最近

























