查看完整案例


收藏

下载
这座150平方米的房屋位于西雅加达地区Taman Meruya Ilir,意为砖房,位于日益拥挤的西雅加达地区,占地150平方米,占地10米x15米。这是一座小巧的房子,在轻质砖、黑色和粗糙的混凝土纹理上涂上了橙色的颜色,表现出谦逊而独特的外观。
他说:“我们有一个梦想,就是拥有一座像巴厘岛别墅一样的房子。房主费迪安·塞普蒂奥先生和Joice Verawati Realrich Sjarief女士解释说:“我们的房子不仅仅是一个功能性的房子,而是一个让人感觉自然的生活和成长的地方,我们真的很喜欢住在宁静的房子里。”客户是平面设计师,谁愿意拥有一个紧凑,可持续的房子。
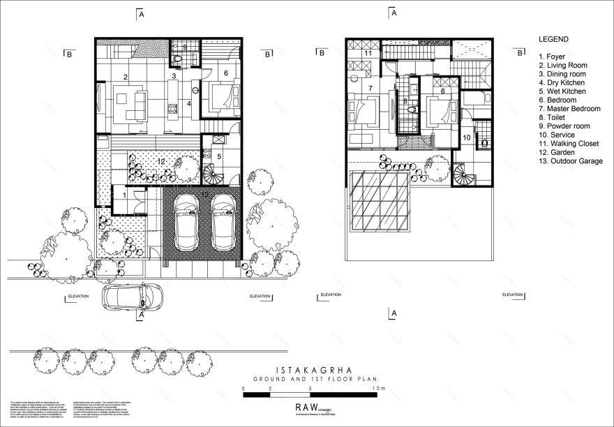
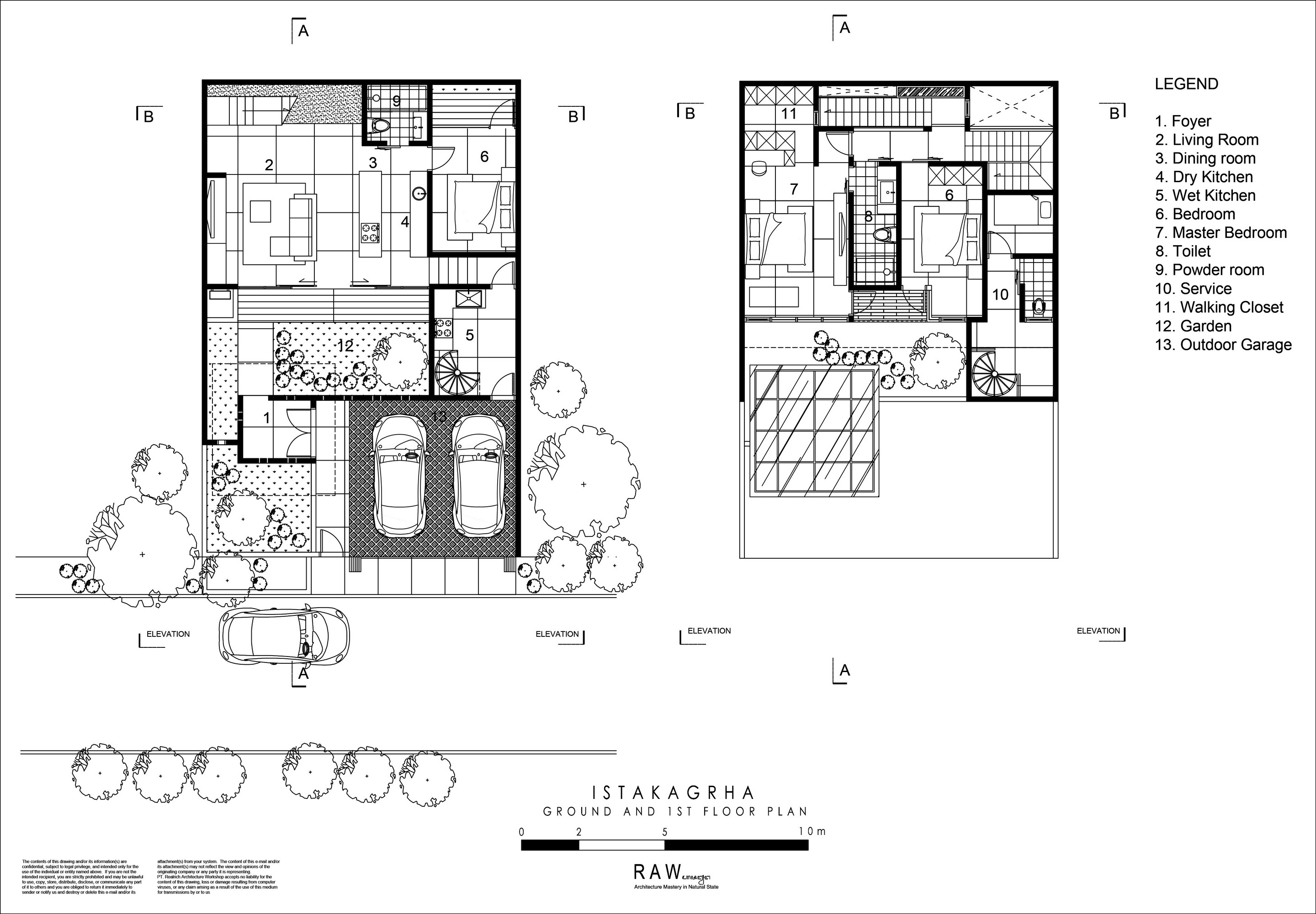
土豆蔻的建筑,内外分开,用轻质砖砌成的屏障墙的景观。这种组合是与固体空洞的模式堆叠,提供隐私和安全的感觉,同时允许阳光和空气流通在客厅内。上午9点,房子面向东面,允许晨光照射到空间。楼梯位于西侧,西侧用砖墙进行保温。通风器设置在房子的西侧,从地面到第一层楼梯上方,通过空气叠加提供新鲜的空气循环。房子有一个露天接待处作为前厅,那么客厅、餐厅和烹饪之间就不再有隔墙了,在起居室里,厨房也很重要,它的最终布局是根据主人的家庭习惯很少调整的结果。第二层的唯一封闭空间是客房,它兼作工作空间和客房。一个简单的门厅和一个与楼梯相结合的轻型水井,在建筑西侧的接收区之后放置艺术作品。第二层是私人空间。走廊的尽头是一间卧室,共用浴室和一个步入式壁橱。浴室配有一个简单实用的淋浴区域。该建筑选用的材料是根据雅加达现有的最佳工艺选择的,采用混凝土结构是为了提高成本效益,工程用材是因为外观和轻巧,外墙和遮阳用的金属框架是由于耐用性的缘故。
根据每种性状使用3种类型的砖。首先,是轻质砖,200 x 600 x 100毫米,为正面。轻质砖由于重量轻、精度高、造型方便,可作为雅加达最常用的材料-橙色砖-立面/二次成型,第三种为瓷砖50 mm×150 mm×10 mm,用于覆盖楼梯墙作为保温和内表面。另有一间卧室、浴室和一条通往一楼阁楼的楼梯通道,由一条走廊连接起来,这条走廊通向通往楼梯井和楼梯间的空隙,并通过紧凑的空间通向楼梯。IstakAgrha展示了雅加达小房子的一个例子,小块土地采用可持续的设计方法,并通过简单的形式,即堆砌砖,从外到内保持隐私。
客户:Ferdi Septiono先生和Joice Verawati女士与家人
建筑师事务所:原始建筑
首席建筑师:Realrich Sjarief
项目组:Bambang Priyono、Tatana Kusumo、Miftahuddin Nurdayat、Rio Triwardhana、Anton Suryanto、克里斯蒂·普拉丹加、Maria Vania。
照片:Bambang Purwanto,Ifran Nurdin
总承包商:
主管:Sudjatmiko和Singgih Suryanto
建筑经理:Eddy Bachtiar,Jasno Afif Angga
结构工程师:John Djuhaedi
木匠大师:Syarifuddin pudin
机械和电气工程师:Bambang Priyono、Andi、Karim和Hamim
景观:Ferdi Septiono先生和Joice Verawati女士与家人
组长计划和说明:Miftahuddin Nurdayat,Tatana Kusumo,Rimba Harendana
项目年份:2016
供应商名单:
木材:DPW
铁:林格·穆利亚
铝框架:YKK卧室,起居室,现场制造,供服务。
灯:定制
厨房:定制
托托。
地面:裸露混凝土。乙烯基陶瓷400×400
石膏:Jaya板
水泵:石木祖
热水器系统:Rinai
雨水收集:
立面用木材黄铜技术:
铰链:德克森,西萨
手柄:肯德,西萨,德克森
门:DPW
Firm R A W Architecture
Type Residential › Private House
STATUS Built
YEAR 2015
Photos Photographer: Nurdin, Muhamad Ifran
keywords:architecture, architecture news, interiors, interior design, portfolio, spec, brands, marketplace, products Istakagrha
关键词:建筑,建筑新闻,室内设计,组合,规格,品牌,市场,产品
客服
消息
收藏
下载
最近










































