查看完整案例


收藏

下载
© Schnepp + Renou
c.Schnepp Renou
中间住房项目是如何继承共同住房项目的雄心的。由KARAWITZ机构开发的中间住房项目目前包括23个公寓、一个餐厅、一个花园和一个停车场。它是为OGIF建造的,OGIF是一家专门从事中间住房的房地产开发商。该项目的特点之一是,它继承了一个先前共同居住项目的野心,名为“Diapason项目”。它最初安排了14个家庭,一个共同的工作室和商店。第一个项目并没有用尽当地总体规划给出的全部建筑面积比率.或建筑师在最终项目中提供辅助住房的潜力。
How an intermediate housing project inherited the ambitions of a cohousing project. The intermediate housing project developed by the KARAWITZ agency now comprises 23 flats, a restaurant, a garden and a parking lot. It was built for OGIF, a property developer specialising in intermediate housing. One of the particularities of this project is that it had inherited the ambitions of a prior cohousing project by the name of “Diapason project”. It originally scheduled 14 homes, a common studio and shops. This first project did not use up all the floor area ratio given by the local masterplan... or the potential for the architects to provide supplementary homes in the final project.
© Schnepp + Renou
c.Schnepp Renou
这个地段对于巴黎人来说是众所周知的,尤其是那些倾向于在我们的CQ运河旁散步的人。在PARCdelaVillette之前几百米,在码头deMarne,它俯瞰着水,在Meurica的街道和它绘制三角形的每一侧上的我们的CQ之间滑动。这个阴谋放大了它的奇异性,在运河上一个人行天桥的开幕式上,它是由一个上层的RuedeL"ourcQ"服务的,而它则靠在街对面的DeMeurora的街道上。最后,它为巴黎提供了难得的机会,开发了一个没有相邻或相邻特性的自主建筑,并在南方创造了一个花园,并向北方提供了特殊的景观。
The lot is well known to Parisians, especially those prone to stroll beside the Ourcq canal. A few hundred meters before the Parc de la Villette, on the quay de Marne, it overlooks the water and slides between the streets of the Meurthe and the Ourcq on each side of which it draws a triangle. Amplifying its singularity, this plot is served by an upper level of rue de l’Ourcq, at the opening of a pedestrian bridge over the canal, while it leans down to street level in rue de Meurthe. Finally it offers the rare opportunity to Paris, to develop an autonomous building without adjoining or neighboring properties, and generate both a garden to the south and exceptional views to the north.
© Schnepp + Renou
c.Schnepp Renou
© Schnepp + Renou
c.Schnepp Renou
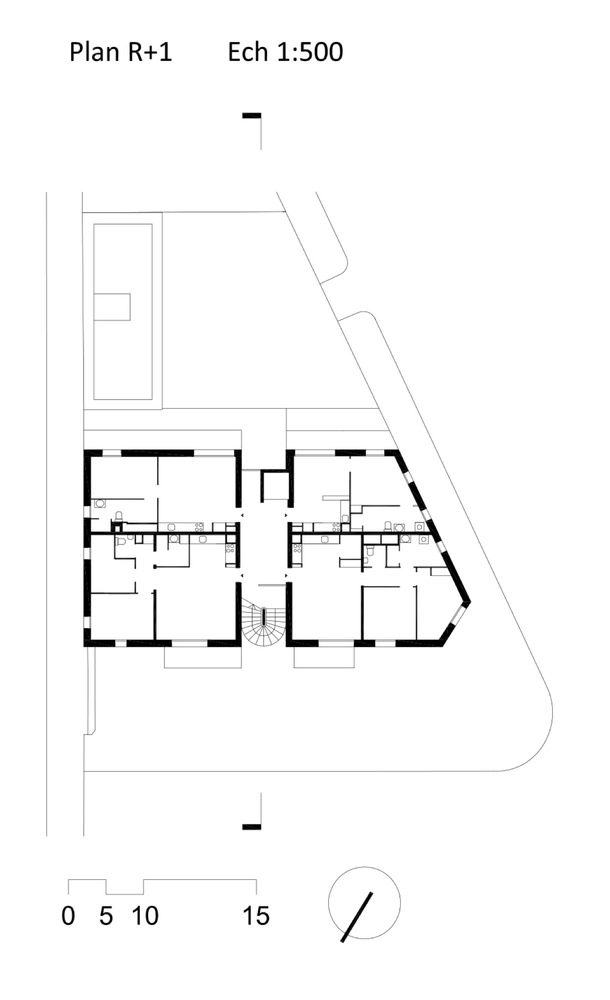
2011年10月获得的建筑许可证是当时由KARAWITZ开发的项目的一部分,但经过两项修改保持了规模。Z型复式公寓与L型公寓之间的融合被从目前的项目中删除,但它继承了项目的脊梁和一个连接花园的通道,提供了透明度。它有一个楼梯,可以容纳四套公寓,有宽敞的落地和高水平的自然照明的生物气候空间。在前侧,或者从旧工程中俯瞰大大小小公寓的运河前窗的那个,已经演变成了新的阳台。
The building permit obtained in October 2011 as part of the project developed at the time by KARAWITZ was kept to scale with two modifications. The imbrication between the Z shaped duplex apartments and the L shaped flats were dropped from the current project, but it inherits the spine of the project and a connecting channel to the garden offering transparency. It houses a staircase which allows for the serving of four apartments with generous sized landings and high levels of bioclimatic spaces illuminated naturally. On the front side, or the one overlooking the canal oriel windows on both large and small apartments from the old project have evolved into balconies in the new one.
© Schnepp + Renou
c.Schnepp Renou
原来的公共房间已经变成了独立的生活.拟议的类型是一间卧室和两间卧室,可以俯瞰运河或花园,再加上阁楼,提供了更独特的变化。它们都是双重的,受益于阳台。在运河一侧,一些窗户安装了玻璃脚手架,使最初的工程项目具有固有的多样性,并为起居室提供俯瞰水面的景观。
The former common-room has been transformed into independent living. The proposed typologies are one bedroom and two bedrooms overlooking the canal or the garden plus attic flats offering a more singular variation. All of them are doubly oriented and benefit from a balcony. On the canal side some windows are fitted with glass spandrels to perpetuate the idea of its inherent diversity to the initial project and to provide the living rooms plunging views over the water.
2016年,一家啤酒厂和一家商店开业。
A brewery and a shop opened there in 2016.
© Schnepp + Renou
c.Schnepp Renou
结构选择的重点是混凝土结构和外保温。断层被反射涂层覆盖,而涂层的其余部分是由深色木材制成的。这种外部造型与木或铝制成的内窗框形成鲜明对比。最后,“跳舞”的倾斜屋顶涂上了锌,产生了一个非常雕塑的形式。该项目符合“气候计划”的要求。
The structural choices focused on a concrete structure and exterior insulation. The fault is covered in reflective coatings while the remainder of the coating is made of darken wood. This exterior moldings contrast with inner window frames made of wood or aluminum. Finally the “dancing” sloping roofs coated with zinc generate a very sculptural form. This project meets the requirements of the Climate Plan.
© Schnepp + Renou
c.Schnepp Renou
产品描述:Piveteau的木材覆层是该项目的主要组成部分。严格的防火规定使立面的木制品范围大大缩小。一方面,为了保持一定的光泽度,我们寻找了一种类似于原计划的穿孔包层的产品,但被法规禁止。另一方面,这座城市希望在天气影响下不会长期污染木材覆层。深色木材和“人造穿孔”形状的轮廓使我们能够找到这两个限制的解决方案。
Product Description. The timber cladding of Piveteau is a major element of the project. The strict regulations of fire protection left a significantly reduced range of wood products for the facade. On one hand, in order to maintain a certain lightness, we sought a product similar to the perforated cladding originally planned, but forbidden by regulations. On the other side, the city expected a timber cladding that would not stain on the long term under the weather influence. The darkened wood and the "faux-perforated" shaped profile enabled us to find solutions to these two constraints.
© Schnepp + Renou
c.Schnepp Renou
Architects Karawitz
Location 45 Rue de l'Ourcq, 75019 Paris, France
Category Housing
Area 1580.3 sqm
Project Year 2016
Manufacturers Loading...
客服
消息
收藏
下载
最近






























