查看完整案例


收藏

下载
架构师提供的文本描述。该项目是塞纳-阿基开发项目的一部分,该项目涉及与国防轴线相一致的更广阔的领土。考虑到经过的各种网络的自然起伏和共存,塞纳-阿基的发展需要巨型结构的上游。
Text description provided by the architects. The project is part of Seine-Arche development which concerns a wider territory in line with the axis of Defense. Taking into account the natural relief and coexistence of various networks which pass through, the Seine-Arche development required the upstream of colossal structures.
© Sergio Grazia
塞尔吉奥·格拉齐亚
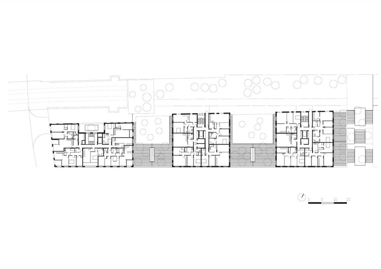
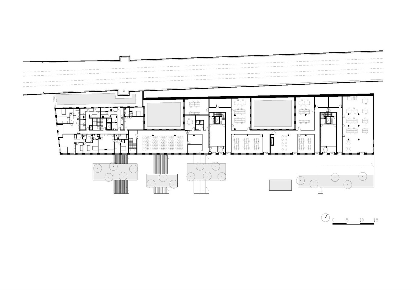
Floor Plan
为了在这里吸引新的人口,从霍茨-德塞纳省,城市项目是为了恢复遗址的规模和宜居性,通过一系列的17个“城市梯田”。这些新建筑提供了一种既具有里程碑意义,又能反映场地规模的建筑,体现了项目的国内性质。通过他的设计、细节和材料的选择,该项目为提高生活质量和建筑物的可持续性提供了机会。即使第九梯队的计划分配被分成几个节目,整体上也确保了一个连贯的表达。我们的目标是准确地工作,以功能,质量和舒适的住房方案,分布在三座塔和基地之间。
Aiming to attract here new populations from all over the department of Hauts-de-Seine, the urban project was designed to restore the site scale and its habitability, through a series of seventeen "Urban Terraces". The new buildings offer an architecture that is both monumental, in response to the scale of the site and which expresses the domestic nature of the programs. By his design, details and the choice of the materials, the project provides opportunities for the quality of living and the sustainability of the buildings. Even if the planned allocation for the Terrace 9 is divided into several programs, the whole ensures a single coherent expression. Our goal was to work accurately for functional quality and comfort of the housing program distributed between the three towers and the base.
© Sergio Grazia
塞尔吉奥·格拉齐亚
住宿类型多种多样,从工作室到T5,在入会或社会住房方面。这些立面分别暴露在四个基本点上,它们都设有许多开口,将外壳的内部延伸到梯田的级联,或插在框架设计中的小空心对数上。
Accommodations are of varied types, ranging from studios to T5, in accession or in social housing. The facades are exposed respectively to the four cardinal points, they are all provided with numerous openings that extend the inside of housings to cascades of terraces, or to small hollowed loggias, which are interposed in the design of the frame.
© Sergio Grazia
塞尔吉奥·格拉齐亚
© Sergio Grazia
塞尔吉奥·格拉齐亚
产品描述:我们采用搪瓷砖作为基座的主要包覆层和三塔之一。砖被安装在坚硬的面板上,然后通过20厘米的隔离羊毛机械地固定在混凝土墙壁上。
Product Description. We used the enameled brick as the main cladding of the base and one of the three towers. The bricks are mounted on stiff panels then fixed mechanically to the concrete wall through 20cm of isolating wool.
颜色被选择在黑暗的色调,以给予一定的高贵外观。砖块生产的手工性质允许从一块砖到另一块砖有各种颜色。接缝的色调被选择在最好的与砖块的结合,所以有一个非常微妙的渲染。
Tints were chosen in dark tones to give a certain nobility to the facade. The crafted nature of the production of bricks allowed to have variety of tint from a brick to the other one. The tint of joints was chosen to merge at best with that of the bricks and so have a very subtle rendering.
© Sergio Grazia
塞尔吉奥·格拉齐亚
客服
消息
收藏
下载
最近























