查看完整案例


收藏

下载
© Ivan Casal Nieto
Ivan Casal Nieto
架构师提供的文本描述。Pomme是一家服装鞋业零售店,位于小镇中心,旨在通过精心设计和增加购物体验来促进当地贸易。
Text description provided by the architects. Petite Pomme is a clothing and shoes retail's child store located in the centre of a small town, which also aims to boost local trade through careful design and by adding value to the shopping experience.
© Ivan Casal Nieto
Ivan Casal Nieto
品牌形象倾向于远离建筑的历史风格。因此,墙和天花板模糊边界可从其外壳创建未链接的建议。
The brand image intends to move away from the historical style of the building. Therefore walls and ceiling blur boundaries to create an unlinked proposal from its shell.
在入口处,背光聚碳酸酯墙与花岗岩正面形成鲜明对比,在外部和内部产生裂痕,也为客户提供指导。
At the entrance, a backlit polycarbonate wall contrasts sharply with the granite facade, generating a rift between exterior and interior and also providing guidance for the customer.
© Ivan Casal Nieto
Ivan Casal Nieto
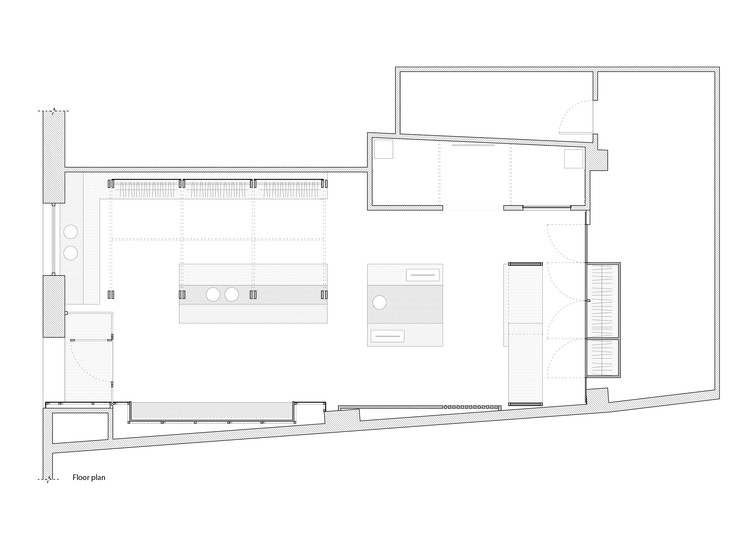
第一个重大决定是取消下降的上限,恢复零售单位的原有高度。这一运动使我们得以确立新设计的战略。一个开放的平面空间包含不同的组成部分,如光墙,柜台和试衣室,这创造了一条通道,通过商店和组织产品。
The first major decision was removing the dropped ceiling, getting back the original height of the retail unit. This movement allows us to establish the strategy of the new design. An open plan space contains the different components such as light walls, counter and fitting rooms, which create a pathway through the store and organise the products.
© Ivan Casal Nieto
Ivan Casal Nieto
这些元素提供了一组不同的尺度,提供对显示产品的访问,并允许儿童娱乐。
This elements provide a set of different scales that offers access to the display products and also allows entertainment for children.
Axonometric
生机勃勃的色彩,场景照明和对比材料,如木材和聚碳酸酯吸引了路人的注意力,加强了当代设计的邻里。
Vibrant colours, scenographic lighting and contrasted materials as wood and polycarbonates draws attention to the passerby, enhancing a contemporary design to the neighbourhood.
© Ivan Casal Nieto
Ivan Casal Nieto
El proyecto llama la atención sobre el Viandante por la antiposición de los Materiales(Con Madera Y Polarbonatos),Colres vidites e iluminación ESCénica,puesto que se encuentra en una unzona de predomina la piedra talada,el monocromatismo y la iluminación pública。
El proyecto llama la atención sobre el viandante por la contraposición de los materiales (con maderas y policarbonatos), colores vibrantes e iluminación escénica, puesto que se encuentra en una zona donde predomina la piedra tallada, el monocromatismo y la iluminación pública.
Architects Erbalunga estudio
Location Tui, Pontevedra, Spain
Category Heritage
Area 60 sqm
Manufacturers Loading...
客服
消息
收藏
下载
最近





















