查看完整案例


收藏

下载
架构师提供的文本描述。传说上演的地方
Text description provided by the architects. Where Legends Play
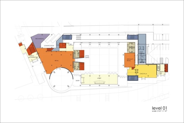
学院足球名人堂位于亚特兰大百年奥林匹克公园附近,是一个建筑图标。圆形大厅座落在一个定制的混凝土“Y”柱上,位于入口上方和大厅前面,提供进出大厅的景色。在里面,上层的展览空间围绕着一层楼的场地。这个场地作为设施内部的一个组织单元,可用于互动游戏和特别活动。这个94,000 SF设施包括展览空间,场地/舞厅,和零售加餐厅空间沿街道边缘。
Located adjacent to Atlanta’s Centennial Olympic Park, the College Football Hall of Fame is an architecture icon. Perched on a custom-formed concrete “Y” column, the rotunda sits atop the entrance and in front of the lobby, providing views into and out of the Hall. Inside, upper level exhibit spaces wrap around a ground floor field. This field acts as an organizing element for the interior of the facility and is available both for interactive play and special events. This 94,000 sf facility includes exhibit space, the field/ballroom, and retail plus restaurant space along the street edge.
© Shawn Brasfield
C.Shawn Brasfield
© Shawn Brasfield
C.Shawn Brasfield
© Shawn Brasfield
C.Shawn Brasfield
Architects Tvsdesign
Location Atlanta, GA, USA
Category Exhibition Center
Architect in Charge Kevin Gordon, David J Brown
Area 90000.0 ft2
Project Year 2014
Photographs Shawn Brasfield
Manufacturers Loading...
客服
消息
收藏
下载
最近




















