查看完整案例


收藏

下载
© Bartłomiej Bieliński
(c)BartinomiejBielielinski
架构师提供的文本描述。在Szczecin的近处,在Kobylanka有一栋房子,与“典型的”郊区城市景观不同。由建筑师的夫妇安娜和克鲁兹托夫帕斯科夫斯基-索罗设计,就像一幅现代谷仓的照片。紧凑和节能的房子正在探索典型的波兰乡村建筑的原型,然而安娜和克兹托夫通过使用现代材料和颜色设置,如深灰色纤维水泥板条作为正面和屋顶覆层,将其与创新结合在一起。相反,山墙被涂成白色。南墙有一个动态切割,形成屋顶太阳甲板。这座建筑的大胆剪影有力地表明:当代建筑和“典型”建筑之间有一条边界。
Text description provided by the architects. In close vincinity of Szczecin, in Kobylanka there is one house, differing from the “typical” suburban cityscape. Designed by architect’s couple Anna and Krzysztof Paszkowski-Thurow resembles immediately a picture of modern barn. Compact and energy-saving house is exploring archetype of typical polish countryside architecutre yet Anna and Krzysztof have merged it with innovation by using modern material and colour settings like dark-grey fibre cement slates as facade and roof cladding. On the contrary gable walls were plastered in white. Southern wall has a dynamic cut-out which forms roofed sundeck. Bold silhouette of the building makes a strong statement: there is a border between contemporary and “typical” architecture.
© Bartłomiej Bieliński
(c)BartinomiejBielielinski
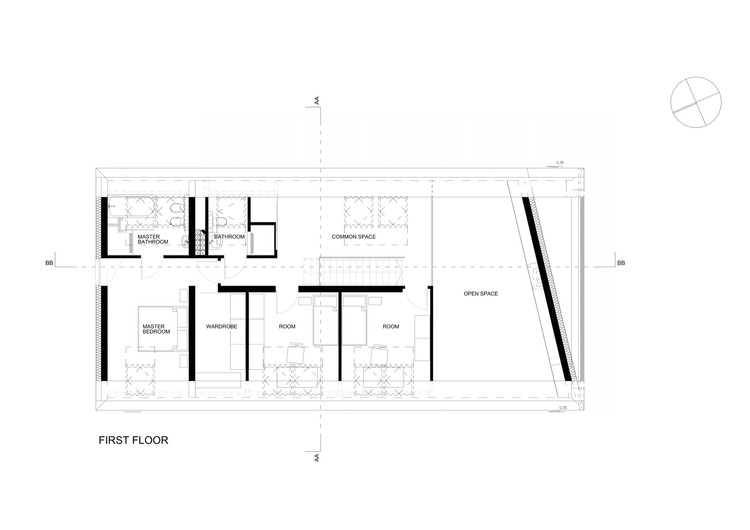
这座房子是一对年轻夫妇拆散的,虽然看起来并不明显,但这是一个家庭友好的“谷仓”。为了更好地享受这一点,在白天之间,父母和年轻人都有工作和休息的区域。另外还有一个双层起居室,与一楼的公共空间相连接,便于房屋之间的良好沟通。
This house was a comission from a young couple and although it may not seem obvious, this is a family friendly “barn”. To proove that, there is a clear distiction between day, working and resting zones both for parents and yougsters. There is also a double height living room interconnected with common space on the 1st floor, allowing for good communication among the house.
Ground Floor
First Floor
在设计这所房子的内部,安娜提到了业主的性格,他们作为景观开发商的工作和他们无数的旅行。因此,房子的所有表面都可能是粗糙和自然的。地板上铺有开放的石灰华和白油橡木板.厨房是开放的,与餐厅结合在一起。该建筑物的脊柱是由中央位置的楼梯房屋,也是存储区下面,完成与白油橡木。现代浴室是用黑色的Emperador大理石设计的,灵感来源于土耳其浴的外观,类似于东方人的远航。
When designing interiors of this house, Anna has referred to the character of the owners, their job as landscape developers and their numerous travels. Therefore all surfaces in the house might be characterised as rough and natural. Floor is paved with open-pore travertine and white-oiled oak planks. Kitchen is open integrated with the dining room. Spine of the building is created by centrally located staircase housing also storage area underneath, finished with white-oiled oak. Modern bathroom was designed in black emperador marble inspired by turkish-bath look, resembling distant eastern voyages of owners.
© Bartłomiej Bieliński
(c)BartinomiejBielielinski
Anna和Krzysztof是建筑师,毕业于Szczecin技术大学和哥本哈根设计和技术学院。他们的风格的基础是微妙的发挥干净的线条和天然材料,以及对北欧内部的温暖和秩序的爱。他们经常提到奥斯卡·汉森(Oskar Hansen)的话:“我们把建筑当作一种背景,揭露生活的过程,而不是像大多数建筑师那样,把建筑(建筑)理解为一种本身-构成和描述的东西。”
Anna and Krzysztof are architects, graduated from Szczecin’s Technical University and Copenhagen School of Design and Technology. Their style is underpinned by a subtle play of clean lines and natural materials as well as love for nordic internal warmth and order. They are often referring to Oskar Hansen’s saying: "We’re treating architecture as a backgroung exposing life’s processes, not like a majority of architects, understanding it (architecture) as a thing itself - composed and described”
© Bartłomiej Bieliński
(c)BartinomiejBielielinski
产品描述:CreatonSTRUKTONIT纤维水泥石板使现代建筑能够均匀覆盖。由于其积极的环境特性,它可以在BRE绿色指南*中达到A级,在BREEAM计划下提供额外的学分。这不仅是环境的好处,使CreatonSTRUKTONIT纤维水泥板条有吸引力的选择,那些指定板岩或覆层。该产品是与建筑师的想法和提供机会,以生产创新和富有想象力的设计,无论是垂直覆层或板岩屋顶俯仰低至15°。不像其他材料,纤维水泥石板不需要湿切削,因为材料的组成和可加工性。
Product Description. Creaton STRUKTONIT fibre cement slates enables homogenous covering for modern buildings. Due to its positive environmental characteristics it can achieve an A+ rating in the BRE Green Guide* providing extra credits under BREEAM Schemes. It is not only the environmental benefits that make Creaton STRUKTONIT fibre cement slates an attractive option for those specifying slate or cladding. This product was developed with the architect in mind and offer the opportunity to produce innovative and imaginative designs either as vertical cladding or slate roof pitches as low as 15°. Unlike other materials, fibre cement slates do not require wet-cutting due to the composition and workability of the material.
© Bartłomiej Bieliński
(c)BartinomiejBielielinski
Architects Anna Thurow
Location Gmina Kobylanka, Poland
Category Houses
Architect in Charge Anna Paszkowska-Thurow, Krzysztof Paszkowski-Thurow
Area 240.0 m2
Project Year 2012
Manufacturers Loading...
客服
消息
收藏
下载
最近























