查看完整案例


收藏

下载
© Hemant Patil
(2)血液凤仙花
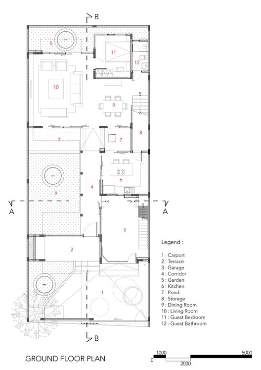
架构师提供的文本描述。这所砖房占地800平方米。在浦那郊区的边缘,后面有一片森林,通往前方的道路上有一座密集的城市住宅。因此,该网站创造了一个有趣的机会,以翻转一个典型的郊区房屋条件,并开放主要的公共区域后院花园展望森林以外。这里的策略不是普通的郊区街道,而是唤起一种生活在腹地的感觉。
Text description provided by the architects. The brick house occupies a land parcel of 800 sq. on the suburban edge of Pune - with a reserve forest on the rear and a dense urban housing on the access road to the front. So, the site creates an interesting opportunity to flip a typical suburban house condition and open up the major public areas to the backyard garden looking towards the forest beyond. Instead of the mundane suburban street the strategy here is to evoke a feeling of living in a hinterland.
© Hemant Patil
(2)血液凤仙花
房子被看作是一种内向的形式,里面有一块坚固的砖,从外面站起来仍然是大胆的。只有当一个进入并穿过内部不同的空间时,才会显示灯光和卷的动态播放。
The house is conceived as an introvert form with a solid mass of brick which stands still and bold from outside. The dynamic play of light and volumes is revealed only when one enters and walks through different spaces inside.
© Hemant Patil
(2)血液凤仙花
它的大体积的生活被设计成一个公共节点,它被建成的空间包围,这些空间通向后院的阳台,使草坪和森林的景观更加无缝。生活空间的东-西方位欢迎温暖的晨光和一些不时从森林中迁移的鸟类和孔雀。烹调、餐饮和睡眠区与场地的南面和西部对齐,以保护生活区域免受直接热量的影响。
The living with its large volume is designed as a public node surrounded by built spaces which opens up to the backyard verandah allowing a seamless view of the lawn and forest beyond. The east-west orientation of the living space welcomes the warm morning sun and some migrating birds and peacocks from the forest occasionally. The cooking, dining and sleeping areas are aligned to the south and west of the site to protect the living areas from direct heat.
Exploded Axonometric
爆炸轴测
每个卧室的设计考虑到了空间的直观使用,内置座椅和家具,超越了正规生活空间的规范理念。每间卧室都有三种不同类型的窗户,一扇用来坐席,另一扇用来欣赏室内庭院,另一扇窗户用于交叉通风,第三扇窗户是一个阳台,可以出去欣赏远处的风景。
Each bedroom is designed considering the intuitive usage of space with inbuilt seating and furniture to go beyond the normative idea of formal living spaces. Each bedroom has got three different types of windows, one for seating -to enjoy interior courts, another small window for cross ventilation and the third is a balcony to go out and enjoy the distant landscapes.
© Hemant Patil
(2)血液凤仙花
该空间由所有天然和土状的材料组成,如黑色花岗岩地板,是指典型的历史庙宇和区域内典型的历史庙宇和堡垒的单片玄武岩基座。使用绞架和尚键构造的暴露砖墙类似于传统的印度编织图案,并将不同的值添加到最常规的材料如砖上,木材贴面天花板在边缘和其中心处漂浮在公共区域上方,在整个白天产生不断变化的光图案,使其在一天的不同时间在空间中具有独特的体验,最后,灰色-绿色水泥盒窗口带有可操作百叶窗式柚木窗户框架,可以看到周围花园和远处森林的景色。
The space is composed of all natural and earthy materials like the Black Granite floor - a reference to the monolithic basalt plinth of typical historic temples and forts in the region. The exposed brick walls constructed using Racking Monk bond - resembles the traditional Indian weaving patterns and adds a different value to the most conventional material like brick, the wood veneered ceiling which floats above the public areas with pergolas at the edges and the center of it, creating an ever changing pattern of light throughout the day, making it a unique experience to be in the space at different times of the day and finally, the grey-green cement box windows with operable louvered teak windows frame the views of the surrounding garden and distant forest.
© Hemant Patil
(2)血液凤仙花
这座房子试图在城市环境中创造一定程度的隐私,用户可以在这里尽可能地相互交流,尽可能地发挥自然的作用。把所有正式的生活都放在一边,从繁忙的城市生活中停下来。
This house is an attempt to create a level of privacy within the urban environment, where the users could interact with each other and nature as playfully as possible. Keeping all the formal layers of life aside and take a pause from the busy life of the city.
© Hemant Patil
(2)血液凤仙花
产品描述:裸露的砖墙是用敲诈勒索的蒙克键建造的,类似于传统的印度编织模式,这在书中创造了一出戏。
Product Description. The exposed brick walls constructed using Racking Monk bond resembles the traditional Indian weaving patterns which creates a play in the volumes.
© Hemant Patil
(2)血液凤仙花
Architects A for Architecture
Location Pune, India
Category Houses
Architect in Charge Ajay Sonar
Area 800.0 m2
Project Year 2014
Photographs Hemant Patil
Manufacturers Loading...
客服
消息
收藏
下载
最近

































