查看完整案例


收藏

下载
© Juraj Bartoš
c.Juraj Bartoš
架构师提供的文本描述。该设施位于中心地带 (25000 平方米),在斯洛伐克最著名的葡萄酒区之一,小喀尔巴阡葡萄酒区,靠近首都布拉迪斯拉发。葡萄酒完全由自己的葡萄酿造,在自己的葡萄园里种植。
Text description provided by the architects. The facility is located in the central part of the site (25 000m2) in one of the most famous wine regions of Slovakia – the Small Carpathian wine region, close to the capital Bratislava. Wine is made exclusively from own grape, raised in own vineyards.
© Tomas Manina
托马斯·玛尼娜 (Tomas Manina)
本年度的产量为 60 万瓶,有可能增加 120 万瓶。
Current year production is 600,000 bottles, with a potential of increase up to 1.2 million bottles. © Tomas Manina
托马斯·玛尼娜 (Tomas Manina)
其目的是在一个屋顶多样化的功能-- 葡萄酒生产、艺术、美食、商店、拥有健康区的酒店和狩猎室、办公室、员工住宿等。
The goal was to include under one roof diverse functions – wine production, art, gastronomy, shop, hotel with wellness area and hunting room, offices, staff accommodation etc.
© Juraj Bartoš
c.Juraj Bartoš
主要入口位于 Modra 和 Dubová镇之间的国道上。
酒厂综合体 (5400 平方米) 设计为紧凑单元,利用其自然坡度将其敏感地组合成场地,对建筑质量进行了清晰的功能划分。
The main entrance is located from the state road between the towns of Modra and Dubová. The complex of the winery (5400m2) is designed as a compact unit and is sensitively composed into the site using its natural slope, giving a clear functional division of the architectural mass.
© Juraj Bartoš
c.Juraj Bartoš
酒厂部分是一个古老的混凝土棱镜,有绿色的墙壁,这也为生产部分制造了一个视觉屏障,消除了对大厅的负面视觉感知。
The winery part is an archaic concrete prism with a green wall which is also creating a visual barrier for the production part, eliminating the negative visual perception of the hall. © Tomas Manina
托马斯·玛尼娜 (Tomas Manina)
酒厂的生产、销售和其他相关部分都在北部,服务区位于西部,由地形切割而成,整个生产区域大部分位于地面以下,完全覆盖着绿色屋顶,这大大改善了能源平衡。
The manufacture and distribution as well as all the other relevant parts of the wine factory are in the northern part.Service court is in the western part, composed in the terrain cut. The entire production area is mostly located below the surface, entirely covered by green roofs, which largely improves the energy balance.
© Tomas Manina
托马斯·玛尼娜 (Tomas Manina)
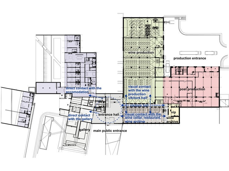
入口大厅是在舒适的环境里品尝到的葡萄酒,有壁炉、酒窖、巴里克酒窖和葡萄酒档案。该空间也用于宴会、会议等。
First Floor Diagram
第一层图
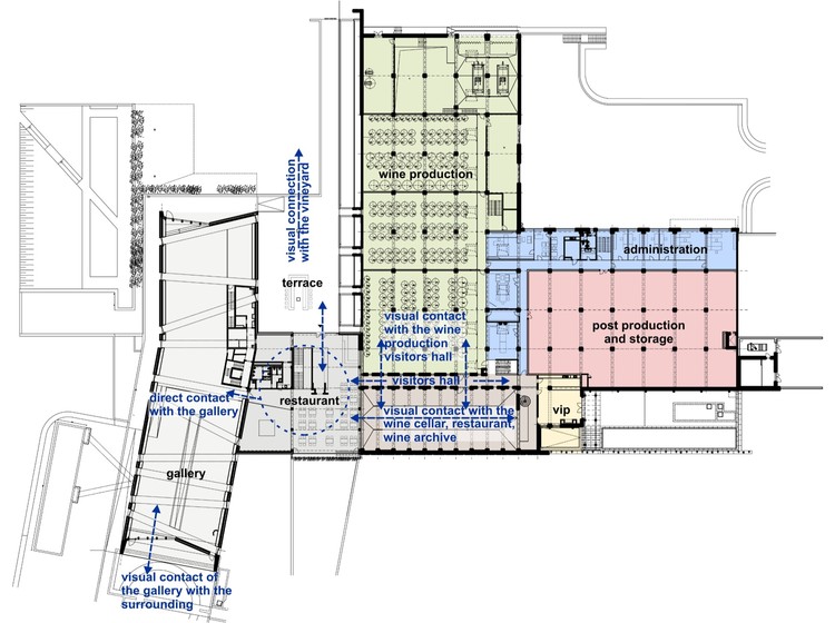
从入口大厅的混凝土楼梯通往二楼的餐厅,有一个大壁炉和与厨房的视觉接触,向南和向北俯瞰外部,并通过后入口直接连接到室外露台。
© Tomas Manina
托马斯·玛尼娜 (Tomas Manina)
从博物馆是一个壮观的景观,通过玻璃外墙,支架露台的水面。
博物馆专注于 20 世纪下半叶的艺术。
From the museum is a spectacular view to the exterior thru the glassed façade, bracket terrace over the water surface. The museum is focused on the art from the second half of the 20-th century. © Tomas Manina
托马斯·玛尼娜 (Tomas Manina)
根据不同几何尺寸 18m 跨径段和 30 cm 厚加筋墙独立结构在基础结构中的建筑设计,对博物馆文物进行了划分。
The museum object is divided according to the architectural design for segments of different geometry of 18 m span and separate structure of reinforced wall of 30 cm thickness wedged into the foundation structures.
© Tomas Manina
托马斯·玛尼娜 (Tomas Manina)
入口大厅为游客提供长玻璃走廊,既可观看制作,也可欣赏到高级酒窖的景观。在此交流结束时,业主拥有 VIP 中庭、办公室、品尝沙龙、档案馆和自己的设施。
Long glassed corridor for visitors from the entrance hall allows watching the production as well as a sight into the barrique cellar. At the end of this communication is the owners own VIPatrium, office, tasting salon, archives and own facilities.
© Tomas Manina
托马斯·玛尼娜 (Tomas Manina)
生产管理和行政管理位于生产大厅的第二层,出口到经济法庭,通过北向绿色屋顶上的整体天窗将日照分配到生产大厅,从而防止阳光直射。
Management of production and the administration is located in the second storey of the production hall with an exit to the economic court. Daylight distribution into the production hall is secured through monolithic skylights on the green roof faced to the north, by which direct sunlight is prevented.
Second Floor Diagram
二楼图
经理的住宿被设计成一座能源屋,屋顶是绿色的,西南只有一个玻璃立面,它沉入形成了自己的露台的地形中,与该地区的公共部分隔开。
Accommodation for the manager is designed as an energy house with green roof, with only one glass facade to the southwest. It is sunk into the terrain creating its own patio and by this is separated from the public part of the area.
© Tomas Manina
托马斯·玛尼娜 (Tomas Manina)
生产楼为两层半单层,模块化体系为 6x7.5 米,位于高楼地窖 3x12 米处。支撑体系由 30 厘米厚的预制整体内墙组成。
The production building is two-storey and part single-storey. The modular system is 6x7.5 m, at the barrique cellar 3x12 m. The supporting system consists of 30cm thick prefabricated monolithic interior peripheral walls.
公寓和雇员的房子坐落在一栋有绿色屋顶的单层建筑中。
Apartments and the house of the employees are located in a single-storey building with a green roof.
© Tomas Manina
托马斯·玛尼娜 (Tomas Manina)
Architects Cakov + Partners
Location: Modra, Slovakia
Category: Museums & Exhibit
Design Team: Kalin Cakov, Metodiy Monev, Jan Obušek, Miloš Djuračka, Martin Boška
Area: 5400.0 m2Project Year: 2009
Photographs: Tomas Manina, Juraj Bartoš
客服
消息
收藏
下载
最近








































