查看完整案例


收藏

下载
森林小屋
assertor主张者,维护者
建筑师:Primus建筑师公司http:/primus.nu
Year: 2014
Sqm: 108
室内设计顾问、配件、厨房和浴室:Louise de F nss
客户:私人
建筑:Vito
混凝土楼板:LonderoMosaik
Windows:hS Hansen Millu系列
摄影:邮票康特
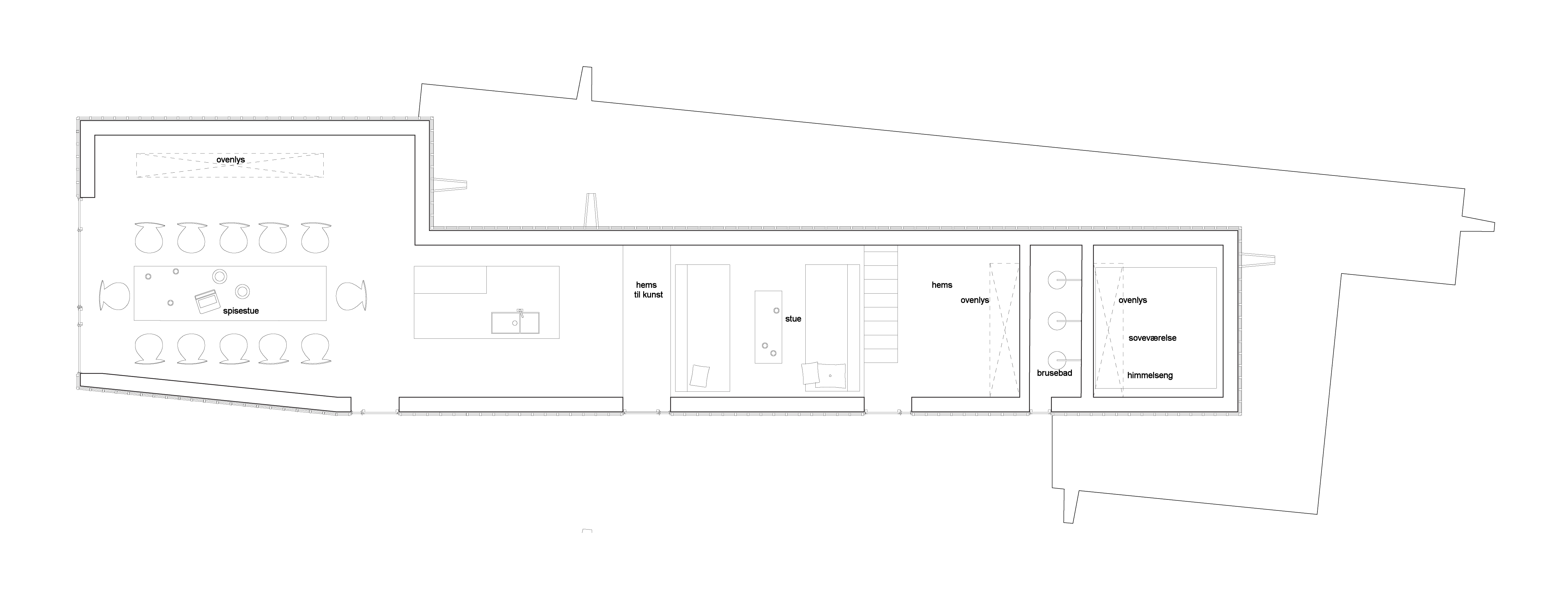
这是一个长而细长的地块,面向森林的边缘。对角线提供了荒野的景色。
客户们想把房子和邻近的建筑物隔离开,以便有森林的独特体验。
他们希望房子为大型宴会创造一个空间框架,同时提供亲密关系。这一节是对当地建筑法规的解释,以创造最高的天花板高度和自然光。
正面是用硫酸铁处理的实心橡木板的搭覆层,它保护木材并创造风化表面。
室内装饰是由计划的倾斜造成的,这创造了隐藏的存储空间和一个由橡木板覆盖的隐蔽入口。
地板采用内建加热的抛光混凝土。
内墙是由稍微不同厚度的木板制成的,形成了一个触觉的表面来捕捉光线。
Firm Primus Architects
Type Residential › Private House
STATUS Built
YEAR 2015
SIZE 0 sqft - 1000 sqft
BUDGET $500K - 1M
Photos STAMERS KONTOR
keywordsarchitecture, architecture news, interiors, interior design, portfolio, spec, brands, marketplace, products Forest House
关键词建筑、建筑新闻、室内设计、组合、规格、品牌、市场、产品林场
客服
消息
收藏
下载
最近






























