查看完整案例


收藏

下载
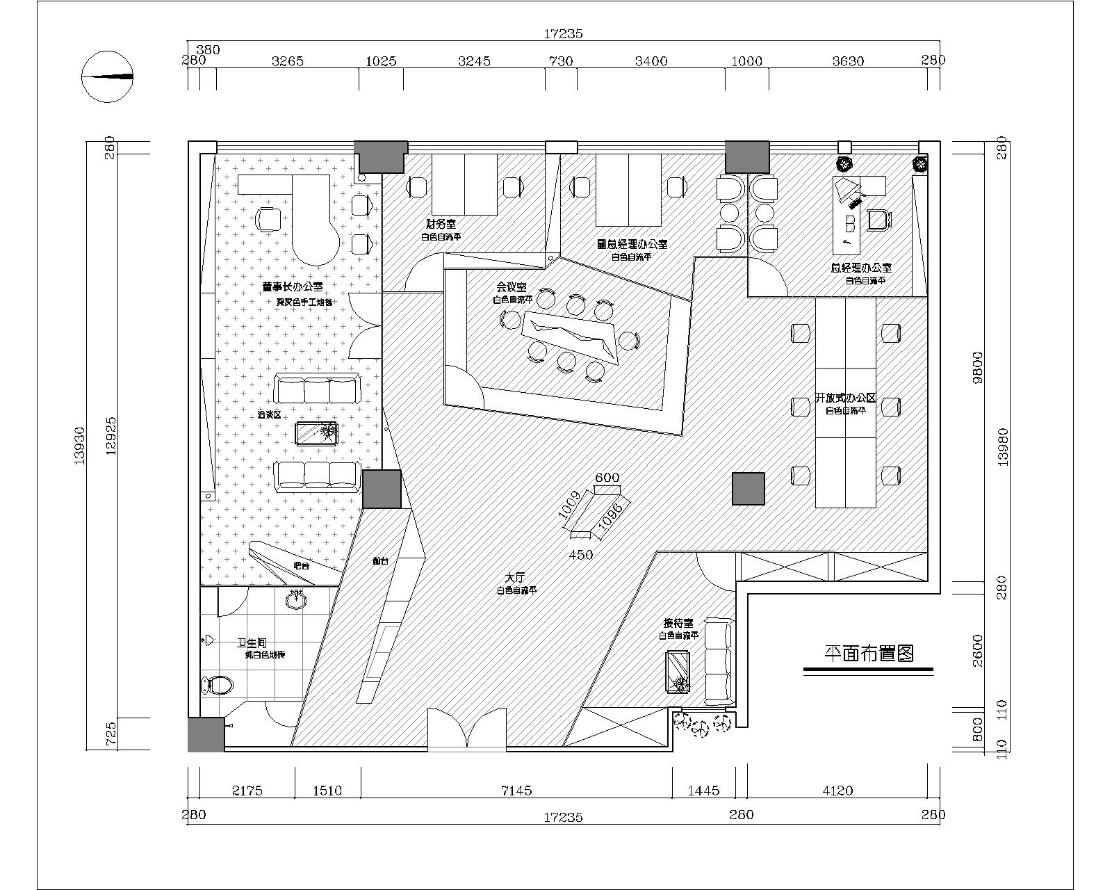
早安!未来Zolup(中御国际)是一间活跃在内地电讯市场的国际性公司。本案位于长沙市CBD中心地段,面积330平米。企业为了给尊贵客户提供优质的服务,希望通过办公空间营造出高效、安全、舒适的氛围。设计师在尊重企业文化的基础上,将视觉美感传递到每一个角落,并将充满科技含量的未来办公空间表现得淋漓尽致。当置身于其中,没有拥挤和繁杂,所有一切好像经过清水的洗礼般清新与宁静。当轻快的脚步声划过白色的空间,伴随着时空之光飘到窗前,透过一尘不染的玻璃仿佛看到了一个充满活力的未来城市。禁不住动情的喊了一声:“早安”!参考指标:1 项目地点:湖南长沙 2 建筑面积:330平米 3 设计时间:07年12月 4 竣工时间:08年6月 5 总体造价:50万人民币
客服
消息
收藏
下载
最近
















