查看完整案例


收藏

下载
© Sophie Carles
苏菲·卡尔斯
架构师提供的文本描述。在一个独特的景观中,在一片被森林地块包围的平原中间,四座以前的农场建筑发生在一个池塘附近的一个院子周围。这个地方让人对风景和野生动物进行了如此庄严的思考。我们的干预旨在突出当地的遗产,并尊重它的建筑创作。
Text description provided by the architects. In a singular landscape, in the middle of a plain surrounded by forest massifs, four former farm buildings take place around a yard near a pond. The site lends itself so majestically to the pondering over the landscape and over the wildlife. Our intervention aims to highlight the local patrimony and respect it by the architectural creation.
© Sophie Carles
苏菲·卡尔斯
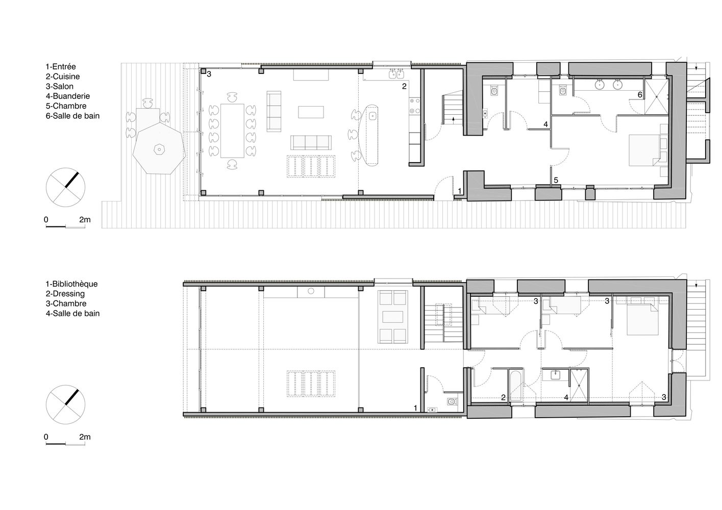
主建筑是唯一在重新转换之前的活生生的建筑,为了适应现代建设的迫切需要,它被完全治愈了,但同时也找到了一种体积测量方法,使现存的阁楼得以发展。延伸,在一个木框架,连接连续性的体积测量前的建筑物。该延伸是覆盖一个覆盖在板条回收杨木。这种材料创造了相同的建筑语言,在每个建筑中都很常见。杨树是用来抵挡天气的,也是为了他的自然倾向,把金色和银色反射出年龄的增长。它是一种在环境中真正起作用的生物材料。
The main building, the only living building before de reconversion, is entirely cured to adapt itself to the modern constructive exigencies but also to find a volumetry that allows the development of the existent attic. The extension, in a wood frame, joins the continuity of the volumetry of the former building. The extension is covered with a cladding in a slatted reclaimed poplar. This material creates the same architectural language common in each building. The poplar is used for his resistance to the weather but also to his natural tendency to take golden and silver reflects getting older. It’s a living material that is taking a real part in the environment.
© Sophie Carles
苏菲·卡尔斯
在内部,前一部分容纳了更多的私人部分的房子,而分机欢迎接待室。“大教堂”起居室向景观和池塘全面开放,让我们在每一个季节都能享受大自然提供的壮观景观。当代建筑试图在这里消失,以揭示景观的质量和传统建筑的质量。
Inside, the former part hosts he more private parts of the house while the extension welcomes the reception rooms. The “cathedral” living room is fully opened to the landscape and the pond, allowing us to enjoy the spectacular landscape offer by the nature in every season. The contemporary architecture try here to disappear to reveal the quality of the landscape and also the quality of the traditional building.
产品描述:再生杨树创造了相同的建筑语言在每个建筑的项目。
Product Description: The reclaimed poplar creates the same architectural language common in each building of the project.
© Sophie Carles
苏菲·卡尔斯
Architects WAW Achitectes
Location Ambillou, France
Category Restoration
Architect in Charge Stanislas Cheuvreux, Arnaud Coutine, Bérenger Marinot
Area 712.0 m2
Project Year 2013
客服
消息
收藏
下载
最近



















