查看完整案例

收藏

下载
架构师提供的文本描述。这座可爱的房子矗立在韩国首尔的老房子镇的中间。尽管房子里有高度压缩的功能,我们尽量不失去生活的味道,在这里和那里增加一些多余的空间。
Text description provided by the architects. This cute house is standing in middle of old house town in Seoul, south Korea. Despite the house contains highly compressive function, we tried not to lose the taste of life by adding some redundant spaces here and there.
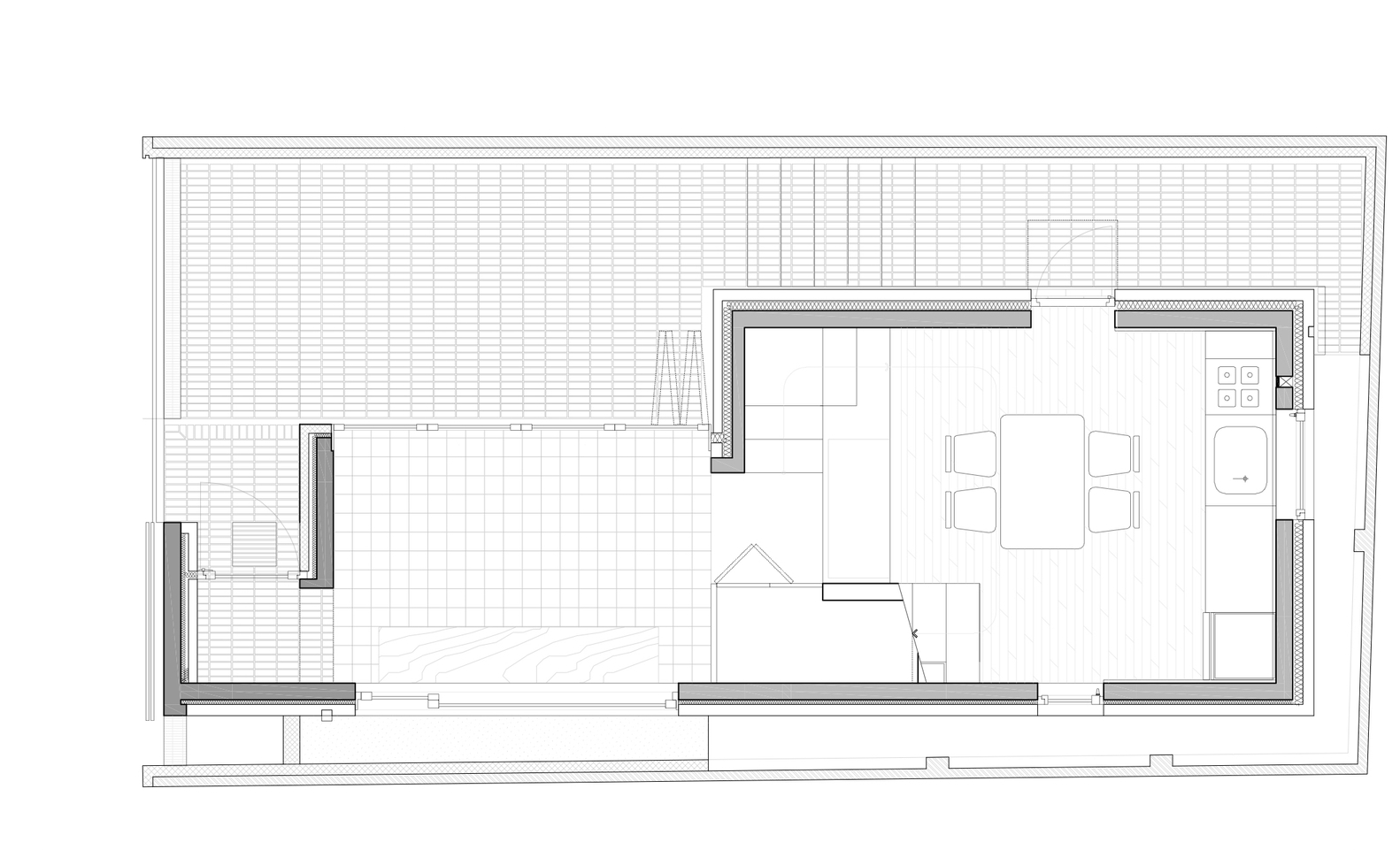
在小型住宅的设计中,通常认为小型住宅必须尽可能地压缩设计,因此不具有功能的空间很容易被折现为浪费空间。但是所有的功能都在房子里吗?
In designing of a small house, it is usually considered that The Small house must be designed compressively as possible, so the spaces without function are discounted as wasting spaces too easily. But is function all in the house?
© Kyung Roh
(C)卢京生
在这个小项目中,我们把重点放在没有功能的因素上。因为我们想在这所房子里唤起生命的价值,并认为生命的价值不是来自于功能,而是来自于没有特殊功能的因素,比如一个小花园之类的好读书的空间,以及一个能让人感觉到里面天气的开阔屋顶等等。
In this small project, we rather focused on the factors having no function. Because we wanted to pull up value of life in this house, and thought the value of life is not comes from the function but comes from the factors have no special function, such spaces like a small garden what is good to read, and an opened roof that make feel the weather inside, Etc
© Kyung Roh
(C)卢京生
矛盾的是,对生活丰富的空间的渴望使房子更加压缩。因为我们可以给没有特殊功能的空间注入一些灵活性。一个私人前院打开大门,改变到停车场。
And paradoxically, the desire for the space with plentiful life make house more compressively. Because we could inject some flexibility to the spaces having no special function. A private front yard alters to the Parking lot by opening the gate.
在这所房子里,入口处不只是脱鞋的地方。我们瞄准了发生各种事件的入口。这个宽敞的入口延伸到花园。
In this house, the entrance is not a space for taking off the shoes only. We aimed an entrance that occurs various events. this spacious entrance extends to the garden.
© Kyung Roh
(C)卢京生
在跳过的地板之间,有楼梯和从台阶上连接起来的喷泉。尽管喷泉不是必要的因素,但我们关注的是喷泉可能发生的各种事件。给小猫洗澡,洗野营设备,玩水等。
Between skipped floor, there are stairs and a fountain connected from the step. Despite the fountain is not necessary factor in the house, we focused on the various occurrences that can be happened by the fountain. Giving a kitty a bath, washing camping equipment, and playing with water, etc.
为了与自然交流,爬上楼梯,空间变得更加明亮。墙上那个小开口是小猫上屋顶的一扇门,右边的那座小房子就是过去的房子。人们说“房子长了!”
To commune with nature, the space gets brighter by climbing up the stairs. That small opening on the wall is a door to the rooftop for kitties. That small house on rightward is the house used to be. People say “the house have grown!”
© Kyung Roh
(C)卢京生
客服
消息
收藏
下载
最近












































