查看完整案例

收藏

下载
© Jirayu Rattanawong
(C)吉拉尤拉塔纳旺
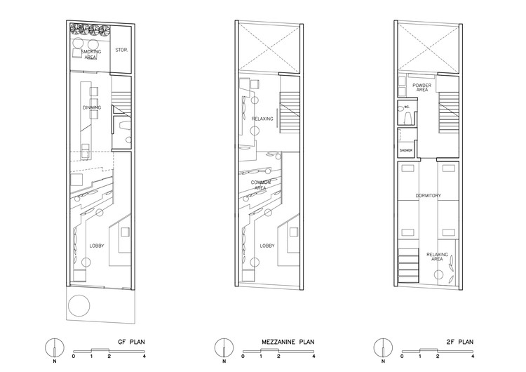
架构师提供的文本描述。2014年,“床上招待所”落成两年后,这位客户为我们提供了一个新项目,即同一社区的一个典型的单街区商铺。4米单位宽度为16米。深度,命名为床一个街区招待所后的建筑特征。尽管面积很小,但所有设施仍然需要有最大的床位数。公共和私人空间之间的平衡也是必要的。
Text description provided by the architects. Two years after Bed Station Hostel was completed in 2014, the client offered us with a new project, a typical one-block-shophouse in the same neighbourhood. A unit of 4m. width by 16m. depth, named BED ONE BLOCK HOSTEL after the building character. Despite a small area, all facilities are still required with the maximum bed number. Balance between public and private space is also necessary.
© Jirayu Rattanawong
(C)吉拉尤拉塔纳旺
在设计招待所时,客人的社会交往空间起着重要的作用。在床上有一个街区的招待所,不仅在公共区域,而且在每个宿舍里,都创造了供客人分享和放松的社交空间。公共区域被设计成在底层的楼梯,连接到阁楼的空间,在那里每个人都可以见面或使用一个工作空间个人和放松。除了公共区域外,每个宿舍都有自己的小放松区,客人可以私下休息、安排行李或与其他客人聊天。
To design a hostel, a space for guests’ social interaction plays major role. In BED ONE BLOCK HOSTEL, not only the common area, but also in each dormitory, social space was created for guests to share and relax. The common area was designed to be featured stair on the ground floor that connect to the space on the mezzanine floor, where everyone can meet up or use a working space individual and relax. Apart from the common area, each dormitory has its own small relaxing area where guest can privately take a rest, arrange their luggages or have a chat with other guests.
© Jirayu Rattanawong
(C)吉拉尤拉塔纳旺
© Jirayu Rattanawong
(C)吉拉尤拉塔纳旺
向所有行人打招呼的外部必须有一个缓冲器,以隐藏房屋设施的后面,例如空调和其他系统。外观的一个独特的模式是要与泰国元素相关联。在试验了许多选择后,一个带有现代材料和图案扭曲的瓦屋顶的模式是最终的解决方案。对角线布置了不同孔洞尺寸的白穿孔钢板,与相邻块形成了透明度和对比度的差异。这个立面不仅有吸引人的外观,而且还允许自然光,并保持室内空间的隐私。
The exterior which greets all pedestrians was required with a buffer to conceal back of house facilities, such as air conditioning and other systems. A distinct pattern for the facade was intended to relate with Thai-element. After experimenting with many options, a pattern of shingle tiled roof with a twist of modern material and pattern was the final solution. White perforated steel sheets with various hole sizes were arranged diagonally which created difference of transparency and contrast to the adjacent blocks. This facade benefits not only an appealing exterior appearance but also allow natural light and still maintains privacy of interior space.
一个热情友好的服务可能不足以成为一个好的旅社。但是,有一个良好的设计来支持客人的行为可以使它成为一个伟大的。这就是一个街区招待所想要达到的目标。
A welcoming and friendly service might not be enough to make a good hostel. But with a good design to support guests’ behaviour can make it a great one. This is what BED ONE BLOCK HOSTEL is trying to achieve.
© Jirayu Rattanawong
(C)吉拉尤拉塔纳旺
客服
消息
收藏
下载
最近






















