查看完整案例

收藏

下载
普拉肯蒂亚兽医诊所具有独特的功能,因为它提供了几乎所有小型医院的设施,包括作为病人的宠物及其主人作为客户的所有设施;同时,它以其简单而有趣的形式获得成功,很容易被路人注意到,而建筑、维护和清洁费用一直保持在较低的水平。
该建筑位于483m²的地块上。
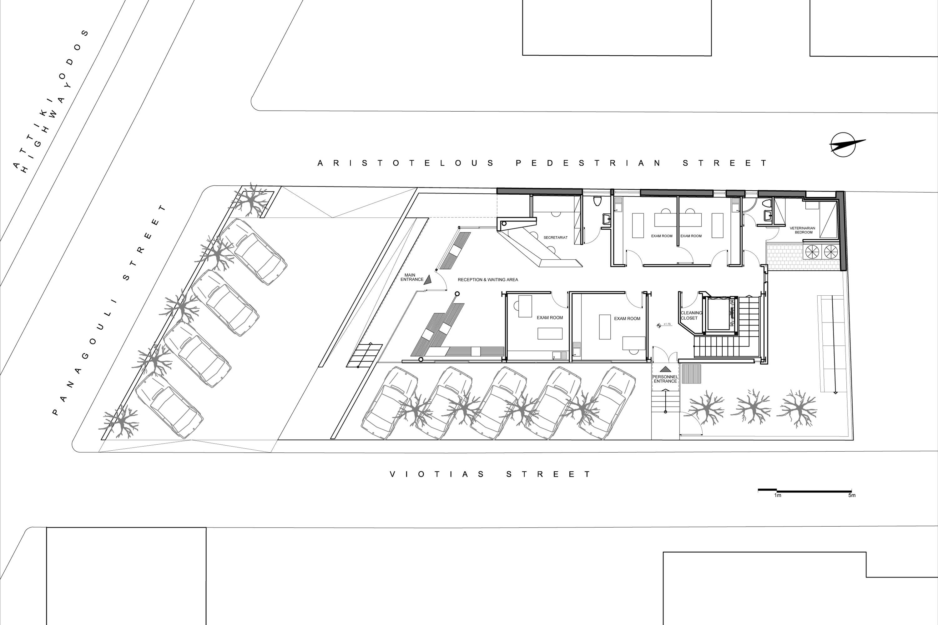
*地面150平方米,包括:
-接待、秘书处和等候区(狗和猫分开)。
-从等候区直接进入四个检查室。
-供随叫随到(下班后)兽医使用的宿舍和办公室。
-洗手间和清洁壁橱。
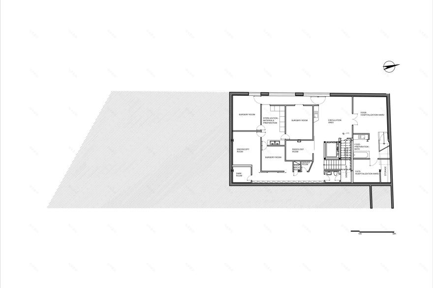
180平方米的地下室,包括:
-外科部门,包括准备室、绝育室、内窥镜室、手术室。
-放射科。
-设有狗和猫单独病房的住院部门。
-储藏室和机电室。
一楼118平方米,包括:
-兽医办公室。
-微生物学和生化实验室。
-图书馆和会议室。
-工作人员更衣室、洗手间、工作人员小厨房。
-开放和庇护的户外休息区
*二楼55平方米,45人的活动和讨论会室与30平方米的户外区域一起放置。
这座建筑的建筑线位于亚里士多德狭窄的街道上,与地块的界限是一致的。这一边,大部分暴露在西北,也非常接近对面的建筑物,是由一个紧凑和相对封闭的混凝土墙8.00米高。这堵墙在前面突出入口处变得更低,形成了一个垂直的表面,从那里可以看到一个更外向的钢结构工程,向南开放。
这项研究是在希腊经济危机开始时进行的。该建筑最初是为了满足700平方米的要求而设计的,有四名兽医合作的设施。然后病人要求减少30%的门诊计划。该建筑的钢结构设计的灵活性,以及切割和粘贴部分已经完成的结构和建筑研究,使这更容易。
诊所位于一个密集的城市住宅区,靠近高速公路和地铁站。它被要求纳入城市结构的规模,但作为一座商业建筑,它应该呈现出一种动态的形式。诊所手术引起的干扰应保持在较低的水平。在地块的免费区域设有一个开放的停车场。将动物病房放置在地下室,并使用吸声和隔热材料。
为了防止感染的蔓延,地下室的所有关键房间(外科部门、病房等)都提供了经过过度处理的新鲜空气,以保持积极的空气压力。地面上有大的玻璃门,由于气候温和,室外区域被创造出来。
除了混凝土地下室和L形墙外,该建筑由一个支撑组合板的钢结构组成。
双面隔热金属面板覆盖钢框架的其余部分,这是一种通常应用于工业建筑的方法。这里的实施方式是形成一个表面,它发挥了遮蔽、地板、墙壁、护墙和屋顶的作用,定义了封闭和开放的区域,并使包层成本保持在较低的水平。低e处理玻璃覆盖其余的表面。这些材料几乎消除了外壳的维护需求。自然光由百叶窗、窗帘、帐篷控制。石膏板墙或框架板用于内部隔断。
VRF系统用于空调,以尽量减少电能消耗,同时还可用于生产热水的太阳能集热器。大部分的材料可以在建筑物完成生命周期后再循环使用。
在没有栅栏或安全措施的情况下,出现了涂鸦画。为了防止不受控制的扩张,一名涂鸦艺术家被雇来制作相对于诊所的物品的绘画,但最后他也接管了主要的标志,从而促进了这座建筑在社区的整合。
Firm akkm
Type Government + Health › Hospital
STATUS Built
YEAR 2015
SIZE 5000 sqft - 10,000 sqft
keywords:architecture, architecture news, interiors, interior design, portfolio, spec, brands, marketplace, products Veterinary Clinic in Aghia Paraskevi
关键词:Aghia Paraskevi的建筑、建筑新闻、室内设计、组合、规格、品牌、市场、产品兽医诊所
客服
消息
收藏
下载
最近





















