查看完整案例


收藏

下载
架构师提供的文本描述。马赛顿山庄是一个重要而富有挑战性的设计机会,场地复杂,严格的丛林防火法规和具体的客户简介都对最终项目的结果起着重要作用。
Text description provided by the architects. Mount Macedon House was a significant and challenging design opportunity, with a complex site, strict bushfire protection regulations and specific client brief all playing an important role in the final project outcome.
© Dan Farrar
丹·法拉
这是一个长而窄的地方,坐落在马其顿山的一侧,从北部和东北部的灌木丛中眺望,环境非常宁静和宁静。
A long, yet narrow site, it is nestled into the side of Mount Macedon with sweeping views across bushland to the north and north east in a very tranquil and restful setting.
© Dan Farrar
丹·法拉
© Dan Farrar
丹·法拉
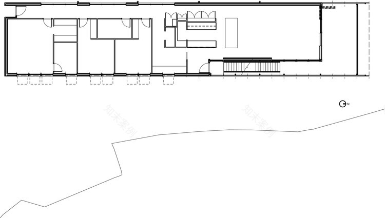
这幅土地的面积有相当大的下降,因此在设计过程的初期,当局决定住宅需要在某一时间提升,使其融入周围的景观和植被之中,而如有需要,亦可提供等级通道。对于业主来说,重要的是不要过度挖掘,而是要轻轻地走出现有的景观。
There is a fairly significant fall across the site, so it was decided very early in the design process that the dwelling would need to be elevated at some point as to immerse itself amongst the surrounding views and vegetation, whilst also providing on grade access if required. It was important to the owner as well that the site not be over-excavated, but rather emerge gently out of the existing landscape.
© Dan Farrar
丹·法拉
由建筑师为该项目定制的Corten包层,环绕着住宅,为玻璃提供所需的丛林防火屏蔽,并可根据需要打开和关闭。在这丰富,泥土的材料后面是更离散的睡眠和学习空间,是朝着住宅的后方,使生活和社会空间被解读为更透明和暴露得多,向北和东北高地爆发。沿着东边的屏幕提供了一些视觉保护,远离邻近的物业,同时不损害任何景观或自然光线,这些景观和自然光线从早上到傍晚一直充斥着生活空间和厨房。屋顶甲板是最后的触觉,提供360视图这宁静的景观。
The corten cladding, which was designed bespoke for this project by the architects, wraps around the dwelling, providing the required bushfire screening to glazing, and the ability to be opened and closed as needed. Behind this rich, earthy material are the more discrete sleeping and study spaces which are towards the rear of the dwelling, allowing for the living and social spaces to be read as far more transparent and exposed, breaking out towards the north and north-east elevations. Screening along the east provides some visual protection from the neighbouring properties whilst not compromising any of the views or natural light, which fills the living space and kitchen from morning until late afternoon. A rooftop deck is the final touch, providing 360 views of this tranquil landscape.
© Dan Farrar
丹·法拉
Architects Field Office Architecture
Location Mount Macedon, Australia
Category Houses
Architects in Charge Chris Barnes, Nick Crawford
Area 200.0 m2
Project Year 2016
Photographs Dan Farrar
Manufacturers Loading...
客服
消息
收藏
下载
最近


















