查看完整案例

收藏

下载
© Santiago Pinyol
圣地亚哥皮约尔
架构师提供的文本描述。40岁的卡萨坐落在邻近城市拉卡莱拉波哥大郊区的一个地点。这片独特的土地提供了独特的风景元素,有助于建筑的位置、形状和约束。
Text description provided by the architects. Casa 40 sits on a site on the outskirts of Bogotá in the neighbouring city of La Calera. Anchored in a gated countryside development with a low number of single family residences, this particular plot of land offers unique scenic elements that help place, shape and constrain the Architecture.
© Santiago Pinyol
圣地亚哥皮约尔
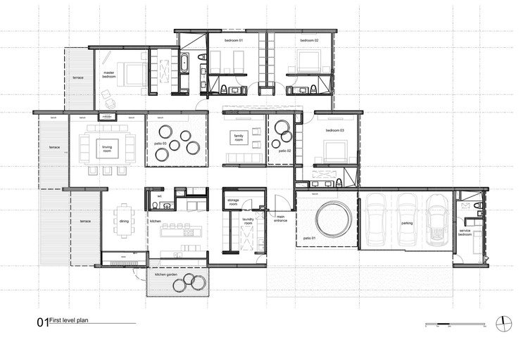
Floor Plan
© Santiago Pinyol
圣地亚哥皮约尔
客户需要一个单一层次的住宅,它可以尽可能多地与周围的景观有视觉联系,但同时也要与未来的邻居保持高度的隐私。这就要求对房屋进行战略性的安置,允许渗透性和隐私共存。
The client requires a single level home that can potentially have as many visual connections to the surrounding landscape as possible, but keeping a high level of privacy from future neighbours. This demands a strategic placement of the house that allows permeability and privacy to coexist.
© Santiago Pinyol
圣地亚哥皮约尔
为了实现这一目标,该项目组装了三个细长的模块,将住宅与南北相邻的地块隔开。同时,各模块向东西向的风景和朝阳路径开放。庭院(露台)打破了模块,带来了光,自然通风和景观特色的住宅内。
In order to achieve this, the project assembles three elongated modules that seclude the residence from the adjacent lots on the north and south. At the same time, the modules open themselves towards the scenic views and the morning to afternoon sun path on the east and west. Courtyards (patios) break the modules and bring light, natural ventilation and landscape features inside the residence.
这种结构增强了房屋的空间概念。承重墙(FINS)除了楼板和屋面板外,还完成了一种简单实用的结构原理,在这种高地震危险区表现良好。它还建立在空间意图的基础上,因为它允许不同的空间在视觉和物理上相互联系,而不受列的阻碍。
The structure enhances the spatial concept of the house. Load bearing walls (fins), in addition to floor and roof slabs, complete a simple and pragmatic structural principle that performs well in high seismic risk areas such as this one. It also builds upon the spatial intentions as it allows for the different spaces to relate visually and physically without the obstruction of columns.
© Santiago Pinyol
圣地亚哥皮约尔
外观被简化为三种材料组成的调色板,这些材料能有效地响应其所处环境的温度和气候条件。它们也是容易找到和充分建造的材料,很少或没有维护问题。外墙上的白色暴露混凝土和外墙上有纹理的灰泥覆盖了房屋的主体,而柚木覆层装置软化了表面,作为理想的绝缘材料。
The façade is reduced to a palette of three materials that respond efficiently to the temperature and climate conditions of its context. They are also materials easily found and adequately built with little or no maintenance issues. White exposed concrete on external slabs and textured stucco on external walls clad the main body of the house, while a teak wood cladding device softens the surfaces and acts as an ideal insulating material.
© Santiago Pinyol
圣地亚哥皮约尔
Architects Sergio Reyes Rodríguez
Location La Calera, Colombia
Category Houses
Area 500.0 m2
Project Year 2016
Photographs Santiago Pinyol
Manufacturers Loading...
客服
消息
收藏
下载
最近



























