查看完整案例


收藏

下载
架构师提供的文本描述。莫洛洛拉巴是昆士兰南部海岸的一个度假城镇。它有广阔的海滩和悠闲的感觉。微风公寓位于主要海滨长廊上。微风包含33套公寓,所有的海洋景观。里面有游泳池,健身房和花园。这座建筑的设计是为了最大限度地利用海洋景观,有广阔的生活区和广阔的阳台。该单位有一个轻和开放的感觉与该地区一致。(鼓掌)
Text description provided by the architects. Mooloolaba is a resort town on the southern coast of Queensland. It has expansive beaches and a laid back feel. The Breeze Apartments are located on the main beachfront promenade. The Breeze contains 33 apartments all with Oceanfront views. It contains a pool, gym and gardens. The building was designed to maximise views to the ocean, with wide living areas and sweeping balconies. The units have a light and open feel consistent with the area.
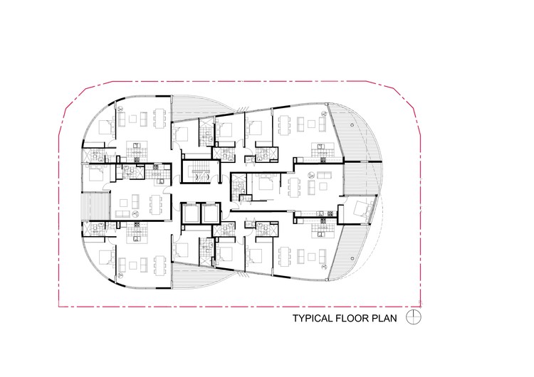
Level 4º-9º Floor Plan
第4层-9楼平面图
独特的曲线设计灵感来自附近潮汐河口的自然形态。大阳台之间的水平交替,创造了一个节奏的外观。外观是混凝土形式和穿孔网格板融合的结果。这些面板为卧室提供稳固和隐私,并向下弯曲,使客厅和阳台前的视野最大化。这就产生了一种流体效应。该设计立即继续本地语言,但创造了一个全新的表达。
The unique curvilinear design was inspired by the natural forms of the tidal estuaries nearby. The large balconies alternate between levels creating a rhythm on the façade. The façade is the result of a melding of concrete forms and perforated mesh panels. The panels provide solidity and privacy for bedrooms and curve down to maximise views in front of living areas and balconies. This creates a fluid effect. The design at once continues the local language, yet creates a completely new expression.
© Peter Sexty
彼得·塞克斯蒂
产品描述:这座建筑被涂上了油漆的砖石。阳台上有穿孔的金属屏风,以创造一种坚实的感觉,同时可以看到海洋。起伏曲线是由一种特殊的快门模板制成的现场混凝土制成的.
Product Description: The building is clad in painted masonry. The balconies are sheathed in Perforated metal screens to create a feeling of solidity whilst allowing views of the ocean. The undulating curves are created from in-situ concrete made by a special shuttered formwork.
© Peter Sexty
彼得·塞克斯蒂
客服
消息
收藏
下载
最近



















