查看完整案例


收藏

下载
© Rodolfo Lagos Berardi
鲁道夫·拉各斯·贝拉迪
架构师提供的文本描述。该项目位于拉斐尔湖附近,占地896.5平方米。这是一个独特的景观湖泊和一个强大的斜坡在其发展的大多数特点。预算迫使尽量减少对斜坡的干预,其中包含了最大数量的方案,在最小的平面空间内可以在场地开始时使用。这一点,再加上拉斐尔夏季的小气候带来的高温,意味着以下问题:节目密度高,太阳辐射过大,缺乏舒适的娱乐空间。
Text description provided by the architects. The project is located near Lake Rapel, on a site of 896.5 sqm. This is characterized by a privileged view of the lake and a strong slope in most of its development. The budget forces to minimize the intervention in the slope, containing the largest amount of program in the minimum of flat space available at the beginning of the site. This, together with the high temperatures presented by Rapel's microclimate in summer, implies the following problems: high program density, excessive solar radiation and lack of comfortable space for recreation.
© Rodolfo Lagos Berardi
鲁道夫·拉各斯·贝拉迪
处理新项目的方法产生于以下的学科关注:该程序在SIP中以有意中立和通用的方式解决,这样就可以通过一个操作元素来解决所有的体系结构问题。这一要素在每个项目中都有不同的形式和功能,被理解为主要的操作,并横贯办公室的所有建议,使它们具有统一的性质。
The methodology for dealing with new projects arises from the following disciplinary concern: the program is resolved in an intentionally neutral and generic way in SIP, for then to solve all the architectural problems through just a single operative element. This element, which in each project takes a different form and function, is understood as the main operation and is transversal to all the proposals of the office; giving them a uniform character.
© Rodolfo Lagos Berardi
鲁道夫·拉各斯·贝拉迪
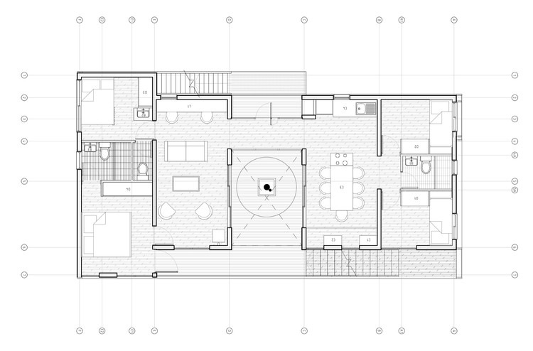
Floor Plan
© Rodolfo Lagos Berardi
鲁道夫·拉各斯·贝拉迪
在这种情况下,分辨率元素是平面,它在折叠时会在公共区域之间产生一个中介空间,保护过度的太阳辐射的内部,并为面向甲板上主要视图的娱乐提供了一个很大的空间。
The resolution element in this case is the plane, which when folded generates a space of mediation between the common areas, protects the interior of excessive solar radiation and enables a large space for recreation oriented to the main view on the deck.
Axonometric
在炎热的季节,折叠产生一个屋檐,保护房子免受过度的太阳辐射,允许特权的主要观点,而不产生过热。这一战略与在墙壁和屋顶上使用双层通风木质立面相结合,避免了信封受到直接辐射的过度暴露。最后,南面的窗户与北面的窗户和阴凉的中央露台相映成趣,这有利于交叉通风,并保持室内温度舒适。
During the hot season, the fold generates an eave that protects the house from excessive solar radiation, allowing to privilege the main views without generating overheating. This strategy is combined with the use of a double ventilated wooden façade - both on the walls and on the roof - avoiding the overexposure of the envelope to direct radiation. Finally, the south windows are mirrored with the ones on the north and a central patio in shade, which favors cross ventilation and keeps the interior temperatures comfortable.
© Rodolfo Lagos Berardi
鲁道夫·拉各斯·贝拉迪
在寒冷季节,主屋檐允许辐射进入室内,再加上高度的绝缘和消除包壳中所有可能的热桥,使小木炉只能在阴天才需要。
During the cold season, the main eaves allow the entrance of radiation to the interior, which combined with high levels of insulation and elimination of all possible thermal bridges in the envelope, allows the small wood stove to be needed only during cloudy days.
Architects B+V Arquitectos
Location Las Cabras, Chile
Category Houses
Architects in Charge Eloy Bahamondes E., Lucas Vásquez G.
Area 86.8 m2
Project Year 2014
Photographs Rodolfo Lagos Berardi
Manufacturers Loading...
客服
消息
收藏
下载
最近




















