查看完整案例


收藏

下载
Firm Ikon.5 Architects
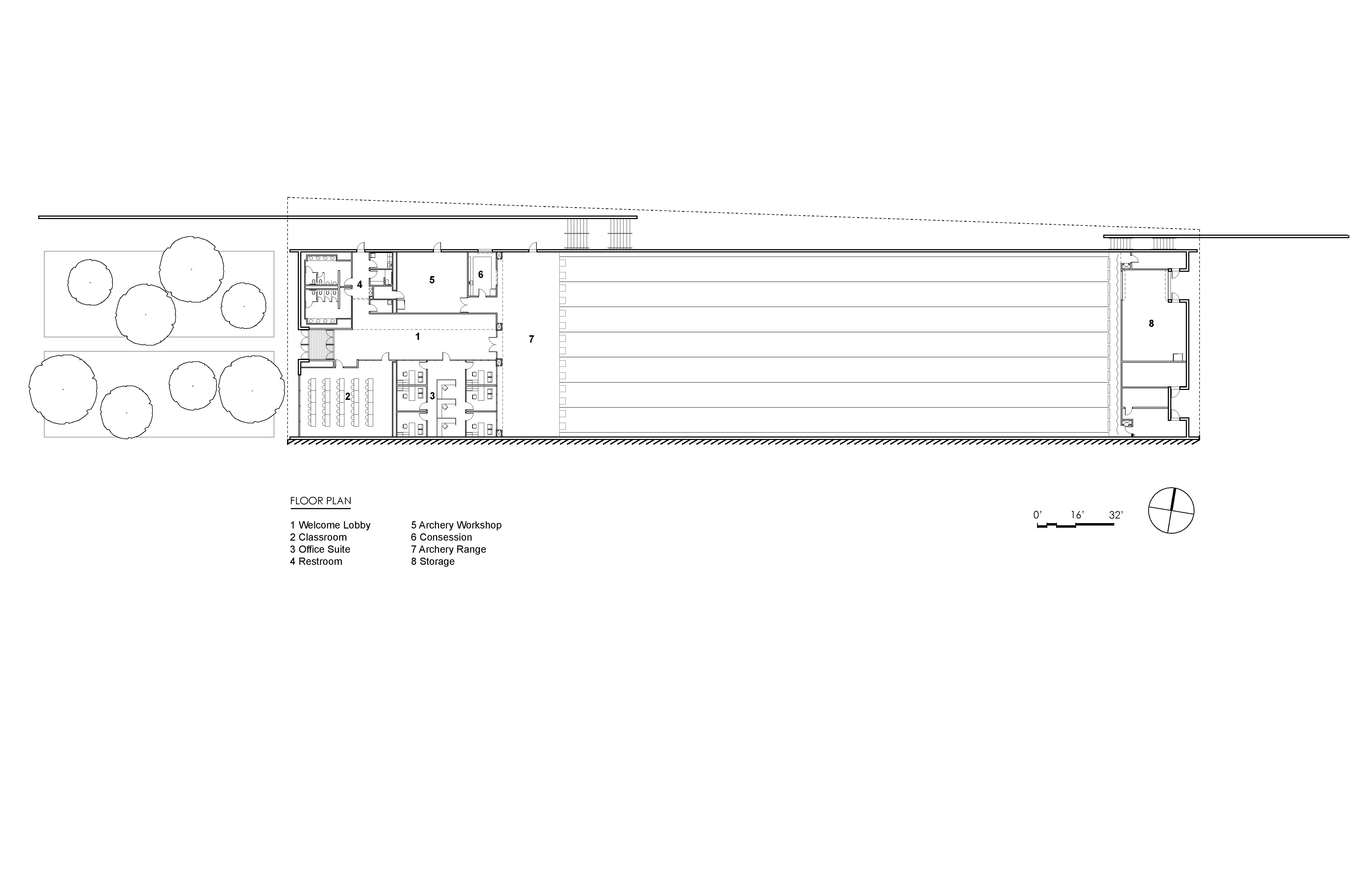
Type Hospitality + Sport › Sports Center
STATUS Concept
SIZE 25,000 sqft - 100,000 sqft
keywords:architecture, architecture news, interiors, interior design, portfolio, spec, brands, marketplace, products Olympic Archery Park Center | State of New Jersey
关键词:建筑、建筑新闻、室内设计、组合、规格、品牌、市场、产品-新泽西州奥林匹克射箭公园中心
客服
消息
收藏
下载
最近














