查看完整案例


收藏

下载
距离伊朗首都德黑兰一小时车程向西行驶,1090别墅坐落在科丹地区一个1200平方米、相对平坦的长方形场地上。在一个文化向现代化转变的国家,随着家庭日益面临当今生活的压力和焦虑,设计意图是让人们重新找回归属感,为聚会和家庭习惯提供充足的空间。
通过面向南,别墅用自然光将其内部洪水淹没,通过全高的玻璃墙进入相邻的三高空隙空间。
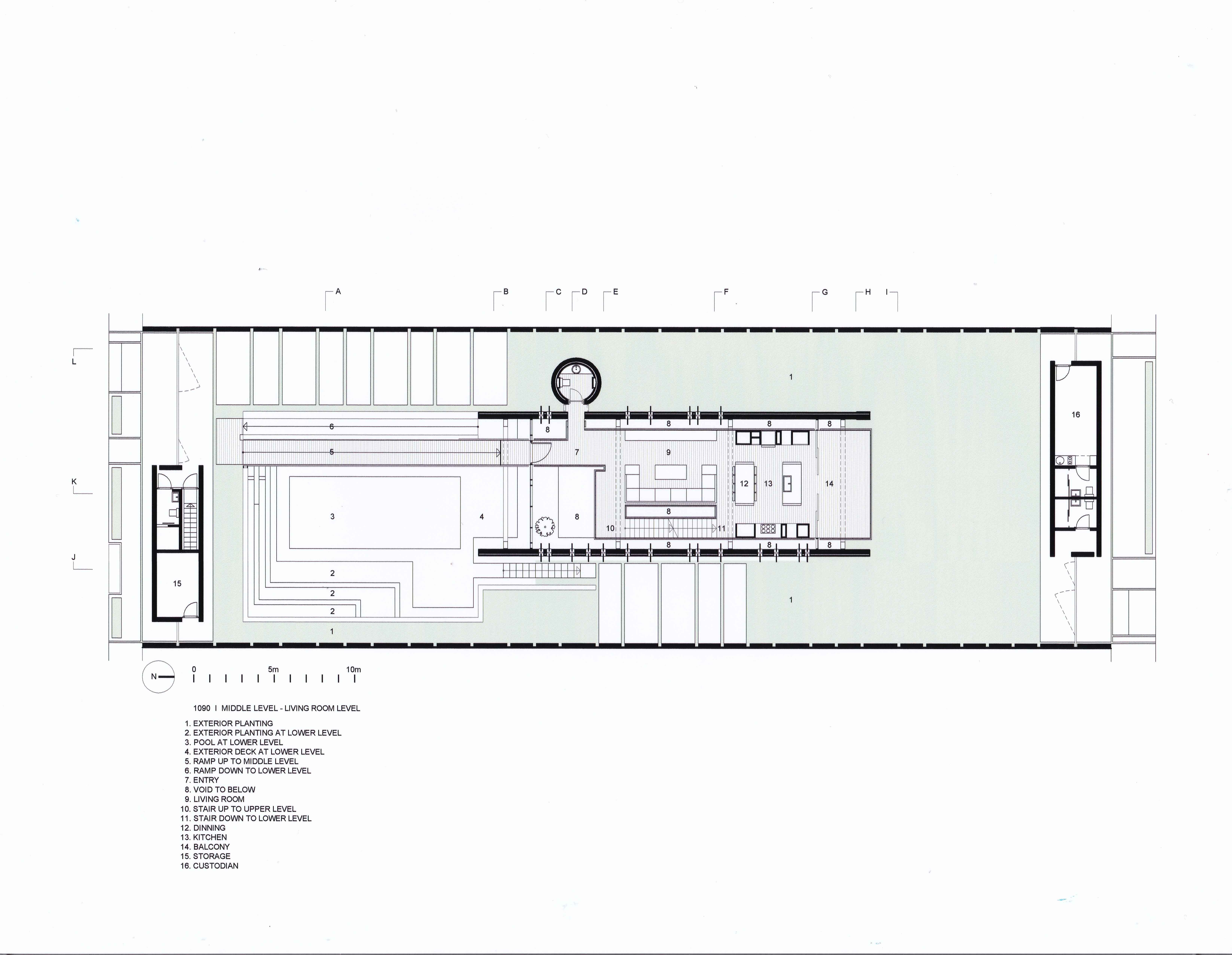
别墅由三个浮动层组成。较低的水平基本上是一个漂浮的甲板上的地面充满植物,中和上层是悬挂在四个结构画框,从一个绝缘的,浇铸现场,暴露混凝土外壳。
在这所房子的旅程中的关键时刻之一是较低的水平,这是游泳池甲板的延伸,被设计用来作为前院的一个有盖的露台。
中间层由主客厅、厨房和餐厅组成,通过三层高的空隙空间提供前院的不同体验。
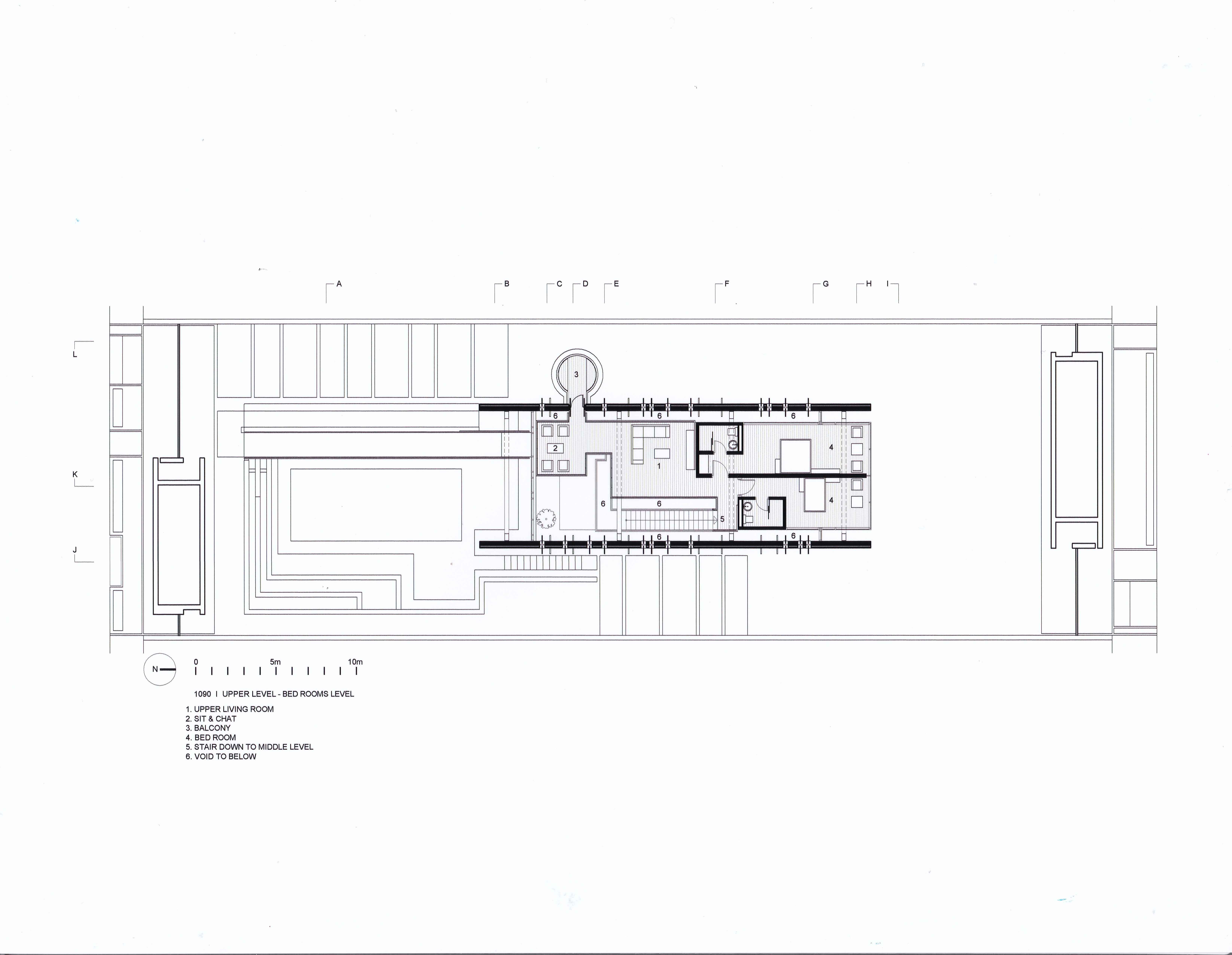
当一个人上升到主要由卧室和上层起居室组成的上层,多个空间允许自然光在别墅的不同层次之间传播,并提供了视觉和物理的联系。
别墅内部的材料调色板与外部使用的材料一致。裸露的混凝土、木材和植物是材料调色板的主要元素,在整个别墅的内部和外部都使用过,以便在室内和室外空间之间创造一种节奏感和谐感。
Firm Saeed Mirmohamad Sadeghi & Ladan Zarei
Type Residential › Private House
STATUS Built
YEAR 2016
SIZE 3000 sqft - 5000 sqft
BUDGET Undisclosed
keywords:architecture, architecture news, interiors, interior design, portfolio, spec, brands, marketplace, products Villa No. 1090
关键词:建筑、建筑新闻、室内设计、组合、规格、品牌、市场、产品编号1090
客服
消息
收藏
下载
最近
































