查看完整案例


收藏

下载
© Joao Morgado
.Joao Morgado
架构师提供的文本描述。这座房子位于历史悠久的奥比多斯市郊的普拉亚德尔雷伊(Praia Del Rey)。这一地区的特色是新传统的现代别墅、古老的农场、高尔夫球场,周围是针叶林。
Text description provided by the architects. The house is in Praia del Rey on the outskirts of the historic city of Obidos. The area is characterised by neo- traditional modern villas, old farms, golf courses and is surrounded by conifer forests.
© Joao Morgado
.Joao Morgado
客户对建筑师的简短介绍是创建一个干净、现代、可持续的房子,它将对其环境作出反应,使家庭能够相互影响,景观和周围的乡村。
The client’s brief to the architect was to create a clean modern sustainable house which would respond to its environment, enable the family to interact with each other and the landscape and surrounding countryside.
© Joao Morgado
.Joao Morgado
Ground Floor Plan
© Joao Morgado
.Joao Morgado
该遗址面向西南,四周是树木,俯瞰着著名的高尔夫球场和大西洋的景色。它是通过当地的一条道路和地点缓缓地向高尔夫球场倾斜,并有几棵成熟的针叶树在场地本身。
The site faces south-west surrounded by trees overlooking a famous golf course and views of the Atlantic sea. It is accessed of a local road and the site slopes gently towards the golf course with a few mature conifer trees on the site itself.
© Joao Morgado
.Joao Morgado
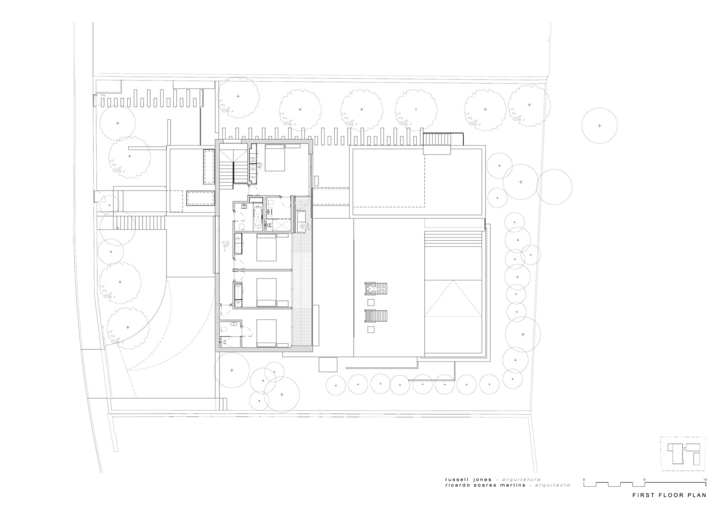
通往房子的主要行人通道就在通往底层的一座桥上。这是房子的心脏和生活区。这座桥下的底层有一个单独的车辆通道。这层楼还设有厂房、车库和葡萄酒店。底层设有起居室、厨房、公用设施、内外就餐区和客栈。一楼是通过一个双高度自然照明楼梯容纳三个卧室,一个主卧室和一个主浴室。
The main pedestrian access off the road into the house is over a bridge into the ground floor. This is the heart of the house with the living areas. There is a separate access for cars to the lower ground floor under the bridge. This floor also houses the plant rooms, garage and wine store. The ground floor accommodates the living area, kitchen, utility, inside and outside dining areas and guest wing. The first floor which is via a double height naturally lit staircase accommodating three bedrooms, a master bedroom and a main bathroom.
© Joao Morgado
.Joao Morgado
该三层大厦的设计,是为了尽量利用该幅土地的南面及西面景色。一楼的L形平面环绕着一个无限大的游泳池,餐厅和休息室直面大海。这些空间的巨大悬垂使太阳能免受葡萄牙太阳的影响,同时也使我们能够无缝地过渡到从底层任何地方可到达的大梯田。当窗户滑进墙上的大口袋时,大的玻璃区域可以打开,以加强这种连接。内饰彼此跟随,在视觉上联系和联系,总是提供遥远的视角和特定的与外界的视觉关系。
The three storey building layout has been designed to facilitate maximum use of the south and west views from the site. The L-shaped plan of the ground floor wraps around an infinity pool with the dining areas and lounge directly facing the sea. The large overhang to these spaces enables solar protection from the Portuguese sun yet enables a seamless transition on to a large terraced area accessible from anywhere on the ground floor. The large glazed areas can be opened up as the windows slide into large pockets in the walls to enhance this connection. The interiors follow one another, link and relate visually, always offering distant perspectives and specific visual relations with the outside.
© Joao Morgado
.Joao Morgado
房子周围是一个景观缓冲区,这形成了一个真正的和视觉链接周围的森林。在西部和南部,已经种植了大量的本土成熟树木,并种植了野生草甸草作为地面覆盖。东部和北部地区种植了低矮的灌木和草本植物,与高尔夫球场融为一体,不遮掩露台上的景色。餐厅和厨房之间有一个有玻璃的连接,使景观与露台相关联,并允许阳光穿透房子的更深部分。
Surrounding the house is a landscaped buffer zone which forms a real and visual link to the surrounding forest. To the west and south large indigenous mature trees have been planted with wild meadow grass for ground cover. The east and north zones have been planted with low shrubs and grasses to blend in with the golf course and to not obscure the views from the terrace. There is a glazed link between the dining area and kitchen enabling the landscape to relate to the terrace and allow sun light to penetrate deeper parts of the house.
© Joao Morgado
.Joao Morgado
© Joao Morgado
.Joao Morgado
设计理念的一部分是面对当地石材的底层建筑,仿佛是从大自然中雕刻出来的,而第一层的白色盒子就在上面,相形见绌。这将进一步加强与景观,将允许成长的石头和围护一楼。为了增加隐私,石头和公共侧的窗户都是故意小的。这与西面露台上的开窗形成了鲜明的对比,西面已被最大限度地欣赏到风景,并创造了一种开放的感觉。
Part of the philosophy of the design has been to face the lower ground floors in local stone as if sculptured from nature and with the contrasting first floor white box resting on it. This will be further enhanced with the landscaping which will be allowed to grow over the stone and envelop the ground floor. The window openings in the stone and on the public side have been made intentionally small to enhance privacy. This contrasts with the fenestration on the terraced west facade which has been maximised to enjoy the views and create a sense of openness.
© Joao Morgado
.Joao Morgado
这座房子的设计目的是在不过热的情况下最大限度地利用被动式太阳能。有太阳能热水供暖,空气源热泵供暖,大开窗,滑动太阳能幕和内部百叶窗。这将使全年舒适与最低的成本。
The house has been designed to maximise passive solar gain without overheating. There is solar water heating, air source heat pumps for heating, large opening windows and sliding solar screens and internal blinds. This will enable all year comfort with minimal costs.
家庭,充满光明和隐私,希望能为未来的所有用户提供积极的体验。
The home, full of light and privacy will hopefully ensure a positive experience for all its users in the future.
© Joao Morgado
.Joao Morgado
Architects Russell Jones Architects, RSM arquitecto
Location Obidos, Portugal
Category Houses
Area 350.0 m2
Project Year 2016
Photographs Joao Morgado
客服
消息
收藏
下载
最近







































