查看完整案例


收藏

下载
建筑师:OB建筑位置:英格兰汉普郡温彻斯特:2016年面积:2.949平方英尺/274平方米摄影:(C)马丁·加德纳描述:
“艾芬豪露台位于温彻斯特保护区的中心地带,以住宅区为主。该场地上的现有结构包括一座3层维多利亚式的露台屋,其一侧是1960年的2层延伸部分。这两个机构合并在一起,形成了妇女研究所的办公空间。
我们的客户,当地开发商罗伯特韦斯顿有限公司,在2015年冬天购买了这个网站。他们热衷于利用这个项目作为一个机会,把他们的品牌发展成“生活方式”的开发者。
与OB建筑接触,提出了一个愿景,以加强和重新振兴破旧和过时的建筑,使它回到住宅用途。我们的简介是为我们的开发人员客户提供独特的设计和高市场的产品。
维多利亚时代的建筑是一个突出的和引人注目的特点,在街道上,但破坏了不一致的1960年的延伸到一边。
利用规划规则的放宽,我们向温彻斯特市议会提交了一份事先批准的申请,要求将办公场所改为住宅用地。
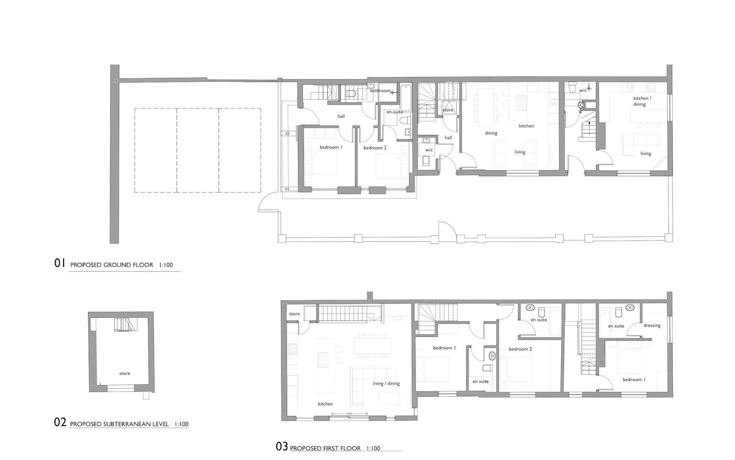
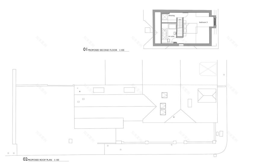
改建后的办公室安排已被拆除到结构核心,三栋新的城镇房屋已仔细插入现有的结构中。两个单位之间的隔断恢复了维多利亚时代织物中最初的“断裂”,从而有助于加强建筑物的历史特征。
镇上的房屋包括宽敞的开放式厨房/餐饮/居住空间,有两间双人卧室和套房。从外部看,虽然维多利亚时代的建筑元素得到了修复和加强,但我们面临着如何处理不协调的1960年扩建的挑战。
从概念上讲,我们决定把这个元素和原来的建筑区别对待。我们决定保留当代的形式,用一个新的、短暂的、层次分明的外观来重新想象它,而不是试图将它强加给它。
一个过度航行,视觉上没有支撑的木丝网被建议到外观,以增加深度和浮雕以前的平坦的海拔。“Accoya”木材被指定为尺寸稳定性和耐久性。为了克服维修问题,并让它自然地适应天气,人们对它不加任何处理。现有的底层砖石被涂成白色,与维多利亚元素上的红砖形成对比。
现有的建筑结构包括实心的砖墙、悬挂的木材连接地板和在屋顶上切割,并有一个温暖的平顶延伸。根据改变用途的需要,根据L1B核准文件对建筑结构进行了升级。在新住宅之间和与邻居共用的住房之间的聚会墙壁上增加了声学处理。
这种不寻常的高地方法在一个非常一致的红砖保护区内创造了一个令人惊讶的元素。这种意外的干预帮助我们的开发人员客户创建了一个品牌,在温彻斯特开发人员拥挤的市场中脱颖而出。“
谢谢你阅读这篇文章!
keywords:England Hampshire OB Architecture Winchester
关键词:英格兰汉普郡OB建筑温彻斯特
客服
消息
收藏
下载
最近
























