查看完整案例


收藏

下载
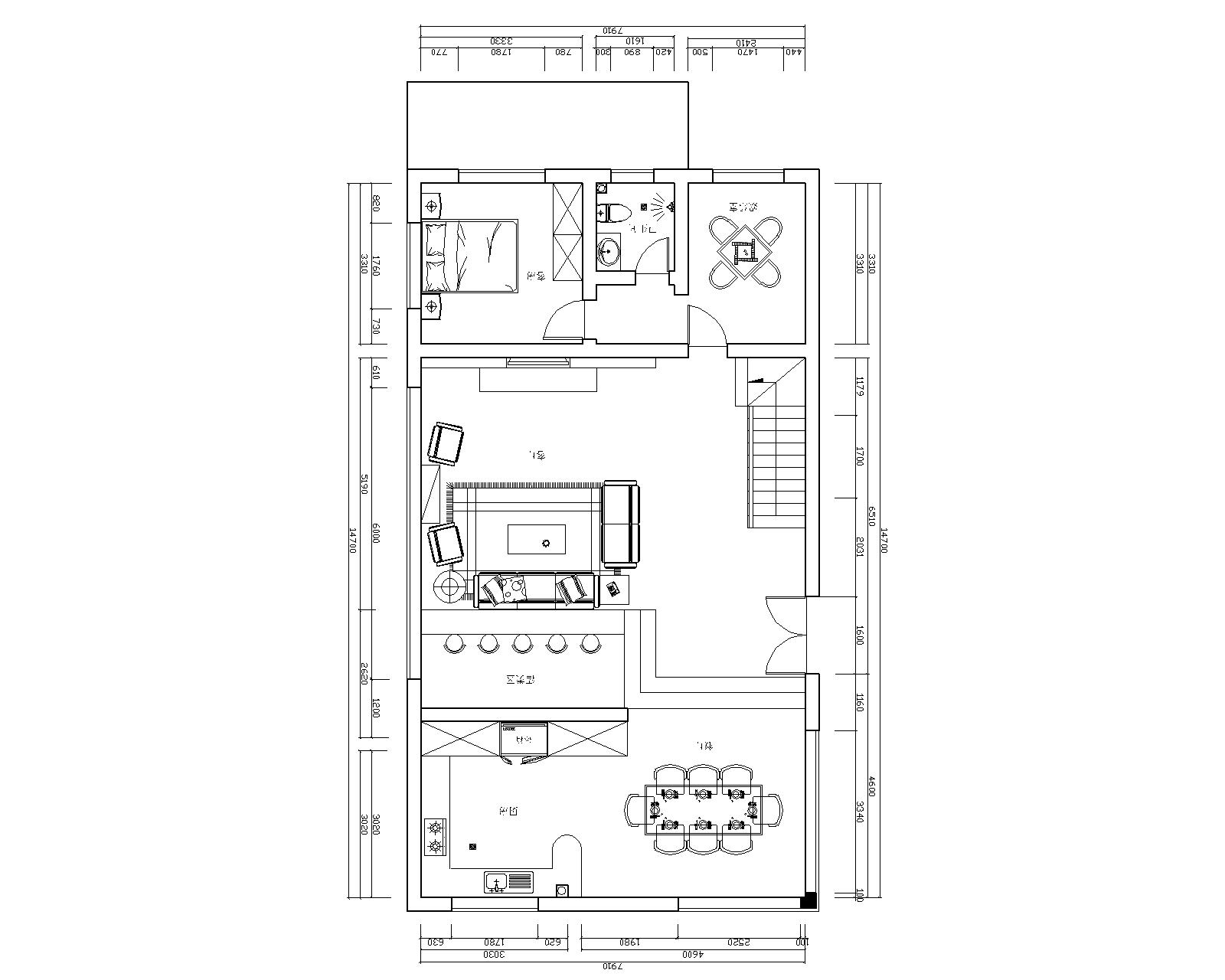
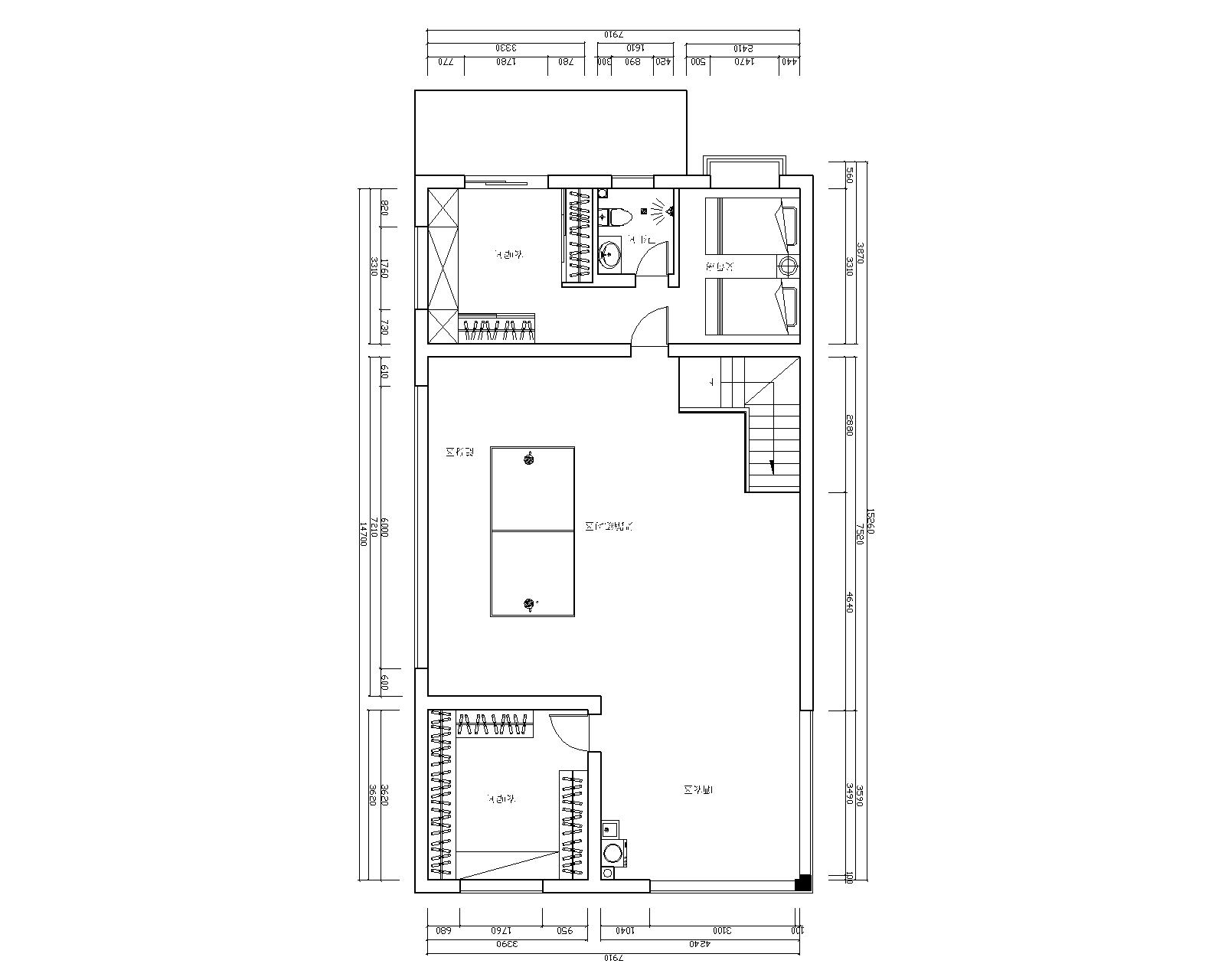
设计说明:1.设计目的:随着社会的发展,人们对生活环境的要求逐渐从功能型提升到具有人文气息和生态平衡的艺术环境,室内环境空间作为文化的一种载体,包含着深刻的文化印迹和浓厚的人文精神.2. .设计背景:在岳麓山中,有很多绿茵茵的大树,有泉水叮咚,有奇山异石,没有任何污染,没有任何修饰,到处都是人们向往的自然的味道.3设计主题:没有华丽的装饰,没有炫目的灯光,却充斥着满是情感的气味,用石砖,用原木,用宽敞的落地玻璃与温和的灯光体现着粗旷与柔美,只为了寻求最原始最真实的自己,寻求记忆里那一丝最永恒的情感回归.4.设计内容: 无论是粗旷的水泥砖,简单的绿色植物,有着独特意境的实木空间,还是时尚却精致典雅的金属饰物,或者颇具质感的皮革沙发等等,简洁的材料,从落地玻璃透出的大片景观植物,明快的色调,无一不体现出中国古典哲学中天人合一的思想.麓山恋—永恒的岁月: 这座房子坐落在岳麓山上,远离喧嚣,纯净的环境里,长满了当地的植物,映山红、枫树和其他充满香气的树.透过玻璃窗闻着花香,听着林子里的美妙的声音,坐在旧船木做的椅子上,品一口茗茶,感受这刹那的永恒。 客户是一个交友甚多,颇具“江湖气息”的人,注重友情讲义气的他很有原则,是个很真实的人,也许正因为个性的这种洒脱,他有些粗旷,有些张扬,也喜欢户外的放肆与新奇,对于他的家,他希望能回归自然,回归真实,他期望能在这样的房子里与他的家人永远的住下去。所以,在设计中,更多的提炼了符合他个性与喜好的元素:原始的实木,粗旷的水泥空心砖,简洁的灰色水泥自流平地面,野性十足但细腻耐久的皮革,来打造一个简约中透出一种自然旷野的逍遥,清新、舒适的家。 客厅背景墙采用了整版灰色水泥空心砖,家具都是柏斯堪的纳维亚风格, 整个室内空间以幽静休闲,轻松舒适为主导,加上岳麓山自然清新的地理环境,别有用心的在每个房间都采用大面积的落地玻璃窗,将麓山美景巧妙的引入室内,利用这些大自然中最美得绿化来组织室内空间,强化空间,好似山水画中行。麓山恋—从前以后: 用色彩来迷惑记忆,粗旷的红砖、细腻的皮革、原木家具透出包豪斯似的经典,瞬间进入记忆的时差。从前,这位客户与对面的“永恒的岁月”是工作上的拍档,现在他们是朋友,每天都做着同样的事情,但相比之下,他更加的沉默,喜欢安逸,对于他的时间,总是细细的品,慢慢的过,也许是经历得比较多,比较深沉,他没有过多的语言,但也比较时尚,喜欢简单,喜欢干净,也喜欢自然,他也同样期望能在这样的房子里永远的住下去,与他的家人。而结合他的个性与喜好,在设计中采用红砖墙体,浅灰色亮光地面,镜面不锈钢,实木结构和银色马赛克,以此打造一个时尚,简单却精致典雅的家. 客厅背景墙和局部墙体都采用红砖造型,在色彩上有了跳跃,仿佛提示着时间上的从前和以后,沙发座椅均采用皮革质地,以及吧台上银色马赛克的运用无一不体现着细节与品质. 与”永恒的岁月”相同的仍然是对自然的追求,大面积落地玻璃依然为了窗外赏心悦目的景色,树木花卉以其千姿百态的自然姿态、五彩缤纷的色彩、柔软飘逸的神态、生机勃勃的生命,恰巧和冷漠、刻板的金属,玻璃及僵硬的建筑几何形体和线条形成强烈的对照,以其特殊的色质与整个室内空间在形式上取得协调,在质地上又起到刚柔对比的特殊效果。而每处玻璃窗即把室内与室外分割开来,又享受了与大自然的共融性,似隔非隔,隔而不断,仿佛在上演着一曲沁入心间的麓山之恋。
客服
消息
收藏
下载
最近












