查看完整案例


收藏

下载
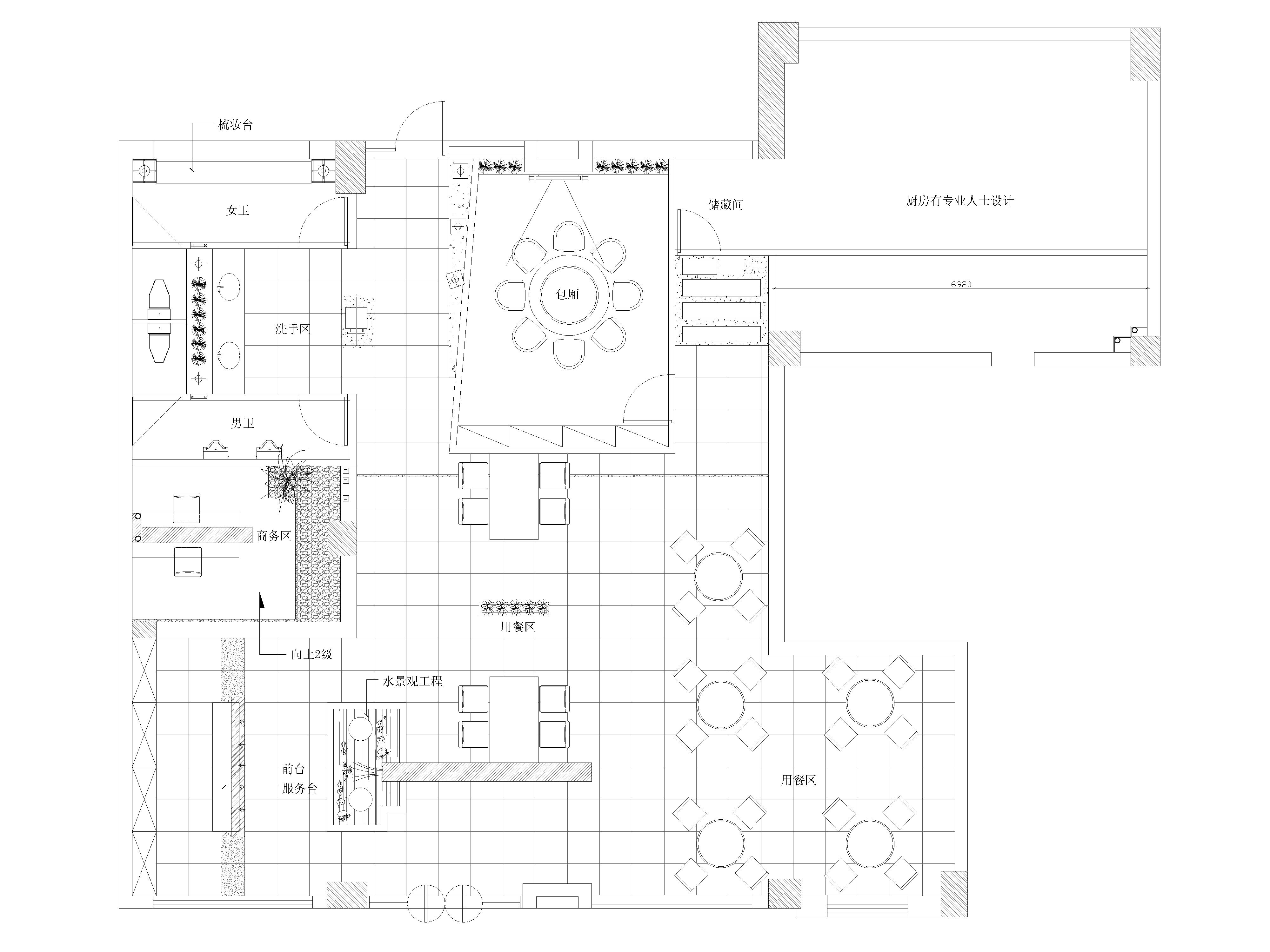
项 目:福州.融侨旗山别墅餐厅项目地址:中国 福州设 计 师:刘焴文 此案为福建融侨地产.旗山别墅配套的公共简餐厅。设计师在把“家”作为此案设计的主题和设计切入点。色彩以灰调为主贯穿整个空间,营造出儿时母亲下厨时昏暗的光线和氛围,让人仿佛时空交错回到了童年时的家中。仿古砖的使用,亲切柔和,简洁明净,加重了此种错觉。设计师巧妙地将寻常的竹子和枯枝加入到设计中,使得乡土情节扩大到室外大环境。竹子依次排开,既作隔断,又可作装饰,如同家中后院郁郁葱葱的竹林。白色枯枝与环境形成鲜明的对比,隔窗相望,仿佛一眼望到了故乡庭院深深树影。火烧云般的石材,素色水泥墙壁,黑白照片的相框,玻璃球的应用下增添了空间感,同时也在回放着生活的一幕一幕。一些怀旧的色彩和材料,让空间充满岁月的情怀,一直在讲述着过去。PAGE 1
客服
消息
收藏
下载
最近













