查看完整案例


收藏

下载
架构师提供的文本描述。这所房子的起源可能有一种奇特的叙述。可能的相反,但肯定不是不必要的过程,构思和设计的空间,其中最重要的感官作用,自然本身。
Text description provided by the architects. The genesis of this house might have a somewhat peculiar narrative. The possibly reversed but certainly not unwanted process of conceiving and designing the space where the foremost sensory role has the nature itself.
© Jure Živković
(C)jureŽivković
最初,在其他一切之前,有一棵胡桃树,提供完美的自然阴影,代表了第一个室外居住空间。随着时间的推移,这棵树周围逐渐形成了一个露台,最终产生了建造房子的想法。
Initially, before everything else, there was a walnut tree, providing perfect natural shade and representing the first outdoor residing space. Over time, a terrace was gradually shaped around the tree, and eventually the idea of building the house emerged.
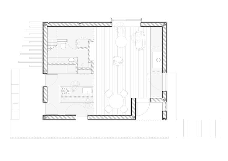
Floor Plan
倾斜的地形,其全景俯瞰附近的森林和山景,以及现有的露台的位置,是唯一的决定因素在设计过程中,这个国家的房子。
The sloped terrain with its panoramic view overlooking the nearby forest and mountainscape together with the position of the existing terrace were the only determining elements in the process of designing this country house.
© Jure Živković
(C)jureŽivković
不需要调情,也不需要提及周围现有的和传统的,不需要拨款或批准,这只是一座小山上的房子,一座露台延伸和封闭的观景台。倾斜屋顶,紧凑的布局设计和木材在正面覆层中的使用是该地区唯一独特的功能元素被接受和实施在设计中。
Without any need for flirting with or referring to existing and traditional in its surrounding, with no need for appropriation or approval, this was simply about to be a house on a hill, a terrace extension and enclosed belvedere. The pitched roof, the compact layout design and the usage of wood in facade cladding were the only distinctive functional elements of the region accepted and implemented into the design.
© Jure Živković
(C)jureŽivković
这座房子的总楼面面积为100平方米,包括地下室一级的一个小储藏室、一楼有一个开放式厨房和一个浴室单元的起居室,以及一个位于阁楼的睡眠区。
With the gross floor area of 100m2 the house consists of a small storage on basement level, a living room with an open kitchen and a bathroom unit on the ground floor, and a sleeping area on mezzanine level.
© Jure Živković
(C)jureŽivković
在外部和内部之间获得空间流动的意图,特别是在连接室内厨房区、夏季室外厨房和露台方面的意图,同样是在室内设计中以开放空间计划的形式来实现的。
The intention to obtain a spatial flow between the exterior and interior, notably in terms of connecting the indoor kitchen area, the summer outdoor kitchen and the terrace, was equally sought to be achieved in the interior design itself in the form of an open space plan.
© Jure Živković
(C)jureŽivković
因此,整个房子被认为是一个单一的体积,很大程度上反映了周围的自然从它的每一个点,而厨房和浴室面积形成一个小的紧凑盒状的核心集在更大的房子体积。
Accordingly, the entire house is perceived as a single volume, greatly reflecting the surrounding nature from its every single point, whereas the kitchen and the bathroom area form a small compact box-like core set within the larger house volume.
© Jure Živković
(C)jureŽivković
除了混凝土地下室和地基之外,该房屋完全由加气混凝土砌块制成,该砌块在给定位置显著加速施工。30cm厚的外墙,也由加气混凝土砌块制成,满足所有建筑物理要求,无需额外的保温。通过西伯利亚落叶松包层的通风立面,提高了夏季不希望的过热和冬季热损失的热效率。正面上漆有两层黑色木焦油,一种天然的正品,深入到木材中,赋予它保护,长期持久。
Apart from the concrete basement and foundations, the house was entirely made of aerated concrete blocks which significantly accelerated construction at the given location. The 30cm thick exterior walls, also made of aerated concrete blocks, met all building physics requirements with no additional thermal insulation needed. The thermal efficiency in terms of unwanted overheating during summer and heat loss in winter time was enhanced by a ventilated facade made of Siberian larch cladding. The facade is painted with two layers of black wood tar, a natural genuine product which penetrates deep into the wood giving it protection and lasting for a long period of time.
© Jure Živković
(C)jureŽivković
白天的黑色紧凑型结构和看似整体式结构的外观在晚上通过打开灯而改变。房子变成了一个精致的几乎像灯笼一样的物体,通过百叶窗插槽向周围投射光线,模仿白天照亮室内的阳光。
The appearance of daytime black compact and seemingly monolithic structure is altered in the evening by switching the lights on. The house becomes a delicate almost lantern like object, casting light on its surroundings through the shutter slots imitating the sun rays that illuminate the interior during the day.
Architects PRO-S
Location Ogulin, Croatia
Category Houses
Architect in Charge Tomislav Soldo
Area 100.0 m2
Project Year 2016
Photographs Jure Živković
Manufacturers Loading...
客服
消息
收藏
下载
最近



















