查看完整案例

收藏

下载
© Christopher Frederick Jones
克里斯托弗·弗雷德里克·琼斯
架构师提供的文本描述。为露地生境概念框架提供信息的两个关键驱动因素是背景和可行性,两者都严重依赖于当地的城镇规划。
Text description provided by the architects. The two critical drivers informing the conceptual framework for Habitat on Terrace were context and feasibility, both of which leaned heavily on the local town plan.
© Christopher Frederick Jones
克里斯托弗·弗雷德里克·琼斯
Floor Plan Level 01
01层平面图
© Christopher Frederick Jones
克里斯托弗·弗雷德里克·琼斯
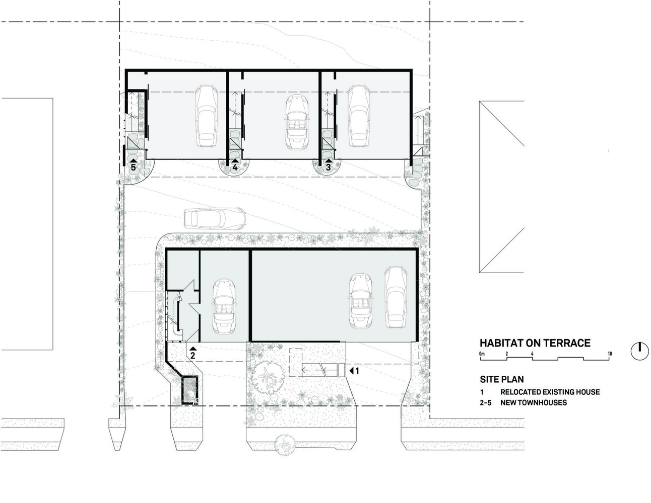
该项目的可行性取决于在仅有760平方米的场地上增加第五套住宅,这反过来又通过直接参考该地点现有的昆士兰人,为整个发展项目的建筑设计提供了信息。设计原则与第五套住宅的产量相结合,使规模更有利于价值而不是成本,使发展从纸面项目发展到建设成果。
本项目是在尊重当地环境的同时,对城郊地区进行密集化的实践。它试图成为一个例子,说明一个发展项目如何通过其当代解读来回应昆士兰方言的特性。
The project feasibility hinged on the addition of the fifth dwelling on a mere 760m2 site which in turn informed the architectural design of the whole development through direct references to the existing Queenslander on the site. The design principles coupled with the yield of the fifth dwelling was able to tip the scale in favour of value over cost to take the development from being a paper project to a built outcome.
The project is an exercise in densification of the inner city suburban site while respecting the local context. It attempts to form an example of how a development project can respond to the character of the Queensland vernacular through its contemporary interpretation.
© Christopher Frederick Jones
克里斯托弗·弗雷德里克·琼斯
站点策略将队列从其直接上下文中删除。现有的昆士兰人被搬到东邻两层的木屋,而新的“第五”联排别墅位于西边,离邻近的三层楼更近。新的联排别墅从相邻的单元中借来高度,并直接参考该地点现有的昆士兰人。它重新解释了现有房屋外观的形状、比例和特征。
The site strategy took queues from its immediate context. The existing Queenslander was raised and relocated towards a two-storey timber house next-door to the east, while the new ‘fifth’ townhouse was sited to the west, closer to a neighbouring three-storey unit block. The new townhouse borrows height from the adjacent unit block and makes direct reference to the existing Queenslander on the site. It reinterprets the shape, proportion and features of the existing house façade.
© Christopher Frederick Jones
克里斯托弗·弗雷德里克·琼斯
其结果是一个当代三层楼高的传统昆士兰房屋的解释,这是由当地的法规所支持的。
The result is a contemporary, three-storey, interpretation of the traditional Queensland house, which is supported by the local code.
三套后置住宅重复这一概念,形成了一套三套“粘合在一起”的房屋。南北两面与折叠金属薄片相连,形成三面山墙屋顶,向下延伸至东侧和西侧。
The three rear dwellings repeat this concept to form a set of three ‘glued together’ houses. North and south facades are linked with a ribbon of folded metal sheeting which forms the triple-gable roof that extends down to bookend the form on the east and west sides.
© Christopher Frederick Jones
克里斯托弗·弗雷德里克·琼斯
每栋住宅都采用被动设计原则来实现可持续性。居住空间延伸到景观,通过使用全高度双折叠门,真正连接内外。尽管很紧凑,但通过借用户外空间和景观,生活区域还是感觉很宽裕。
对三后排别墅的进入顺序重新设想了到达的经历。一个私人的外部大门和楼梯带一个人到一个美丽的美化庭院和露台为每个单独的家。后面的露台取代了传统的阳台,露出了入口的门。
Each dwelling embraces sustainability through passive design principles. Living spaces extend into the landscape through the use of full height bifold doors, which genuinely connect the inside and outside. Despite being compact, the living areas feel generous through borrowing outdoor spaces and vistas.
The entry sequence to the three rear townhouses reimagines the experience of arrival. A private external gate and stair leads one up to a beautifully landscaped yard and terrace for each individual home. The rear terrace substitutes the traditional veranda and reveals the entry door..
© Christopher Frederick Jones
克里斯托弗·弗雷德里克·琼斯
Architects refresh*design
Location Brisbane, Australia
Category Houses
Architect in Charge Erhard Rathmayr
Area 560.0 m2
Project Year 2016
Photographs Roger D’Souza, Christopher Frederick Jones
Manufacturers Loading...
客服
消息
收藏
下载
最近




















