查看完整案例


收藏

下载
© Paul McCredie
保罗·麦克里迪
架构师提供的文本描述。度假屋坐落在陡峭,蜿蜒的砾石车道的底部,在一个倾斜的灌木丛覆盖的地方,俯瞰着佩洛鲁斯湾。
Text description provided by the architects. The holiday house sits at the bottom of a steep, winding gravel driveway on a sloping bush covered site looking out to Pelorus Sound.
© Paul McCredie
保罗·麦克里迪
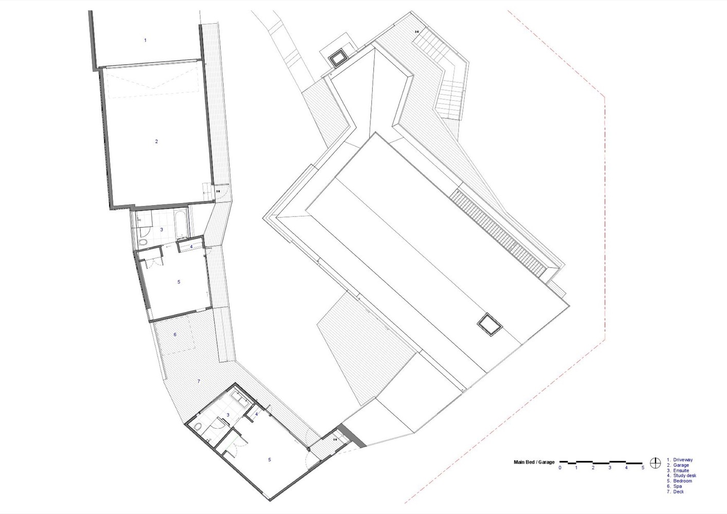
屋顶形式帮助“折叠”房子形成一个小的中央庭院周围的土地的形状。这所房子的布置是为了提供各种住宿条件,供少数人或大群人居住,并以一种类似字符串的方式布置。车库和2间卧室位于顶层,通向起居空间,向下延伸至活动室和各种卧室,通向较低的草坪。
The roof form helps ‘fold’ the house into the shape of the land around a small central courtyard area. The house is laid out to provide varied accommodation, for small numbers or large groups and is laid out in a string like manner. The garage and 2 bedrooms are at the top level leading down to the living space and down further to an activity room and a variety of bedrooms opening out to a lower a lower lawn.
© Paul McCredie
保罗·麦克里迪
没有前面的入口,有几种不同的方式在房子周围和通过,无论在里面和外面。有一个步行和四自行车道,这是一个延伸的车道,通过中央庭院,并在一个内部连接的道路,导致较低的草坪和码头。
There is no front entry and there are several different ways to move around and through the house, both inside and out. There is a walking and quad-bike track that is an extension of the driveway that passes through the central courtyard and under an internal link-way leading to the lower lawn and jetty.
© Paul McCredie
保罗·麦克里迪
Living Level Floor Plan
生活水平平面图
© Paul McCredie
保罗·麦克里迪
深色的垂直木材覆盖层和一个柔软的灰色屋顶帮助房子休息在灌木丛中。
Dark vertical timber cladding and a soft grey roof help the house rest amongst the bush.
© Paul McCredie
保罗·麦克里迪
Architects Parsonson Architects
Location New Zealand
Category Houses
Architects in Charge Gerald Parsonson, Tim Lovell, Paul Hansen
Area 500.0 m2
Project Year 2016
Manufacturers Loading...
客服
消息
收藏
下载
最近































