查看完整案例


收藏

下载
© Scott Burrows Photography
斯科特·布伦斯摄影
架构师提供的文本描述。在洪水易发地区的活跃街道上,设计一个当代和私人住宅时,什么是合适的反应?
Text description provided by the architects. What is the appropriate response when designing a contemporary and private home, along an active street on a flood-prone setting?
C2豪宅在布里斯班河有一个独特的牛弓,提供不间断的河流景观。设计反应是把家想象成一个由5个不同的空间组成的过程,每个空间都有各自的功能,但却与内部和外部的流动过渡紧密相连。
C2 House occupies a unique oxbow in the Brisbane River that provides for uninterrupted river views. The design response has been to imagine the home as a procession of 5 distinct spaces, each with their own function yet highly connected with flowing transitions between inside and outside.
© Scott Burrows Photography
斯科特·布伦斯摄影
这些空间从一个连续的入口开始,沿着浮动的台阶,来到向天空开放的亲密的户外展馆,这是一个私人空间,可以坐在火炉旁或凝视星空。这个空间通过一个宽敞的、充满光线的空间供居住和就餐-家庭的心脏和枢纽。玻璃滑动门延伸到整个建筑的宽度,打开了高架后甲板,游泳池,和令人惊叹的河流景观。
The spaces begin with a sequential entry up floating steps to the intimate outdoor pavilion which is open to the sky – a private space to sit by the fire or gaze at the stars. This space flows through to a spacious light-filled volume for living and dining – the heart and hub of the home. Glass sliding doors which extend to the full width of the building open out the elevated rear deck, pool, and stunning river views.
© Scott Burrows Photography
斯科特·布伦斯摄影
隐藏在这些活跃的起居空间是画廊和卧室,这些拥抱中央室外展馆的边界线。这些私人空间是为容纳客人和大孩子而设计的。
Hidden from these active living spaces are the gallery and sleeping rooms, which hug the central outdoor pavilion on the side boundaries. These private spaces are designed to be flexible for accommodating guests and grand kids.
隐私是这所房子的主要动力。与它的许多邻居不同,它的外部“皮肤”通过使用许多可操作的屏幕关闭是很重要的。晚上,当外面的皮肤被关闭时,房子的核心被照亮-这是一盏发光的灯,暗示里面有激活的用途。
Privacy above all else drives this house. Unlike many of its neighbour’s it was important that its outside “skin” could close down through the use of its many operable screens. At night, while the exterior skin is closed, the core of the home is illuminated – a glowing light hinting to an activated use inside.
© Scott Burrows Photography
斯科特·布伦斯摄影
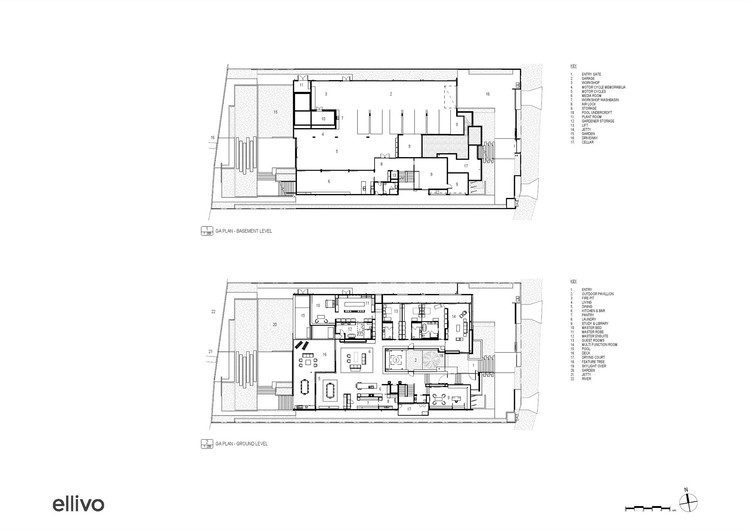
Floor Plan
© Scott Burrows Photography
斯科特·布伦斯摄影
这些材料被限制了,但却以一种有趣的方式使用。石头提供了一种通过内部和外部空间使用的通用语言。房间被木料和锌所捕捉,它们的边缘和黑色的木材松软提供了一种温暖和熟悉的感觉来对比深色的锌薄膜。
The materials are restrained but used in a playful manner. Stone provides a common language that is spoken through the internal and external spaces. Rooms are captured by timber and zinc that defines their edges and Blackbutt timber soffits provide a sense of warmth and familiarity to contrast the dark zinc sheeting.
© Scott Burrows Photography
斯科特·布伦斯摄影
这个房子是故意大的,但也故意简单的在它的建设。以最小的转移,一个后张地板允许大悬臂和平底露。房子本身是由砖块和传统木材桁架屋顶建造的,这些屋顶虽然覆盖了大量的脚印,但为了便于快速建造,人们故意简单地将其连接起来。
This home was deliberately large, but also deliberately simple in its construction. With minimal transfers a post-tensioned floor allowed for large cantilevers and flat soffits. The house itself was built from blockwork and conventional timber trussed roofs that although cover a large footprint were deliberately simply articulated to allow for quick construction.
© Scott Burrows Photography
斯科特·布伦斯摄影
这个项目最大的优势是项目团队。该项目的成功归功于我们与客户之间和谐的工作关系,以及我们的热情和辛勤工作的建设者,他们是我们的客户的长期朋友。
The greatest strength of this project was the project team. The success of the project is owed to the harmonious working relationship between ourselves and the client, as well as our passionate and hard-working builder who were long-time friends of our client.
Architects Ellivo Architects
Location Brisbane, Australia
Category Houses
Area 2115.0 m2
Project Year 2017
Photographs Scott Burrows Photography
Manufacturers Loading...
客服
消息
收藏
下载
最近














