查看完整案例


收藏

下载
苹果iPhone发布的安装
Milan 2008
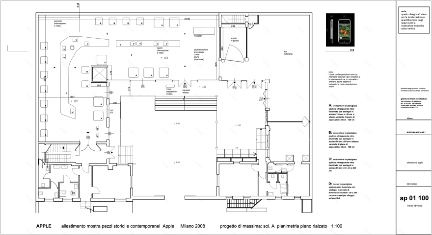
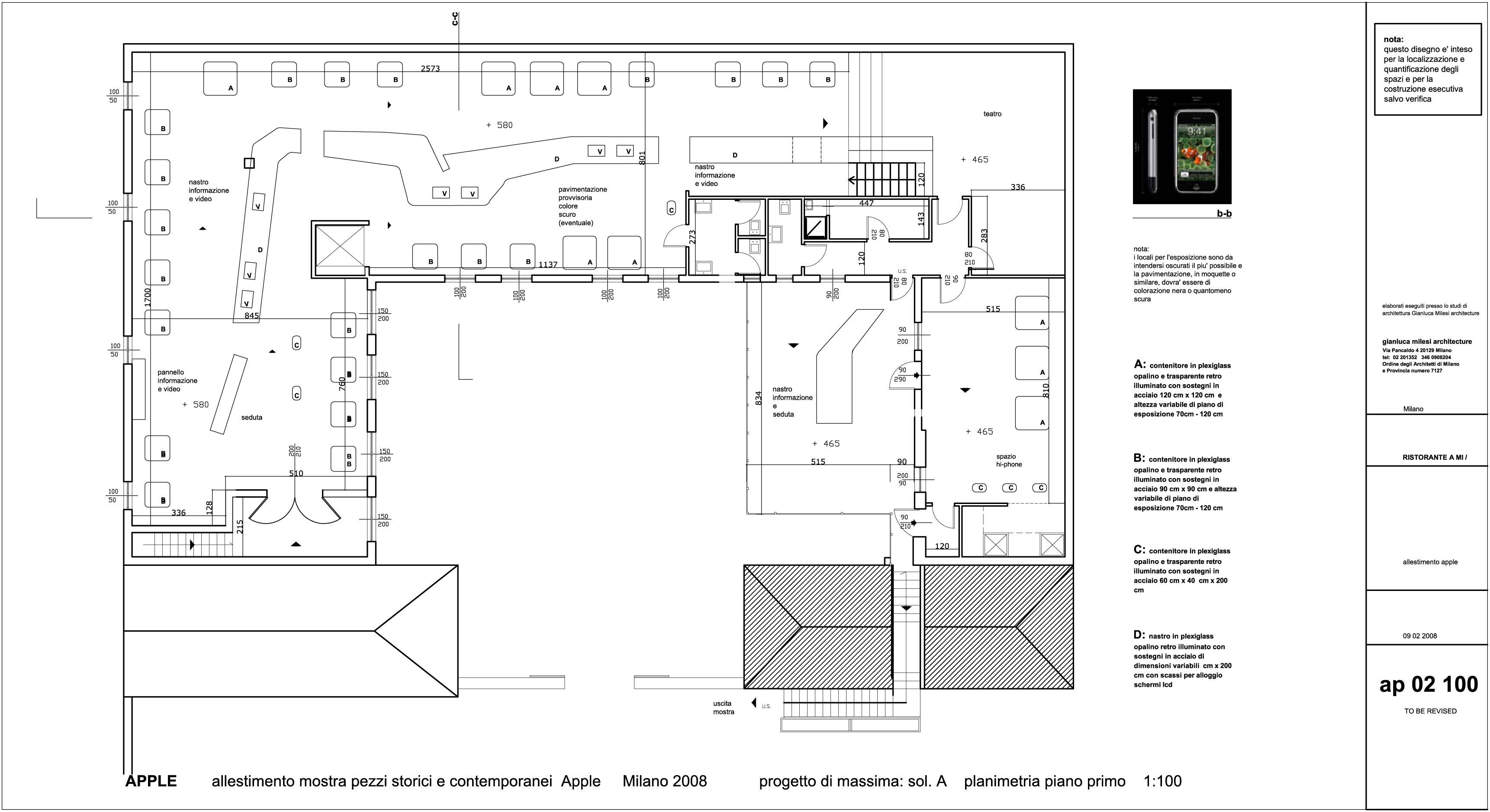
在米兰安装Apple iPhone的提议被认为是苹果和Macintosh自诞生以来商业化的历史产品的展览。
展览的最后部分是专门献给iPhone的。
为了向参观者提供信息,根据举办活动的画廊的形状,并在某一时间展示产品,设想了一个带状的卷;除了丝带60盒,还陈列了收藏的历史作品。
丝带形状的音量带有图形和等离子屏幕,显示信息和广告,并从内部照明。
盒子的形状提醒了上一代苹果产品的设计,仍然以与项目理念一致的方式来解释它。
丝带和盒子都是用白色有机玻璃建造的,除了用钢建造的垂直支撑物外。
因为丝带和盒子都是从里面点燃的,画廊的墙壁都是黑色的,所以只有信息和产品是可见的。
这个装置应该在2008年夏天建造。客户是米兰的Satchi广告公司。
安装费用约为100000欧元。
放映:
米拉诺
Gianluca Milesi,Alessia Longoni,Mirko Menozzi,ELISA Sandri,Michela Schirinzi,Kazko Yamada
客户机程序:
Consolo Produzioni,Milano,Satchi,Milano
建造日期:
June 2008
建造费用:
100.000 Euros
Firm gianluca milesi architecture
Type Commercial › Exhibition Center Retail Showroom Cultural › Gallery
STATUS Concept
SIZE 1000 sqft - 3000 sqft
keywords:architecture, architecture news, interiors, interior design, portfolio, spec, brands, marketplace, products Installation for Apple iphone launch Milan 2008
关键词:建筑,建筑新闻,室内设计,组合,规格,品牌,市场,产品安装苹果iPhone推出米兰2008
客服
消息
收藏
下载
最近



















