查看完整案例


收藏

下载
戈斯塔美术展馆
Serlachius博物馆Gosta分馆,Mantta,芬兰
詹卢卡·迈尔斯建筑
Gianluca Milesi,山田道子,Edi Sluga
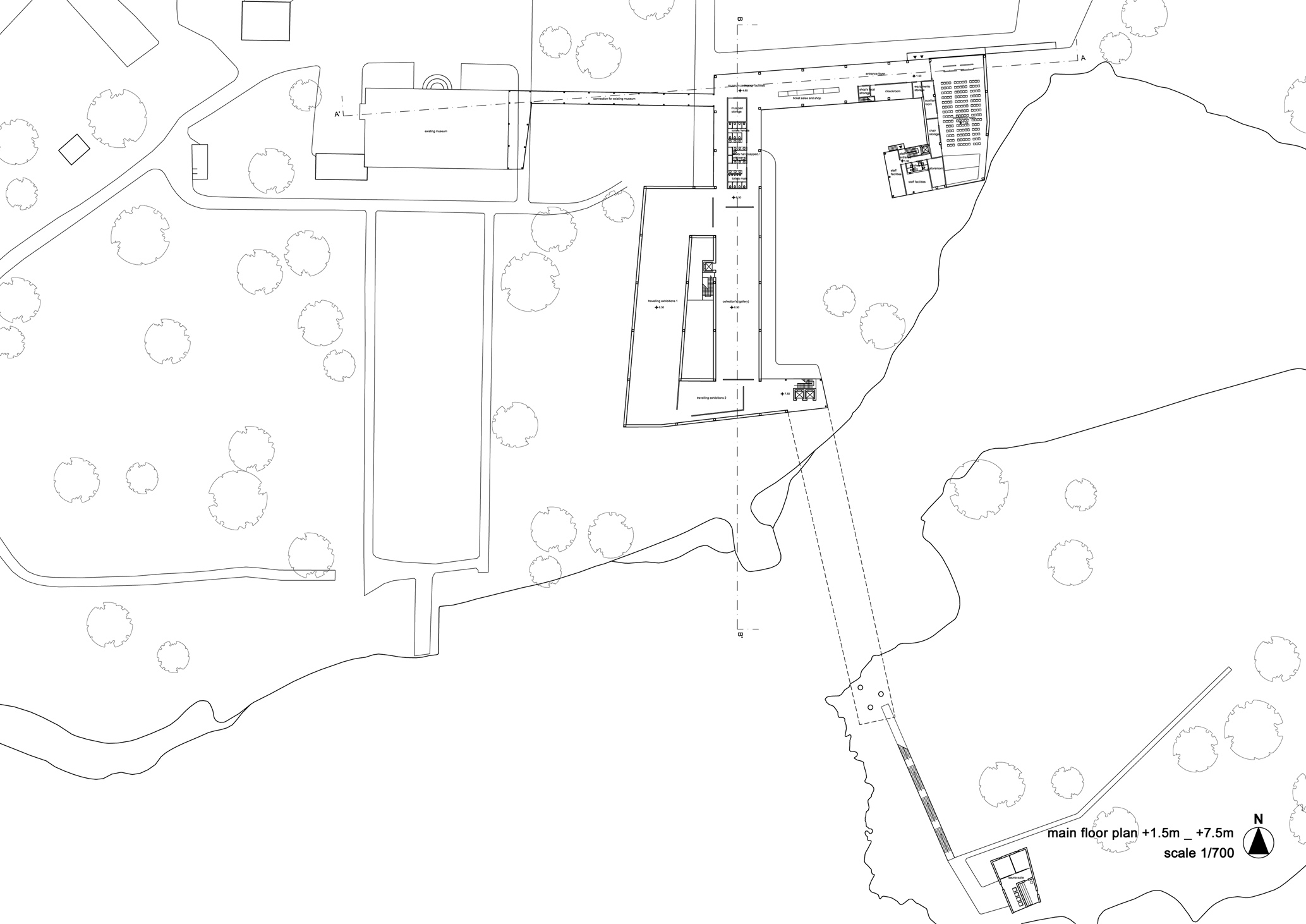
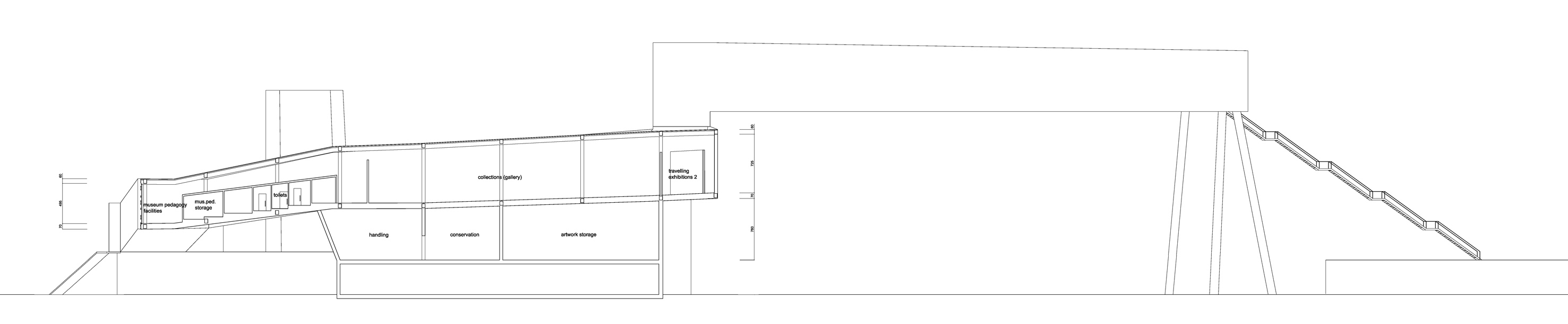
古斯塔博物馆被放置在一个非常特殊的位置,融合在一个非常迷人的自然环境中。从现有博物馆建筑和未来扩建的特点出发,我们考虑设计一座既尊重自然又能融入特定环境的建筑。我们在大楼里把艺术作品和参观者联系在一起,把全景和大自然的美丽联系在一起。按照这一理念,戈斯塔博物馆的延伸被描述成一个连续的空间,游客们可以在其中穿行,观看艺术,娱乐自己,与环境保持联系。我们建议的延伸部分位于现有博物馆的东侧,并沿着不同的角度和方向展开,延伸到它的南端、岛的南端和前面。不同的空间总是以一条简单的、顺序的、分段的路径连接在一起,通过不同的层次,从建筑内部穿透自然。
我们为这个项目选择的语言是一种当代的建筑语言,尽管它简单而线性,但无论如何,我们都试图把空间想象成道路思想的自然发展,我们认为这种连续性和流动性对于博物馆和公共空间的运作非常重要。这些空间以一种非常直接和简单的方式连接起来,是引导游客的建筑物本身的形状。我们使用的材料是钢的结构,玻璃的外壳或绝缘的不透明面板的外墙和木材的小腿包裹整个建筑物,包括屋顶。我们希望尽可能多地使用本地材料,甚至传统材料,这符合现代功能建筑的概念。
Firm gianluca milesi architecture
Type Cultural › Cultural Center Gallery Museum
STATUS Concept
SIZE 25,000 sqft - 100,000 sqft
keywords:architecture, architecture news, interiors, interior design, portfolio, spec, brands, marketplace, products Gosta Museum of Fine art extension Serlachius Museum Gosta Extension, Mantta, Finland 2011
关键词:建筑,建筑新闻,室内设计,组合,规格,品牌,市场,产品Gosta博物馆艺术扩展Serlachius博物馆Gosta扩展,曼塔,芬兰2011年
客服
消息
收藏
下载
最近






















