查看完整案例


收藏

下载
© Alessandro Cerutti
c.Alessandro Cerutti
架构师提供的文本描述。连接这两座现有建筑的大胆延伸形式,已经从现有的屋顶形式中抽象出来,并尊敬地承认了遗产住宅和街景。树木过滤的阳光使建筑物成为景观的一部分。
Text description provided by the architects. The bold form of the extension linking the two existing buildings, has been abstracted from the existing roof forms and respectfully acknowledges the heritage dwelling and streetscape. The play of sunlight filtered by the trees embraces the building as part of the landscape.
© Alessandro Cerutti
c.Alessandro Cerutti
玻璃屋顶就像树枝上的一片叶子一样漂浮着,把内部和外部景观连接起来,捕捉到树木和天空的景色。住宅将随着景观的变化而不断变化。
The glazed roof floats as if it were a leaf on a tree branch and connects the interior to the external landscape, capturing views of the trees and sky. The dwelling will continually change with the landscape.
© Alessandro Cerutti
c.Alessandro Cerutti
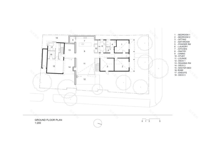
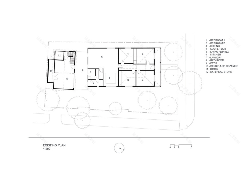
Site Floor Plan
地盘平面图
© Alessandro Cerutti
c.Alessandro Cerutti
屋顶被用作一个可食用的花园,为空间增添了深刻的内在灵魂,扩大了对郊区住宅的功能和回馈的理解。新旧之间有一种和谐的温暖。感觉这座建筑似乎是随着时间的推移而发展起来的。
The roof is utilized as an edible garden adding a deep intrinsic soul to the space, expanding the understanding of how a suburban dwelling can function and what it can give back. There is a harmonious warmth between the old and the new. It feels as though the building has evolved over time.
© Alessandro Cerutti
c.Alessandro Cerutti
Architects Damian Rogers Architecture
Location Melbourne, Australia
Category Houses
Area 250.0 m2
Project Year 2015
Photographs Alessandro Cerutti
Manufacturers Loading...
客服
消息
收藏
下载
最近






















