查看完整案例


收藏

下载
© Peter Bennetts
(Peter Bennetts)
架构师提供的文本描述。该项目的结果体现在试图解决复杂的简要说明的相互冲突的属性:娱乐的愿望和撤退的需要,为了开放和封闭,光明和黑暗,没有噪音的声音。
Text description provided by the architects. The outcome of this project manifests from an attempt to resolve the conflicting attributes of a complex brief: a desire to entertain and a need to retreat, for openness and enclosure, light and dark, sound without noise.
© Peter Bennetts
(Peter Bennetts)
一小块建筑怎么能解决一个人的神经质状况与高度活跃的社会环境并列的问题呢?“花园亭”的成功,正是其中一位客户长期睡眠障碍所建立的具有挑战性和针对性的简报。
How can a small piece of architecture address an individual’s personal neurotic condition juxtaposed with a highly activated and social environment? It was this challenging and specific brief established by the chronic sleeping disorder suffered by one of the clients, that underpinned the success of the ‘Garden Pavilion’.
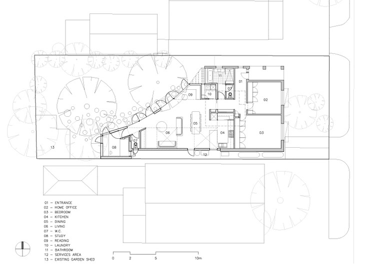
Floor Plan
设计的探索性方法是以深入的合作话语为基础的,它不仅要理解设计的条件本身,而且要了解它的所有卷须和结果。
The explorative method of design was heavily anchored through in-depth collaborative discourse, to understand not only the condition itself but all the tendrils and consequences of it.
© Peter Bennetts
(Peter Bennetts)
弯曲的脚印满足了隔离的需要,同时又不失去连接性,并起到折射声音和控制热量增长的作用。这一规划战略提供了一个休息和避难的地方,同时与主要的居住空间共享已建花园的景观。
A curved footprint met the need for isolation without losing connectivity and served to refract sound and control heat gain. This planning strategy provides a place of respite and refuge while sharing a vista of the established garden with the main living space.
© Peter Bennetts
(Peter Bennetts)
锥形空间形成了整个项目的锚。设计来控制它的环境,主要是光和声音。该空间的穿孔声天花板面板提供声音清晰和安静,而重绝缘墙壁和自定义密封双门,形成气隙,加强声学条件。(鼓掌)
The tapered space formed an anchor for the entire project. Designed to control its environment, primarily light and sound. The space’s perforated acoustic ceiling panels provide sound clarity and quietening, while heavily insulated walls and double doors with custom seals, form airgaps, strengthening the acoustic condition.
烧焦的木质百叶窗包围着圣所。寿司禁令,烧焦的过程,为客户创造了一种不精致的触觉体验,同时创造了长期的自然保护。满足客户的需要一个复杂的反应与一个简单的/低技术的过程,角落百叶窗,使用工业油布带和卡宾纳挂钩,可以手动密封。
Charred timber clad shutters enclose the sanctuary. Shou sugi ban, the process of charring, created an unrefined tactile experience for the client, while creating long-term natural protection. Satisfying the client’s need for a sophisticated response with a straightforward/low-tech process, the corner shutters, with the use of industrial tarp straps and carabiner hooks, can be manually sealed.
© Peter Bennetts
(Peter Bennetts)
在南面墙上,由一排裸露的砖块连接在一起,这座更大的房子遵循了一个更开放和适应性更强的计划。指导和扩展自己,向已建成的橄榄树和柠檬树花园。钢窗框形成一个弯曲的门槛,而屋顶弹出式允许北极光进入空间,微妙地描绘程序。(鼓掌)
Connected by a spine of exposed blockwork on the southern wall, the broader house follows a more open and adaptable plan. Directing and expanding itself towards the established garden of olive and lemon trees. Steel window frames form a curved threshold whilst roof pop-ups allow northern light to access the space, subtly delineating program.
© Peter Bennetts
(Peter Bennetts)
除了对客户提高空间意识作出反应的空间和大气条件外,该项目的环境系统对客户极为重要,并成为一项基本影响。我们采取了多项技术措施,以优化被动式供暖和冷却,最大限度地提高日光水平和自然通风,并尽量减少破坏性噪音水平。作为一个活项目,随着项目的成熟,技术和空间策略都将由客户和架构师进行监控。
In addition to the spatial and atmospheric conditions that respond to the client’s heightened spatial awareness, the project’s environmental systems were of utmost importance to the client and became a fundamental influence. A number of technical measures were employed for optimised passive heating and cooling, maximising daylight levels and natural ventilation, and minimising disruptive noise levels. Considered a live project, both technical and spatial strategies will be monitored by the client and architect as the project matures.
© Peter Bennetts
(Peter Bennetts)
Architects Bloxas
Location Brunswick, Australia
Category Houses Interiors
Architects in Charge Anthony Clarke, Joseph Gauci-Seddon
Area 148.0 m2
Project Year 2016
Photographs Peter Bennetts
Manufacturers Loading...
客服
消息
收藏
下载
最近




















