查看完整案例


收藏

下载
© Joonhwan Yoon
尹俊焕(Joonhwan Yoon)
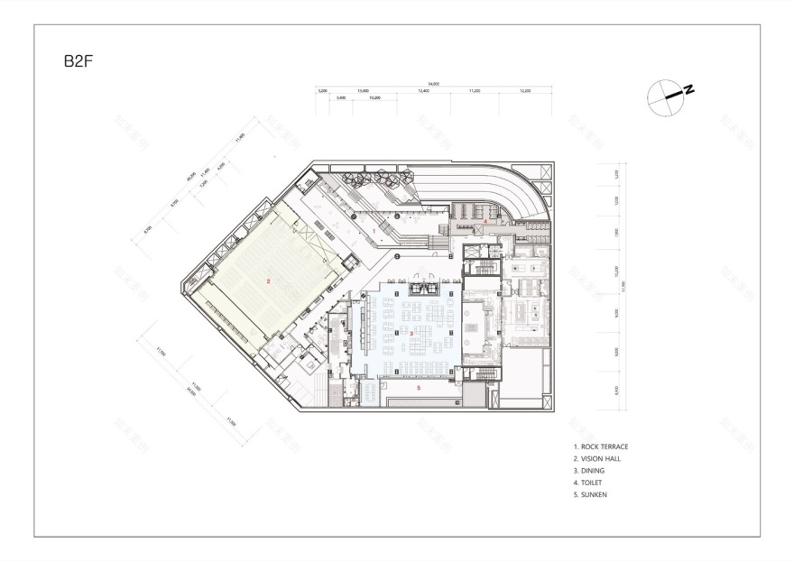
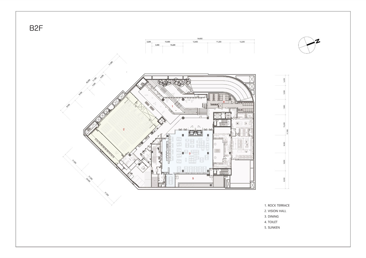
架构师提供的文本描述。位于首尔江南商业区中心的三星集团金融子公司的管理培训校园包括火灾和人寿保险、信用卡和经纪服务公司。设施包括各种可容纳的教室和分组室、400个座位的会议厅、250个座位的自助餐厅和社交俱乐部空间。
Text description provided by the architects. Located in the heart of Seoul’s Gangnam commercial district, the Management Training Campus for Samsung Group’s finance affiliates includes fire and life insurance, credit card and brokerage service companies. Facilities include various capacity classrooms and breakout rooms, 400 seat convention hall, 250 seat cafeteria dining, and social club spaces.
© Joonhwan Yoon
尹俊焕(Joonhwan Yoon)
室内设计理念是将所有不同的功能融入“一个连通的空间”。
Interior design concept was to bring all the diverse functions into “one connected space”.
© Joonhwan Yoon
尹俊焕(Joonhwan Yoon)
© Joonhwan Yoon
尹俊焕(Joonhwan Yoon)
这座大楼的七层内部空间通过空隙、宏伟的楼梯和一个开放的玻璃电梯无缝连接起来。开放的电梯核心作为一个重要的垂直空隙,一个人可以走一趟整个大楼。这个电梯是设计理念的核心。
The building’s seven floors of interior spaces are seamlessly connected through voids, grand stairs, and an open glass elevator. The open elevator core acts as an important vertical void where one can take a journey through the entire building. This elevator is the centerpiece of the design concept.
© Joonhwan Yoon
尹俊焕(Joonhwan Yoon)
Interior design AI ARCHITECTS
Location Seocho-dong, Seocho-gu, Seoul, South Korea
Category Office Buildings
Interior Designers Gene Park, Sunki Sohn
Design Team Byunghwa Lee, Hyunjoo Song
Area 9240.0 m2
Project Year 2016
Manufacturers Loading...
客服
消息
收藏
下载
最近





















