查看完整案例


收藏

下载
© Tatiana Mestre
Tatiana Mestre
架构师提供的文本描述。建筑具有将我们放置在太空中的能力,并使一个地点的可居住性成为可能。在许多方面,它是人类与周围环境和自然环境充分互动的最有力的工具。
Text description provided by the architects. Architecture has the capacity of situating us in space, and making the inhabitability of a site possible. In many ways, it is the most powerful tool that humans have to fully interact with its surroundings and natural environment.
© Tatiana Mestre
Tatiana Mestre
在具有壮丽自然景观的地方,建筑对我们进行了缩放,并作为一个过渡,使人类能够-在一段距离-吸收周围的环境。只有通过建筑,我们才能占有一个网站,并把它生活起来。
In sites with imposing natural landscapes, architecture scales us and works as a transition so that humans can –at a distance- absorb its surroundings. It is only through architecture that we are able to appropriate a site and live it.
© Tatiana Mestre
Tatiana Mestre
© Tatiana Mestre
Tatiana Mestre
A屋的目的正是要使它的周围环境变得合适,并给它的居民一种“生活”湖的方式。“一个框架”的形状是利用其最大的潜力,使之成为可能。因此,这是非常重要的结构是存在于每一个空间的房子。此外,我们希望这个结构成为一个具有房屋功能的连贯元素。
The intention of House A is precisely to be able to appropriate its surroundings and give its inhabitants a way to “live” the lake. The “A frame” shape is used to its fullest potential to make this possible. Therefore, it was very important that the structure was present in every space of the house. Additionally, we wanted the structure to be a coherent element with the houses functionality.
© Tatiana Mestre
Tatiana Mestre
半湿润的气候和北面的景色使我们寻求其他方向的太阳方向。为了抵消这些条件,我们打开了侧面阳台-就像一个船甲板-允许我们在早晨和晚上接受太阳辐射。这也为我们提供了利用房子中最锐利的空间的优势,否则这些空间将无法被利用。
The sub-humid climate and the north facing views made us seek solar orientation in other directions. In order to counteract these conditions, we opened lateral balconies –like a boats deck- that permitted us to receive solar radiation in mornings and evenings. This also gave us the advantage to use the most acute spaces of the house that otherwise would have been unutilized.
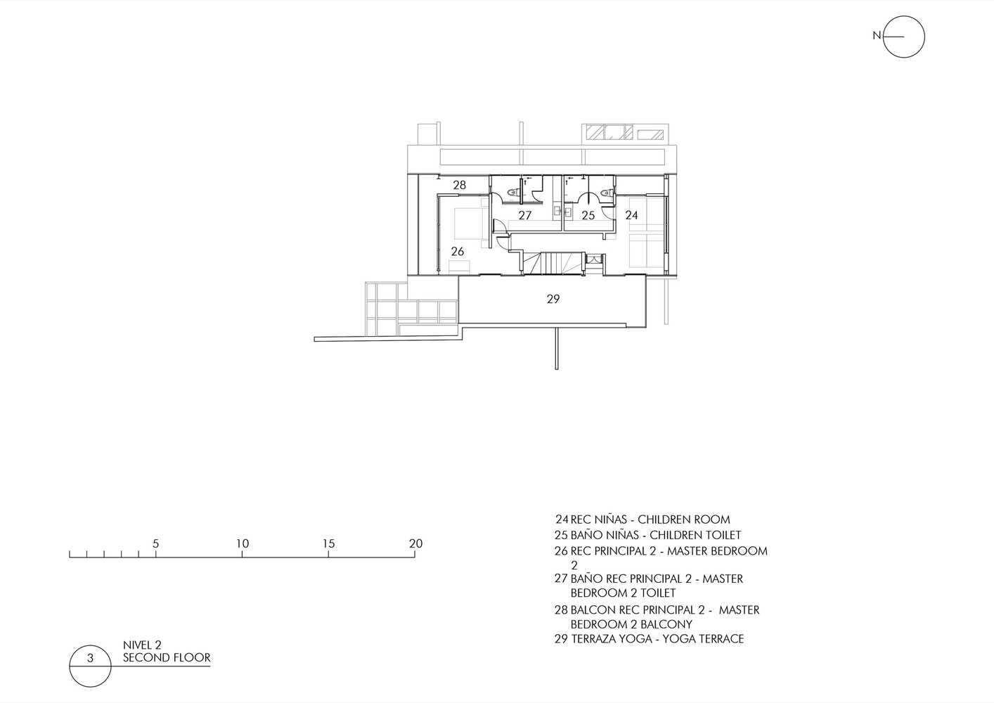
Ground Floor Plan
天然材料,如:石头,木材,钢,玻璃,以及尖锐和高空间的房子,使它有一种温暖和现代的感觉。
The mix of natural materials like: stone, wood, steel, and glass, together with the acute and high spaces of the house give it a warm and contemporary feeling.
房屋A是一个现代概念化建筑与当地的建筑技术和材料。这是一个非常有效的当代钢结构适应当地的施工技术。
House A is a building of modern conceptualization with local construction techniques and materials. It is a very efficient contemporary steel structure adapted to local construction techniques.
© Tatiana Mestre
Tatiana Mestre
Architects Método
Location Valle de Bravo, Mexico
Category Houses
Architect in Charge Bernardo García
Area 327.0 m2
Year Project 2015
Photography Tatiana Mestre
Manufacturers Loading...
客服
消息
收藏
下载
最近



























