查看完整案例


收藏

下载
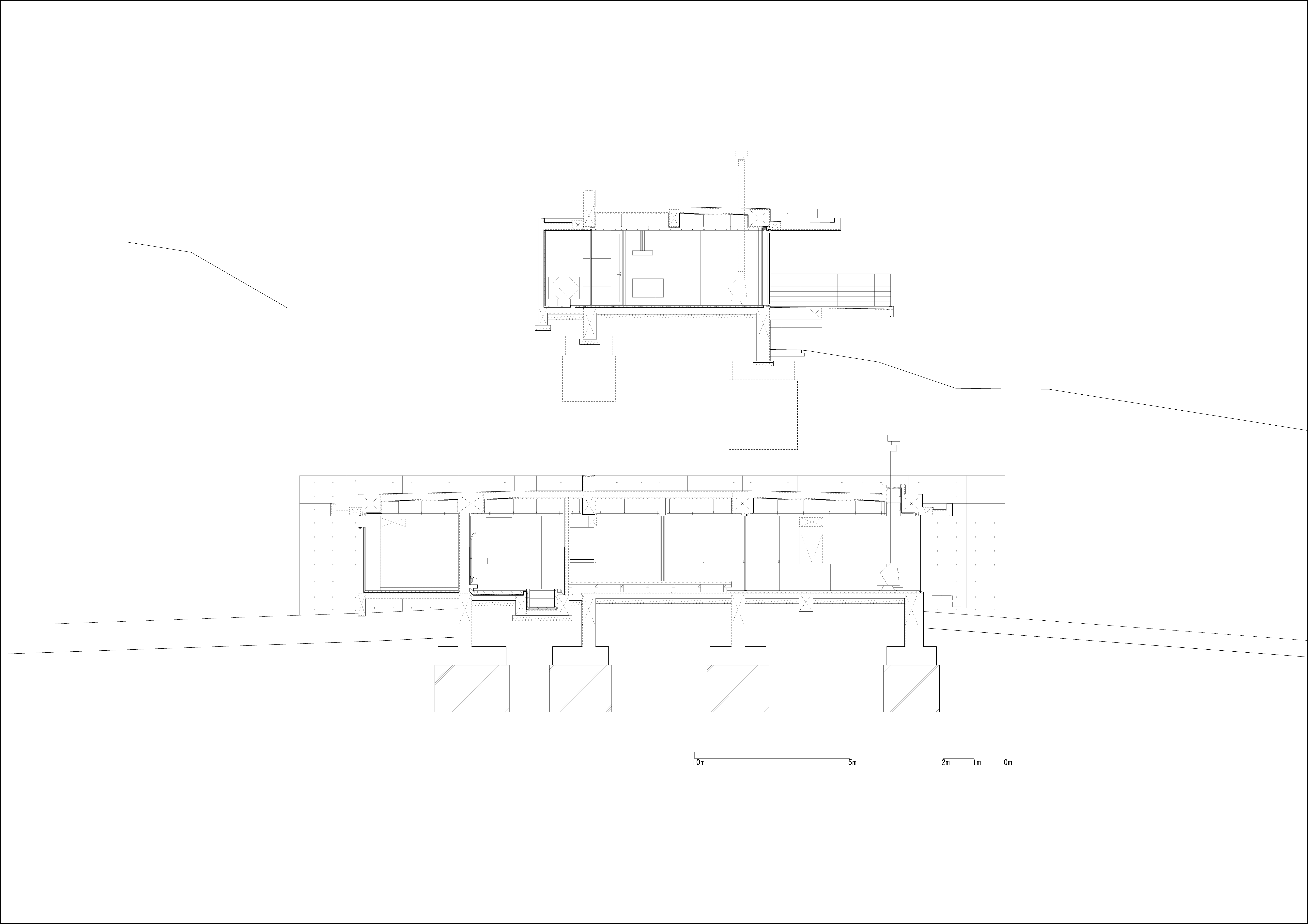
它是一座建在基里岛山区的别墅,是著名的避暑胜地,拥有丰富的天然温泉。金科湾和樱岛的壮观景色延伸到南坡之外。为了充分利用这一高超的景观,我们采用了一种结构,在该结构中,接近水平浮在斜坡上,以使视点高于接地特性。同时,为了保护自然地形,我拓宽了跳跃部分,减少了地面接触面。在树的垂直线上漂浮的水平线是设计的要点,完成了水平平面的屋顶和地板的白色,并使柱子等垂直构件释放出具有纹理的混凝土。这是一幅从混凝土墙上突出出来的底板和墙板贯穿斜坡的图像。从内部,使角柱小圆柱,使洞口在拐角处连续,水平切割景观,深击,阳台跳跃4米,突出景观,就像月光台。
Firm Atelier KAN
Type Residential › Private House
STATUS Built
YEAR 2013
SIZE 1000 sqft - 3000 sqft
keywordsarchitecture, architecture news, interiors, interior design, portfolio, spec, brands, marketplace, products Villa in Kirishima
关键词建筑,建筑新闻,室内设计,组合,规格,品牌,市场,产品别墅。
客服
消息
收藏
下载
最近

























