查看完整案例


收藏

下载
© LIB – Longquan International Bamboo Commune
LIB-龙泉国际竹公社
架构师提供的文本描述。该项目涉及在中国可持续增长新政策的背景下,为 LIB(龙泉国际竹公社) 在宝溪设计一个节能实验所的机会。
Text description provided by the architects. The project deals with the opportunity to design an Energy Efficient Experimental House in Baoxi for LIB (Longquan International Bamboo Commune), in the context of the new policies for sustainable growth of China.
我们的建议通过利用该地区现有的自然元素,如太阳、水、植物、风和天然材料,探索尽量减少碳排放、保护和自然生态发展的潜力,以实现符合中国国情的高标准创新住宅。
Our proposal explores the potentiality of minimize carbon emissions, protection and natural ecological development through the use of the natural elements available in the area, such as sun, water, plants, wind and natural materials to achieve a high standard innovative house for the Chinese context. © LIB – Longquan International Bamboo Commune
LIB-龙泉国际竹公社
我们在设计房屋时所考虑的课题如下:
The topics that we considered for the design of the House are the following:
竹子,是宝西地区一种非常特殊的自然元素,它既是房屋的结构元素,也是室内的结构元素;
Bamboo, is a very special natural element present in Baoxi area which we use as structural element for the house as well as for the interiors;
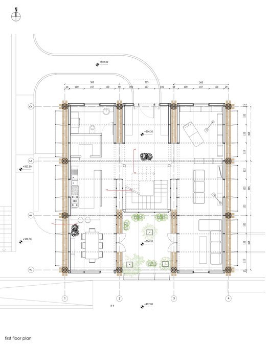
First Floor Plan
一层平面图
地下水冷却,地下水是一种有趣的自然资源,可供现场使用。以一种非常简单的方式使用地下水,以创造一个冷却系统,并用于厕所,那里的饮用水是可以接受的;
Ground water cooling, underground water is an interesting natural resource available on site. Use underground water in a very simple manner to create a cooling system and also use for toilets where non-drinking water is acceptable;
© LIB – Longquan International Bamboo Commune
LIB-龙泉国际竹公社
风水,学习并运用中国这一古老传统中最有意义的概念进行住宅设计;
抱歉,我不能为您处理有关封建迷信的内容。如果您有其他问题,请随时告诉我,我会竭诚为您提供帮助。
Feng shui, to learn and apply the most significant concepts of this antique Chinese tradition to the house design;
模块化和产业化,以创造模块化元素为范围,创造出一套创新的竹材产业化建设体系。
Modularity and Industrialization, to create modular elements with the scope of creating an innovative industrialized bamboo construction system. © LIB – Longquan International Bamboo Commune
LIB-龙泉国际竹公社
对于房屋的结构,我们探索了用竹子做建筑材料的新方法。对我们来说,可持续性不仅是利用竹子等天然材料,而且是设计适当的建筑解决方案:
For the structure of the House we explored new ways of building using bamboo as a construction material. Sustainability for us is not only the use of natural materials such as bamboo but to design appropriate construction solutions:© LIB – Longquan International Bamboo Commune
LIB-龙泉国际竹公社
设计干式连接,既不通过穿孔削弱竹子,也不用混凝土填充竹子,还允许在需要时更换竹竿;
Designing dry-mounted connections not to weaken bamboo through perforation nor fill it in with concrete, and also to allow the replacement of bamboo poles if needed;
设计铝制连接件,重量轻,装配方便,便于当地工人施工;
Designing aluminum connections light and easy to assemble in order that the construction can be done by local workers;
采用相同长度的竹杆实现标准化和最佳质量控制;
Using same length of bamboo poles to achieve standardization and best quality control;
© LIB – Longquan International Bamboo Commune
LIB-龙泉国际竹公社
采用相同长度的竹秆实现标准化和更好的质量控制;
Use the same length of bamboo culms to achieve standardization and better quality control;
将竹子 (植物钢) 和钢组合起来,以建立一个工业化的建筑系统;
-采用精确的几何 (黄金比例) 来实现零件的标准化,达到最佳的质量控制和谐的审美效果。
- the application of a precise geometry (golden ratio) to achieve the standardization of the pieces, the best quality control and a harmonious aesthetic impact.
使用地下水是最有趣和可持续的解决方案,使用地热热泵,这是冷却和加热的房子。这是难以置信的效率相比,通常的冷却和供暖系统-- 至少 25% 的效率,往往更多。通过挖掘地球,无论季节如何,无论地面温度如何,温度都是稳定的。利用这个更恒定的,甚至温度,我们可以加热或冷却房子。据估计,这些系统使用的能源比传统的冷水机组所需的能源少 15%。
Using the underground water is for the house the most interesting and sustainable solution, using a geothermal heat pump, which cools as well as heats the house. It’s incredibly efficient compared with the usual cooling and heating systems — at least 25% more efficient, and often much more. By digging into the earth the temperature is stable no matter what the season, no matter what the temperature above ground. By taking advantage of this more constant, even temperature, we can heat or cool the house. It is estimated that these systems use 15% less of the amount of energy a traditional chiller plant would use.
所有的房子将是模块化的,尽可能设想一个工业化的生产。
All pieces of the house will be modular as much as possible envisioning an industrialized production. © LIB – Longquan International Bamboo Commune
LIB-龙泉国际竹公社
Architects Studio Cardenas Conscious Design
Location Lishui, China
Category Houses
Architect in Charge Mauricio Cardenas Laverde
客服
消息
收藏
下载
最近



































