查看完整案例


收藏

下载
© Tim Cornbill
(C)蒂姆·康比尔(Tim CornBill)
架构师提供的文本描述。联合建筑师的可行性研究得出的结论是,新建一座而不是翻新现有的图书馆最能满足大学的需要。20世纪50年代周边条件差的图书馆的拆除,将为校园创造一颗“绿色之心”,改善场地流通和历史建筑的设置。新图书馆有一个柱顶正面的开放空间,在大学的自然中心。
Text description provided by the architects. Associated Architects’ feasibility study concluded that a new building rather than refurbishment of the existing library would best meet the University’s needs. The demolition of the adjacent deficient 1950s library will create a ‘green heart’ to the campus, improving both site circulation and the setting of the historic buildings. The new Library has a colonnaded frontage to this open space, at the natural centre of the University.
© Tim Cornbill
(C)蒂姆·康比尔(Tim CornBill)
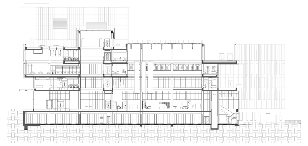
一个简短的开发重点是用户,而不是收集,具有直观,自然循环。该计划被一条南北走向的中央街道一分为二。这就产生了内部规划,在大楼周边创造了安静的学习空间。建筑面积1.7万平方米,六层楼高,楼内有一系列的灯笼。倾斜的西侧与新的环形公路成了一条直线,铁路和运河也在这条公路的后面。这一安排利用了各种观点,最大限度地扩大了从铁路上看到的该方案的存在。
A brief was developed focusing on the user, rather than the collection, with intuitive, natural circulation. The plan is bisected by a central street running north-south. This generates the internal planning, creating quiet study spaces around the building’s perimeter. 17,000sq.m of floor space is arranged over six levels with a series of lightwells running through the building. The angled west side is aligned to the new ring road, with railway and canal beyond. This arrangement exploits views and maximises the scheme’s presence seen from the railway.
© Tim Cornbill
(C)蒂姆·康比尔(Tim CornBill)
新图书馆有一种当代的审美,高水平的玻璃,最大限度的意见,以实现最佳的白天照明,以安静的周边研究区域。阳极铝鳍和自动百叶窗提供太阳遮阳,增加了一层细节的海拔,陶瓷花岗岩包层的核心。位于大学中心旁边的东南角的重要性被该塔所强调,该塔面向具有里程碑意义的大学钟楼。
The new Library has a contemporary aesthetic, with a high level of glazing maximising views in and out to achieve optimum day-lighting to quiet perimeter study areas. Anodised aluminium fins and automatic blinds provide solar shading, adding a layer of detail to the elevations, with ceramic granite cladding to the cores. The importance of the south-east corner beside the University Centre is emphasised by the tower, orientated toward the landmark University clock tower.
Exploded Axonometric
爆炸轴测
位于一楼有一家咖啡厅和一个开放的中庭空间,可用于展览/活动,展示大学的研究成果。开放的访问设施占据了底层中庭的一半,另一半则是充满IT办公桌的地方,以形成一个充满活力的流通空间。储备仓库位于坡地的地下,以保持整体高度下降,并确保底层活动。图书馆有大约62公里的书架,包括12公里的开放书架,为大学拥有的数千本书籍和出版物提供了一个新的家园。
Located on the Ground Floor are a café and an open plan atrium space which can be utilised for exhibition/events to showcase research at the University. Open access facilities take up half the ground floor atrium, the other half is populated with IT desks to make a vibrant circulation space. The reserve store is placed below ground on the sloping site, to keep overall height down and ensure ground floor activity. With some 62 kilometres of shelving, including 12km of open access bookshelves, the library provides a new home for the thousands of books and publications owned by the University.
© Tim Cornbill
(C)蒂姆·康比尔(Tim CornBill)
建筑物的外观必须符合各种标准。在利用自然光时需要达到平衡,但要避免太阳增益引起的过热。采用主动遮阳技术控制建筑物内部温度,使建筑物在一天中的不同时间发生变化。功能阳极金垂直鳍添加了另一层外部太阳阴影,并创造了一个节奏的外观。与现有图书馆相比,需要较高的绝缘值才能达到减少能源使用的目标。该外观使用标准舒科FW 60系统与一个综合舒科CTB辊盲和定制挤压翅片。
The façade of the building was required to meet a variety of criteria. A balance needed to be achieved to utilise natural light but avoid overheating from solar gain. Active solar shading was integrated to control internal temperature, which creates a dynamic face to the building that changes at different times of day. Feature anodised gold vertical fins add another layer of external solar shading and create a rhythm to the façade. High insulative values were required to meet the target reduction in energy use in comparison to the existing library. The façade utilises a standard Schuco FW60 system with an integrated Schuco CTB roller blind and bespoke extruded fins.
© Tim Cornbill
(C)蒂姆·康比尔(Tim CornBill)
混凝土是为结构框架指定的,因此这可以作为暴露的热质量,以帮助提高能源效率。大面积的soffit和所有的柱都要暴露,因此生产了一个详细的规格,以确保在限制气孔数量和表面变化的同时,获得最高质量的光洁度。在现场,一个明确的基姆清洗是适用于整个建筑的混凝土,以帮助提供一个一致的完成。需要早期的设计协调,以确定照明位置,因为这些都是浇铸到板坯上,从上面上升的进入地板。
Concrete was specified for the structural frame so this could act as exposed thermal mass to help with energy efficiency. Large areas of soffit and all columns were to be exposed so a detailed specification was produced to ensure that the highest quality finish was achieved alongside restrictions of number of blowholes and surface variations. On site, a clear Kiem wash was applied to the concrete throughout the building to help provide a consistent finish. Early design coordination was required to confirm lighting positions as these were cast into the slab, to be fed from the raised access floor above.
声学是图书馆设计中最重要的考虑因素之一。两个大的心房和周边研究空间需要治疗,以确保符合声学标准。大楼中心的金色楼梯是一个巨大的隔音板,绝缘金属穿孔板围绕着它的结构,旁边有绝缘板,在中庭板边缘的周长处排列。悬挂式金属隔音板位于周边研究空间的上方,以确保声音不会进入中庭。其他学习空间的功能各不相同,从个人学习空间、集体学习空间和静默学习空间等方面来看,这些学习空间在当地采用悬挂挡板和声学天花板相结合的方式进行处理,以帮助为学生提供舒适的工作空间。
Acoustics are one of the most crucial factors to consider when designing a library. Two large atria and perimeter study spaces required treatment to ensure the acoustic criteria was met. The feature gold staircase in the centre of the building acts as a large acoustic baffle, with insulated metal perforated panels wrapped around its structure, alongside insulated panels that line the perimeter of the slab edges in the atria. Suspended metal acoustic baffles are located above the perimeter study spaces to ensure sound doesn’t break out into the atria. Other study spaces vary in function from individual study, group workspaces and silent study spaces, so these are treated locally with a combination suspended baffles and acoustic ceilings, to help provide comfortable spaces for students to work.
© Tim Cornbill
(C)蒂姆·康比尔(Tim CornBill)
Architects Associated Architects
Location Birmingham B15 2TT, United Kingdom
Category Library
Project Director Warren Jukes
Area 17000.0 m2
Project Year 2016
Photographs Tim Cornbill
Manufacturers Loading...
客服
消息
收藏
下载
最近


































