查看完整案例


收藏

下载
© Tobias Hein
托拜厄斯·海因
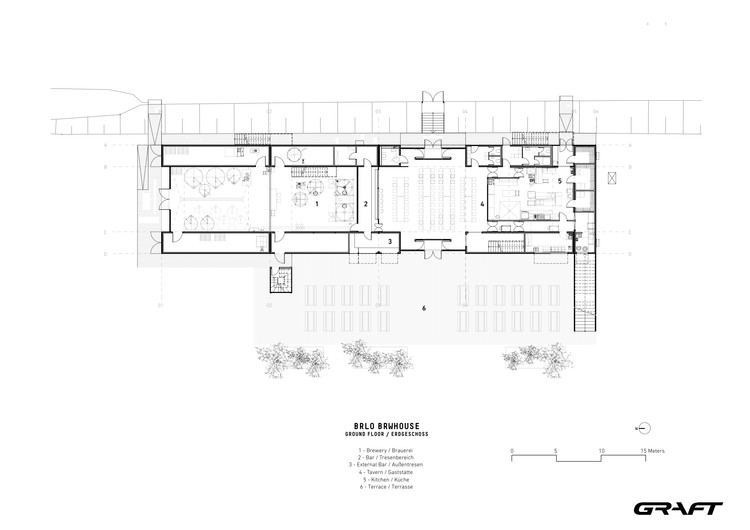
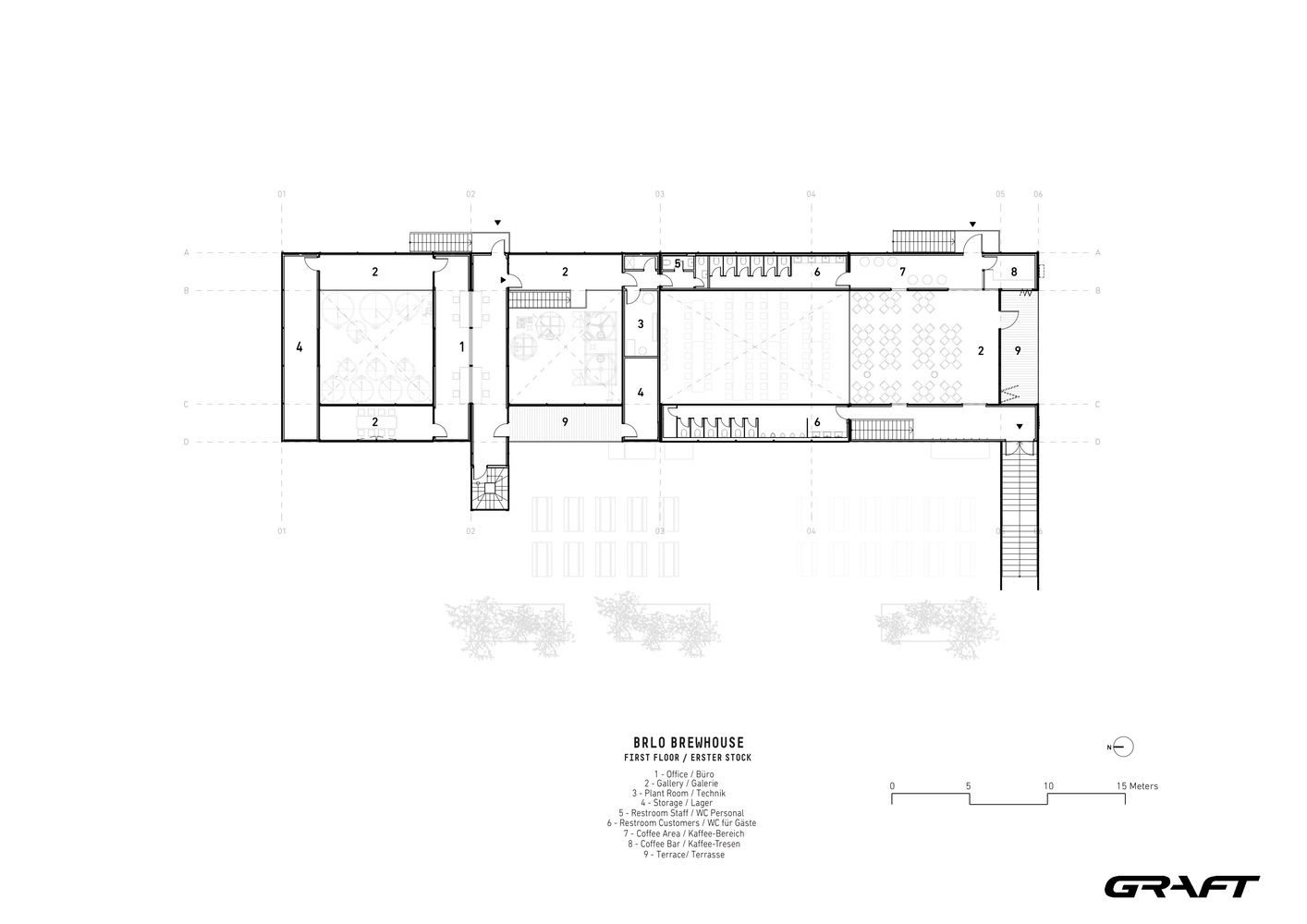
Ground Floor Plan
架构师提供的文本描述。在柏林,在格莱斯德雷克公园东西部之间的“乌尔班米特”遗址上,嫁接设计并规划了一个流动啤酒厂和啤酒花园。BRLO BRWHOUSE的建筑将餐厅和酒吧、啤酒花园和活动空间与工艺酿酒厂和管理空间结合在一起,并以其模块化的容器结构而闻名。
Text description provided by the architects. In Berlin, on the site of “Urbane Mitte” between the eastern and western parts of Gleisdreieck Park, GRAFT designed and planned a mobile brewery and beer garden. The building for BRLO BRWHOUSE combines a restaurant and bar, beer garden and events space with a craft brewery and administration spaces and is remarkable for its modular container architecture.
© Tobias Hein
托拜厄斯·海因
普莱斯特设计了一座由集装箱组成的独立建筑,类似于2009年在首尔和2012年在柏林启用的两座“昆士底排”集装箱建筑。预制容器会根据其功能进行单独修改,并被堆放成当地年轻的酿造公司BRLO的移动家基地。该建筑设计为临时使用,为期3-5年,如有必要,可以很容易地拆除和重建在另一个地点。
GRAFT designed a freestanding building made of shipping containers, similar to the two “Platoon Kunsthalle” container constructions opened in Seoul in 2009 and in Berlin in 2012. The pre- fabricated containers are altered individually according to their function and are stacked to form a mobile home base for the young local brewing company BRLO. The building is designed for temporary usage over a period of 3-5 years, and if necessary can easily be dismantled and reconstructed at another location.
© DONE STUDIO – Ulf Saupe
c Do Studio-Ulf Saupe
四个容器长,三个容器高,街区提供约600平方米的地面空间,足够的啤酒厂设备,以及为客人,活动和管理的空间。在西边,一个垂直放置的容器包含一个楼梯,作为进入办公空间的入口。西侧末端的第二个倾斜容器提供了通向画廊水平的外部通道。其无烟煤色彩突出了集装箱建筑的功利性。
Four containers long and three containers high, the block provides about 600 m2 of floor space, sufficient for the brewery equipment, as well as room for guests, events, and administration. To the west, a vertically placed container contains a staircase and functions as the entrance to the office spaces. A second, inclined container at the end of the west side provides outside access to a gallery level. The utilitarian character of the container architecture is emphasized by its anthracite colour.
© Tobias Hein
托拜厄斯·海因
© DONE STUDIO – Ulf Saupe
c Do Studio-Ulf Saupe
Architects Graft Architects
Location Schöneberger Str. 16, 10963 Berlin, Germany
Category Restaurants & Bars
Architect in Charge GRAFT Gesellschaft von Architekten
Area 600.0 m2
Project Year 2016
Photographs Tobias Hein, DONE STUDIO – Ulf Saupe
客服
消息
收藏
下载
最近






















