查看完整案例

收藏

下载
© Jaime Navarro
c.Jaime Navarro
© Jaime Navarro
c.Jaime Navarro
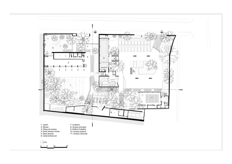
架构师提供的文本描述。古老的殖民社区Coyoacan由墨西哥一些比较著名的文化机构组成,新的国家爱国者遗产中心也被列入名单。该中心的主要概念围绕着将私人建筑群转变为公共空间的需要;因此,打破这些部分以组织在较小的低层建筑中的规划思想,最终能显示出一定的设计个性,并保存现存的树木和植被,这是有意义的,因此,该中心将在博物馆和车间、保存和办公大楼、礼堂和咖啡厅/图书馆结构四种不同的建筑中展出。一旦我们得到现存的树木和植物,我们就开始建立项目的分区和安排。在“分散”的概念中,我们决定围绕着开放空间把建筑连接起来并组织起来。因此,我们的目标是让游客浏览一些相互连接的花园,广场,小径,庭院等。这将最终展现并揭示出许多建筑元素和姿态。从整体的审美构成来看,有些建筑被认为是坚实而庞大的,与其他被认为是半透明或透明的建筑形成了一种刻意的对比。在这个意义上作出的决定主要是为了在节约能源、美学和人类活动之间找到适当的平衡。
Text description provided by the architects. The old colonial neighborhood of Coyoacan comprises some of the more notable cultural institutions of Mexico and the new national Center for Patrimonial Heritage is added to the list. The center´s main concept spins around the need to turn a private complex into a public space; thus, the programmatic idea of breaking the parts in order to organize them in smaller low-rise buildings that could eventually display certain design personality and preserve the existent trees and vegetation, made sense.Therefore the center will be displayed in four different buildings: the museum and workshops, the preservation and office building, the auditorium, and the café / library structure. Once we secured the existent trees and plants, we proceeded to establish the project zoning and arrangement. Within the concept of dispersion, we decided to hinge and organize buildings around the open spaces. Therefore, we aimed that visitors would navigate through a number of interlocked gardens, plazas, paths, patios, etc. that will eventually unfold and reveal a number of architectural elements and gestures. From the overall aesthetic composition, some buildings have been thought as solid and massive creating a deliberate contrast to others that are conceived as translucent or transparent. Decisions made in this sense respond mostly to dealing with finding the right balance between energy savings, aesthetics and human activity.
© Jaime Navarro
c.Jaime Navarro
Ground Floor
© Jaime Navarro
c.Jaime Navarro
建筑师们认为,虽然一些作品直接或间接地引用了埃米利奥·阿姆巴兹和弗朗西斯科·马查多的一些建筑理念,但从设计的角度来看,假定的影响来自大学城,这是40年代末和50年代初一系列引人注目的现代建筑的先驱。与CU有关的原则包括:严重的轴向成分,经常被使用坡道、檐篷或坡道所操纵;传统上使用来自山谷这一地区的黑色火山岩建造墙壁和争论,最后是使用简单的体积,承认传统建筑要素,如柱廊或长廊。与此相反,该项目的核心和更强大的想法是最好的描述博物馆的突出画廊的设计。通过把这卷书想象成一件艺术品,我们把它设计成一种形式,它成为建筑群的中心展品。它尤其可以在咖啡馆的露台上享用。画廊的二色性-皮肤将打破光谱的颜色取决于光,温度和强度(室外和室内)创造一个有机和不断变化,千变万化的效果,顺便提及墨西哥民间艺术的色彩条纹。作者们还在玻璃上添加了另一层,一种类似于扩散格子的大型图形图案,给人留下了纹身的印象。这种覆盖的系统扭曲了外部和内部的关系,也扭曲了光与空间之间的联系,将游客推向精神旅行的体验。
According to the architects, although some compositions are directly or indirectly referenced to some architectural ideas from Emilio Ambaz and Francisco Machado, from a design standpoint, the assumed influences come from University City, that spectacular array of pioneering modern architecture in the late 40’s and early 50’s. Among the principles that may be found in relationship to CU are a severe axial composition, that is often manipulated by the use of ramps, canopies or pergolas; the traditional use of black volcanic rock indigenous from this zone of the valley to build walls and contentions, and finally the use of simple volumes that acknowledge the relevance of classical elements of architecture such as the colonnade or the promenade. In counterpoint, the project’s central and stronger idea is best described by the design of the museum’s overhanging gallery. By imagining this volume as an art piece itself, we laid out it in a way it becomes the central exhibit of the complex. It can be particularly enjoyed from the café’s patio. The gallery’s dichroic-skin will break the spectrum of color depending on light temperature and intensity (outdoor and indoor) creating a organic and ever changing, kaleidoscopic effect, that incidentally references the chromatic stridence of Mexican folk Art. The authors have yet added another layer to the glass, a large-scale graphic pattern resembling a diffusing lattice that gives the impression of tattooing the building. The overlaid system distorts the relationship between the exterior and the interior, and also the connections between light and space, pushing the visitor towards the experience of a psychotropic trip.
© Jorge Rodríguez Almanza
c.Jorge Rodríguez Almanza
Architects Victor Marquez
Location Calle Salvador Novo 9, Santa Catarina, 04010 Ciudad de México, CDMX, Mexico
Category Preservation Site
Area 5705.0 m2
Photographs Jaime Navarro , Jorge Rodríguez Almanza
Manufacturers Loading...
客服
消息
收藏
下载
最近
























