查看完整案例


收藏

下载
© Elyse Kennedy
(爱丽斯·肯尼迪)
架构师提供的文本描述。客户是一位年轻的专业人士,他走近我们,想把她1950年在佩克姆的小房子扩建成一座更实用的厨房和餐厅,与后花园有更好的连接。现有的房子有特别低的天花板高度和狭窄的,尴尬的生活空间。客户觉得这所房子是用劣质的材料建造的,与维多利亚时代的邻居相比不太好。简短的是创造一个明亮和开放的生活空间,材料的质量和特点。
Text description provided by the architects. The client, a young professional, approached us to extend her small 1950’s infill terraced house in Peckham to create a more usable kitchen and dining area with a better connection to the rear garden. The existing house had particularly low ceiling heights and narrow, awkward living spaces. The client felt that the house had been built from poor quality materials which compared poorly with the Victorian neighbours. The brief was to create a bright and open living space with materials of quality and character.
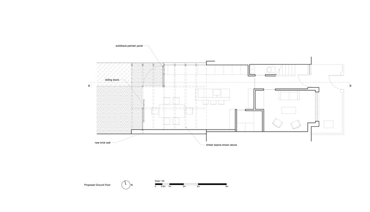
尼姆采取了一种雄心勃勃的方法来扩展和更新这座小而平凡的房子。Nimtim借鉴了20世纪50年代的建筑案例,以及日本传统和当代的国内建筑,提出了一种由前后两侧的一系列轻质木材门户构成的附加结构。木材结构定义了一系列的开口沿屋顶和后花园。这个格子穿过房子,延伸到花园里;模糊了内外之间的界限。
nimtim took an ambitious approach for extending and updating this small and unremarkable house. Taking inspiration from the Case Study Houses of the 1950s, as well as traditional and contemporary Japanese domestic architecture, nimtim proposed an addition formed of a series of lightweight timber portals running both front to back and side to side. The timber structure defines a series of openings along the roof and onto the rear garden. This grid extends through the house and out into the garden; blurring the threshold between inside and out.
© Elyse Kennedy
(爱丽斯·肯尼迪)
该设计参考了第二次世界大战中被摧毁之前位于该遗址上的维多利亚时代的原始财产;退一步,计划与原来的壁橱翼相呼应,同时允许花园延伸到生活空间。
The design references the original Victorian property that was situated on the site before being destroyed in the Second World War; stepping back in plan to echo the original closet wing, while allowing the garden to extend into the living space.
Ground Floor
内部物质性是关键;材料必须是高质量的,具有独特、诚实的音色-与现有住宅的直接对比。暴露的木材门式刚架是在道格拉斯杉木创造了温暖,粉红色的色调,地板是浇筑混凝土和一个暴露的墙,特别选定的长砖块沿居住空间的边缘延伸到花园。一个克制,简单的调色板与半透明的白色胶合板厨房与木制和大理石工装。每一种材料都悄悄地独立地、集体地肯定自己。
Internally materiality was key; materials had to be high quality, with a distinctive, honest timbre - in direct contrast to those of the existing dwelling. The exposed timber portal frames are in Douglas Fir that creates a warm, pink hue, the floor is poured concrete and an exposed wall of specially selected long bricks runs along one edge of the living space extending out into the garden. A restrained, simple palette is maintained with the translucent white plywood kitchen with wooden and marble worktops. Every material quietly affirms itself independently and collectively.
© Elyse Kennedy
(爱丽斯·肯尼迪)
尼姆建筑师和他们的姐妹公司尼姆风景画从一开始就合作,创造了一个房子和花园完全集成的设计。一个简单而大胆的花园计划提出了一个大面积的铺砌的优雅和低成本的摊铺机和一个大的种植面积,这反映了房屋的几何形状,创造了一个轴线延伸到房子的阶梯平面。
nimtim architects and their sister company nimtim landscapes worked together from the beginning to create a design where the house and garden were completely integrated. A simple and bold garden plan proposed a large paved area of elegant and low cost pavers with a large planted area that mirrored the geometry of the house creating an axis that extends into the stepped plan of the house.
© Elyse Kennedy
(爱丽斯·肯尼迪)
床上种着带刺的小檗和巨大的球状的希布斯。黄色的雅罗花和土耳其的鼠尾草花给床上的颜色、兴趣和高度。一棵幼小的梨树在花园后面提供了一个焦点,一个带有攀爬金银花的格子,隐藏了一个小棚子,提供了垂直的兴趣。
The beds were planted with prickly Berberis and large bulbous Hebes. Yellow Yarrow and Turkish Sage flowers give colour interest and height to the bed. A young pear tree provides a focal point at the back of the garden and a trellis with climbing honeysuckle hides a small shed and provides vertical interest.
© Elyse Kennedy
(爱丽斯·肯尼迪)
Architects nimtim architects
Location Greater London, United Kingdom
Category Houses
Architect in Charge Tim O’Callaghan
Area 50.0 m2
Project Year 2017
Photographs Elyse Kennedy
Manufacturers Loading...
客服
消息
收藏
下载
最近
















































