查看完整案例


收藏

下载
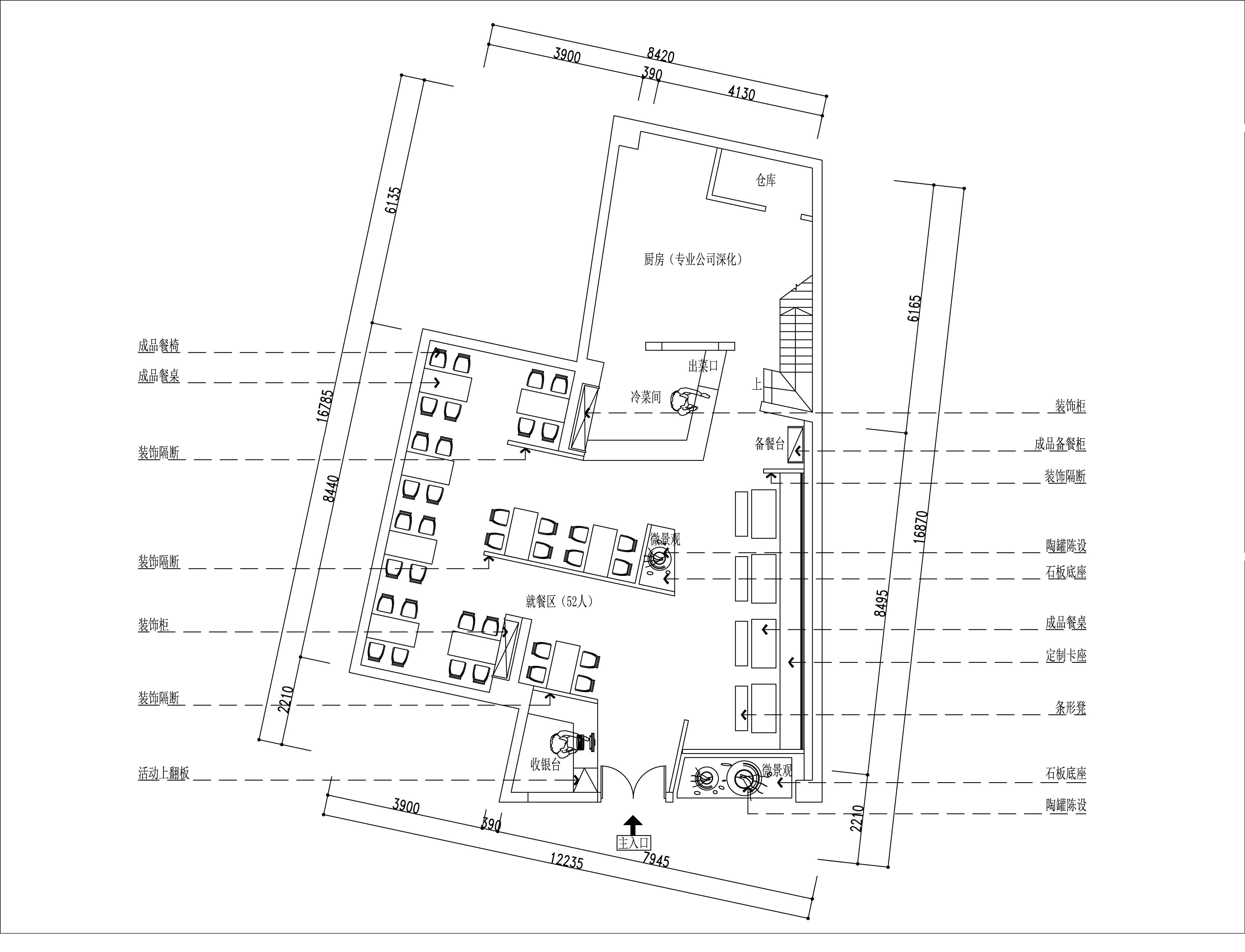
无锡哲珥设计 银丝面(伊江南) 江南名点小吃设计单位:江苏无锡哲珥设计设计师 无锡哲珥 林慕义 本案位于常州市南大街横兴弄西水关桥南面室内面积:128平方 主要材料:白色艺术地坪、黑色真石漆、木纹铝板、透光纱布、铁艺、乳胶漆、石膏板 银丝面,精致如丝(斯)。生活在这座城市,很多人的一天,是从这热腾腾的一碗银丝面条中开始的,老常州人对银丝面馆也有着特殊的记忆。 大多数人对银丝面馆的印象,就是四个字“百年老店”,古朴的装修,传统的味道,热闹的氛围,也同样满足了一部分人快餐式的餐饮习惯。 去年年底,人气一直很旺的常州银丝面馆,在南大街老店区域新开了一家本帮面馆——伊江南银丝面馆。 伊江南面馆,源自1912年的味香斋面馆,不同以往传统银丝面馆速食方式,还原食物本来的味道,专心只为一碗银丝细面。 初入店内,水墨晕染花纹的不规则大屏障,黑木拼合而成的江南屋檐造型,“南朝四百八十寺,多少楼台烟雨中。”仿佛来到烟雨中的江南小镇。 入眼所及之处,到处写满苍劲有力的书法大字,除了老式学堂四方桌和太师椅,就是满墙排列整齐的诗经古书和笔墨纸研,连吃面用得餐具都是特别定制的青花瓷碗碟。“在更好的环境里面静下心来好好品尝这一碗面,江南面给人和风细雨的感觉,一口汤一口面,慢慢去吃慢慢体会,就能体会到它的内在。”
客服
消息
收藏
下载
最近






















