查看完整案例


收藏

下载
© W Workspace
C.W工作空间
架构师提供的文本描述。梅赛德斯-奔驰泰国新总部办公室是由他们的创始人之一戈特利布·戴姆勒(Gottlieb Daimler)设计的。他寄了一张明信片给他的妻子(上面有一颗三角的星星标记着他房子的位置),写着有一天这颗星星会闪耀在他自己的工厂上,象征着繁荣。我们捕捉到了恒星的概念,创造了新的工作空间中的运动和联系。会议室、咖啡厅、公用室等功能室的规划贯穿整个楼层,这增加了工作人员见面的机会,并使他们更容易在一天中进行协作。它的两层办公室之间的连接楼梯也被设计成市政厅的看台,一百名工作人员可以聚集在这里参加公司的活动。在这个空间的上方,我们用进口的闪亮水晶吊灯来象征我们的星光,给酒店带来了绚丽的灯光。沿着走廊,我们故意放置不同大小和不同方向的照明,以模仿天空中的星星。
Text description provided by the architects. The new headquarters office of Mercedes-Benz Thailand is designed by inspiration from one of their founders, Mr. Gottlieb Daimler. He sent a postcard to his wife (with a three-pointed star marking the location of his house) writing that this star would one day shine over his own factory to symbolize prosperity. We captured the concept of stars to create the movement and the connection in the new working space. Function rooms such as meeting rooms, coffee corners, utility rooms, were planned across the entire floors which increase chances for staff to meet each others and make them easier to collaborate throughout the day. The connection stair between its 2-storey offices was also designed as a grandstand for the town hall where a hundred of staff can gather around for the company’s events. Above this space, we placed the symbolic with imported shining crystal chandelier to enhance our concept of the star and bring fabulous lighting to the property. Along the corridor, we intentionally place lighting in different size and difference direction to mimic the star in the sky.
© W Workspace
C.W工作空间
© W Workspace
C.W工作空间
出于健康和环境的考虑,我们通过规划大楼核心的大部分办公空间和功能厅,将所有工作人员都能看到外景的位置布置好,并与自然光直接连接。所有材料都是在环境支持的基础上精心挑选的。我们的设计中也包括了植物。这些被选中的植物通过在办公区域吸收二氧化碳来帮助净化空气,并被设计用来减少窗户上太阳的热量,特别是在我们放置垂直花园的西边,以减少下午的阳光热量。
With the concern of health and environment, we layout every work seating in the location that all staff can see the outside view and connect directly with natural light by planning most of office rooms and function rooms at the building core. All material was carefully selected based on their environmental support. Plants were also included in our design. Those selected plants help to clean up the air by capturing CO2 in the office area and were designed to reduce the heat from the sun along the windows, especially along the west edge where we put our vertical garden to decrease the afternoon sunlight heat.
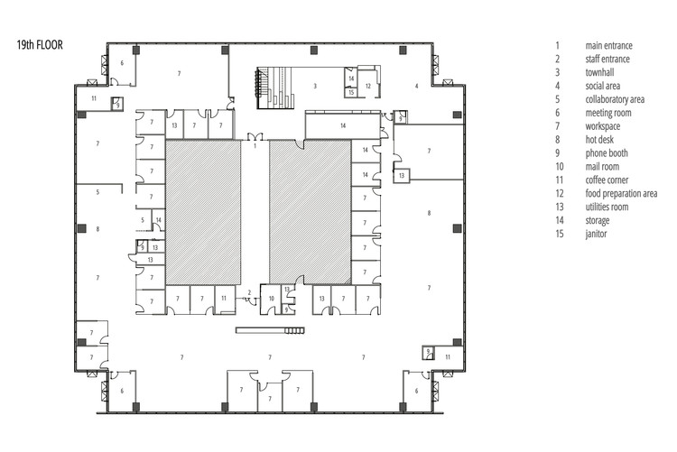
19th Floor Plan
19楼图则
© W Workspace
C.W工作空间
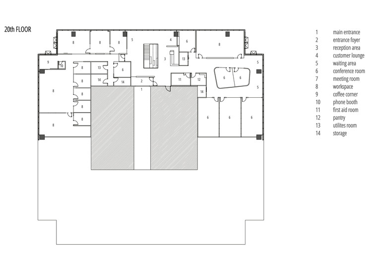
20th Floor Plan
20楼图则
© W Workspace
C.W工作空间
采用梅赛德斯-奔驰公司设计配色方案,将员工与公司文化联系起来。虽然黑色是他们的主要颜色,但在阴影中也有许多工作人员以前从未见过的颜色。为了将这些阴影放到空间中,我们使用了天空颜色变化的概念,并将它们匹配成功能区。这些都给空间带来了差异感的混合,也给工作环境带来了最大的能量。
Mercedes-Benz corporate design colour scheme was used to relate the staff with the company culture. Although black is their main colour, there are also many colours in the shades that staff hadn’t seen before. To put these shades into the space, we used the concept of the sky colour changes and matched them into function zones. These brought the mix of difference feeling into the space and bring out the most of energy into the working environment.
© W Workspace
C.W工作空间
Architects pbm
Location Bangkok, Thailand
Category Offices Interiors
Architects in Charge Kampanart Tejavanija, Kiatrabin Tejavanija, Krisanee Tejavanija, Kungwansiri Tejavanija, Narote Kittivanichanon
Area 2500.0 m2
Project Year 2017
Manufacturers Loading...
客服
消息
收藏
下载
最近

























