查看完整案例


收藏

下载
© Pawel Paniczko
(Pawel Paniczko)
架构师提供的文本描述。第二次世界大战博物馆建在靠近市中心的WłAdysław Bartoszewski广场上。它位于一个具有象征意义的建筑空间,也是一个记忆空间,距离历史悠久的波兰GDAńSK邮局200米,距韦斯特普拉特半岛3公里,这两处都于1939年9月遭到袭击。
Text description provided by the architects. The Museum of the Second World War is built on a lot at Władysław Bartoszewski Square near the centre of the city. It is located in a symbolic architectural space, which is also a space of memory, 200 metres from the historic Polish Post Office in Gdańsk and 3 kilometres across the water from Westerplatte Peninsula, both of which were attacked in September 1939.
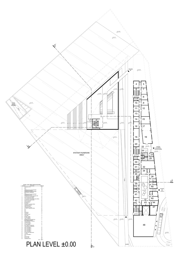
Ground Plan
为博物馆预留的1700平方米的地块与拉杜尼亚运河的西面相连,而它的南侧则打开了莫特ł河的广阔全景。今天,这是旧ńSK的郊区,但不久,它将成为这个城市现代化部分的核心,取代它的造船厂。
The 1,700-square-metre lot set aside for the museum touches the Radunia Canal to the west, while its south side opens onto a wide panorama of the Motława River. Today, these are the outskirts of Old Gdańsk but, soon, it will be the core of the modern section of the city that will replace its shipyard.
© Pawel Paniczko
(Pawel Paniczko)
博物馆建筑设计竞赛的陪审员们将其描述为“GDAńSK的新标志”、“新图标”和“雕塑设计”。评委会主席、世界上最著名的建筑师之一、柏林犹太博物馆的设计师丹尼尔·利贝斯金德认为,选择这个项目是“使用建筑语言,选定的项目讲述了过去的悲剧,现在的活力,打开了未来的前景。”这种不断崛起、充满活力的形式象征着下面的博物馆,同时也为这座历史城市及其未来提供了一个全景和壮观的方向。与gdańSK标志性的天际线相呼应,其造船厂起重机和教堂塔楼将城市的传统空间、尺度、材料和色彩与21世纪的博物馆联系在一起“。
Jurors of the competition for the museum’s architectural plan have described it as "a new symbol of Gdańsk", "a new icon" and a "sculptural design". Daniel Libeskind, the jury’s chairman and one of the world’s best-known architects, designer of the Jewish Museum Berlin, justified the selection of the project as "Using the language of architecture, the selected project narrates the tragedy of the past, the vitality of the present, and opens the horizons of the future. The rising, dynamic form symbolizes the museum below, while giving a panoramic and spectacular orientation to the historic city and its future. Echoing the iconic skyline of Gdańsk, with its shipyard cranes and church towers, the building ties together traditional urban spaces, scales, materials, and colours of the city with a 21st-century museum".
© Pawel Paniczko
(Pawel Paniczko)
其作者Kwadrat工作室称他们的项目是一个无声的设计,旨在唤起强烈的情感和深刻的反思。博物馆的空间划分为三个区域,象征着战时的过去、现在和未来之间的关系:过去隐藏在建筑物的地下层,现在出现在建筑物周围的开放空间中,而未来则表现为不断上升的凸起,其中包括一个观景台。
Its authors, Kwadrat studio, have called their project a silent design, intended to evoke powerful emotions and deep reflection. The museum’s spatial division into three areas symbolizes the relationships between the wartime past, the present and the future: the past is hidden on the building’s underground levels, the present appears in the open space around the building and the future is expressed by its rising protrusion, which includes a viewing platform.
该大厦占地约二万三千平方米,其中预留作永久展览用途的面积约为五千平方米。展览使用最现代的方法,从大国政治的角度,主要是通过普通民众的命运来描述第二次世界大战。这不仅限于波兰人的经验,而且还包括其他国家的经验。除了主要展览场地外,还有一千平方米用作临时展览。博物馆的使命也是作为一个教育、文化和研究中心。
The building has about 23,000 square metres of floor area, of which the space reserved for the permanent exhibition covers around 5,000 square metres. The exhibition uses the most modern methods to present the Second World War from the perspective of big-power politics but, primarily, through the fates of ordinary people. It is not limited to the experiences of Poles, but recount those of other nations. Apart from the main exhibition space, 1,000 square metres are devoted to temporary shows. The museum’s mission is also to serve as a centre of education, culture and research.
© Pawel Paniczko
(Pawel Paniczko)
演播室Architektoniczne Kwadrat声明
Studio Architektoniczne Kwadrat Statement
“进入格但斯克第二次世界大战博物馆竞赛时,我们充分意识到在设计过程中可能出现的问题,以及它与环境的相互作用和非常复杂的功能。
"Entering the Museum of The World War II competition in Gdansk we were fully aware of the problems that may occur during the design process as well as its interaction with the environment and very complicated functionality.
© Pawel Paniczko
(Pawel Paniczko)
为了适应这座城市的历史,创造一种可能同时成为它的象征的形式,我们必须在它的形式和纪念碑之间作出妥协,小心它的厚颜无耻和侵略性。我们希望这个建筑是一个微妙的建议,而不是对第二次世界大战悲剧的强烈引用。这就是如何将充满活力、表现力的形式的观念带到生活中去,撕裂了战争创造的覆盖世界的象征性和戏剧性的外壳。形式的设计要由一个字面意义来定义。它可能被每一个单独的观众以多种方式发现。
To fit in the historic part of the city, and creating a form that may become its icon at the same time, we had to make a compromise between its forma and monumentality, being careful with its impudence and aggressiveness. We wanted the architecture to be a delicate suggestion rather than strong quotation for the World War II tragedy. That is how the idea of dynamic, expressive form had been brought to live, tearing apart the symbolic and dramatic shell covering the world, created by the war. The design of the form is to be undefined by one literally meaning. It may be discovered in many ways by each and every individual viewer.
© Pawel Paniczko
(Pawel Paniczko)
© Pawel Paniczko
(Pawel Paniczko)
按照设计过程,我们同意将大部分场地作为一个开放的公共空间,因此我们将展览的一部分移到地下。进入地下是一个情绪设定的过程。从漠不关心和充满日常思想开始,以平衡和清澈的心态吊死,最终通过与展览的紧密联系,最终摆脱了恐惧、恐惧甚至痛苦。博物馆的地下部分是一条穿越战争地狱的道路,是一种时间旅行体验。“回归现实”始于博物馆周围的地面和公共空间,是思考的地方,是从地下收集经验的地方。但这不是结束,过去是未来的创造者,所以当观众爬上塔顶时,他看到了希望和自由,他看到了古城格但斯克。他看到它有他刚刚经历过的过去的想法。“
Following the design process, we have agreed to leave most of the site as an open public space, so we moved some part of an exhibition underground. Entering the subterranean levels is to be a mood setting process. Starting from being unconcern and full of everyday thoughts, to be hanged in the balance and clear minded, to finally fell the horror, frightens and even pain by a strong relation with the exhibition. The underground part of the museum is a path through hell of war, a time travel experience. The "back to reality" begins with the ground level and the public space surrounding the museum, the place to think, to gather the experience from the underground. But that's not the end, the past is a creator of the future, so as the viewer climbs the tower to the very top, he sees hope and freedom, he sees an old and young town of Gdansk. He sees it having thoughts of the past he had just experienced."
© Pawel Paniczko
(Pawel Paniczko)
Architects Studio Architektoniczne Kwadrat
Location Plac Władysława Bartoszewskiego 1, 80-862 Gdańsk, Poland
Category Museum
Architects in Charge Jacek Droszcz, Bazyli Domsta, Andrzej Kwieciński, Zbigniew Kowalewski
Area 57386.0 m2
Project Year 2017
Photographs Pawel Paniczko
Manufacturers Loading...
客服
消息
收藏
下载
最近






























































































