查看完整案例


收藏

下载
© Jack Lovel
C.Jack Lovel
架构师提供的文本描述。克郎
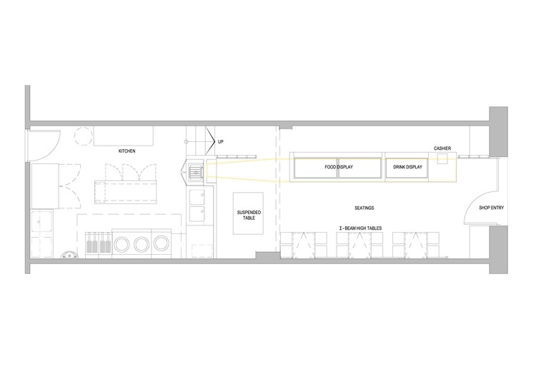
Text description provided by the architects. The Klang & Co. conceptual design pivots around a desire to combine the tactility of the experience of dining with the contextual quality of Malaysia Klang Depot, which is the provenance of the restaurant culture. The design draws inspiration from Heston's dish 'Sound of the sea', the dish composes the sound of sea wave audible through magnifying the echoes within the sea shell and the olfactory experience of smelling the sea water, Heston aims to heighten the senses associated with dining in order to enhance the innate quality of the ingredients.
本设计采用感官反应和上下文联想的元素,吊车结构增加了餐饮环境的视觉效能,反映了克郎经济繁荣所必需的工业油品加工,吊车的人工识别被悬挂的桌子、半透明的屏幕墙所抵消,这些都代表着海泡和大海;并在整个空间布局中呈现出明亮的一瞥效果,体现了克郎仓库夜生活的照明氛围。精心设计的元素渗透到餐厅,以美化整体设置,就像大海生活在大海中一样。
Our design deploys elements which invoke sensual responses and contextual association, the crane structure overhead adds visual potency to the dining environment, it reflects the industrial oil processing which is essential to Klang's economic boom, the artificial identity of the crane is counterpoised by the suspended tables, translucent screen wall which signify sea bubble and the sea; and level of bright glimpse effect throughout the spatial arrangement, embodied the illumination atmosphere of the Klang depot’s night life . Deliberately designed elements permeate the restaurant to embellish the overall setting just as sea lives dwell in the sea.
© Jack Lovel
C.Jack Lovel
餐厅的布局庆祝沿海工业过程的装卸货物集装箱,一个平行的可以与装卸预先包装的食品,就像现代工艺不再局限于手工产品,并不断扩大其可能性通过机器加工,外卖食品的工艺可以继承真实性和质量,而不影响其分配的有效性。
The restaurant layout celebrates the coastal industrial process of on and offloading cargo containers, a parallel can be drawn with the on and offloading of pre-packaged food, just like modern craft no longer limits itself to handmade goods and is continuously expanding its possibilities through machine processing, the craftsmanship of takeaway food can inherit authenticity and quality without compromising the effectiveness of its distribution.
© Jack Lovel
C.Jack Lovel
Architects PNEU Architects
Location 8/672 Glenferrie Rd, Hawthorn VIC 3122, Australia
Category Restaurant
Design Team Nelson Lee, Kiet Yeang Chew, Nick Huynh, Phoebe Wong
Area 56.0 m2
Project Year 2017
Manufacturers Loading...
客服
消息
收藏
下载
最近
















