查看完整案例


收藏

下载
遗址
该地段,其中的房子,有一个不规则的形状,纵向和垂直的街道,埃加斯莫尼兹博士,阿凡卡。太阳的方向(从街道到内部)是南北的.在地形方面,这片土地的入口有一个85厘米的斜坡。
在一个合并的城市地区,为了确保隐私,房子的程序被专门转向了内部的地段。
形式和功能约束
在经过批准的规则的规划中,建筑物的形状由这些规则重新排列,主体积应该是9x9m和两层。在这卷书的南面,另一卷,长6米,只有一层楼。
我们首先在地势上合并了一个平台,如果房子被插入。
为了避免建筑物对立面的巨大影响,我们设计了一套线条,合并了楼层,并在窗户和立面上建立了一些规则。结果是将海拔分成三个等份:S0 S1 S2(2.1 2.1 2.1米)。
这一规则允许在S0段的旋转中创建一个凹槽,以强调房子的入口。
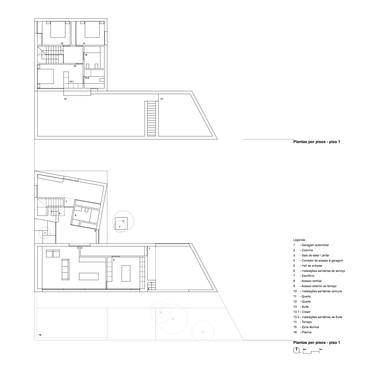
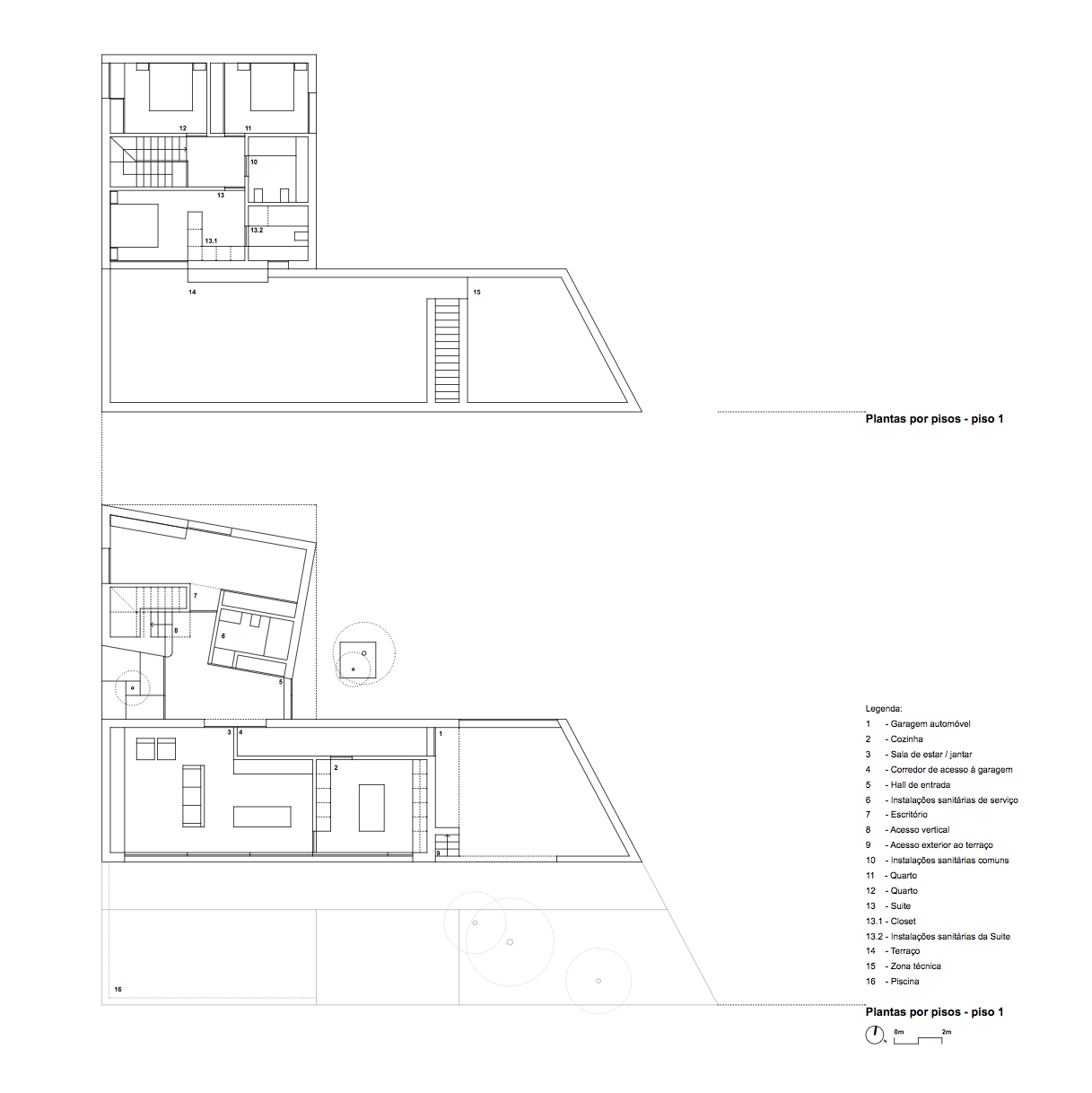
在住宅规划方面,内部空间分布按功能和楼层分开。底层的社会/服务区由门厅、厕所、墓室/图书馆、厨房、餐厅/客厅、车库和洗衣房组成。
在一楼,私人区域,由房间,厕所和主套房组成。主套房可直接进入南部的外部露台。最后一个连接到底层的室外游泳池。
建筑:努诺·席尔瓦(Nuno Silva)
地点:Avanca-Estarreja
客户:隐私
建筑面积:250平方米
土木工程师:英语。努诺·弗朗萨
电气工程师:英语。何塞·卡洛斯·洛佩斯
热工程师:英格。玛丽亚·路易斯·戈梅斯·佩雷拉建筑:ConStrutora de Loureiro
摄影:它。Ivo Tavares工作室-建筑摄影师
Firm Nu.ma Unipessoal, LDA
Type Residential › Private House
STATUS Built
YEAR 2017
keywordsarchitecture, architecture news, interiors, interior design, portfolio, spec, brands, marketplace, products House in Avanca
关键词建筑、建筑新闻、室内设计、组合、规格、品牌、市场、雅芳的产品屋
客服
消息
收藏
下载
最近




































































































