查看完整案例


收藏

下载
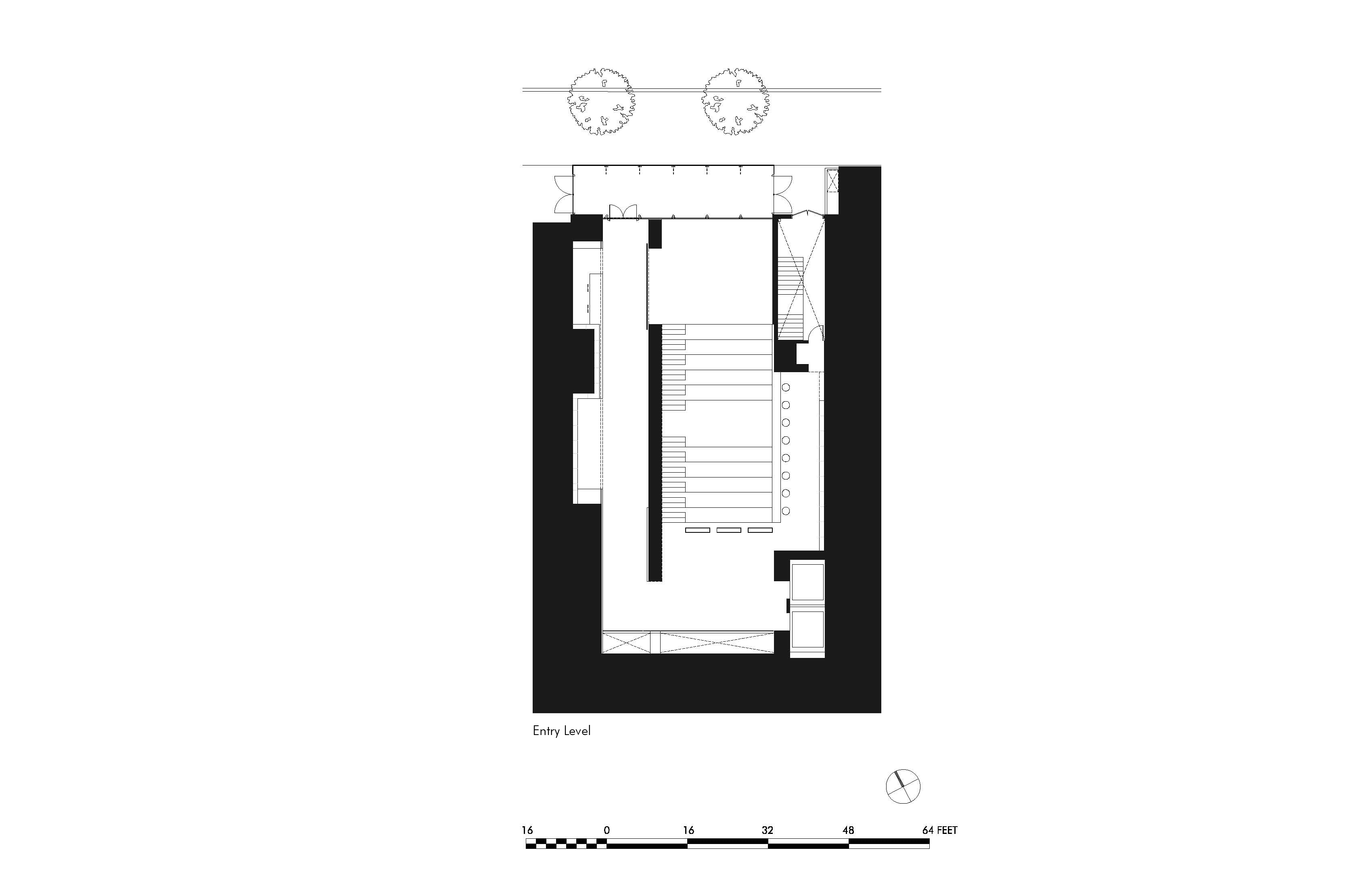
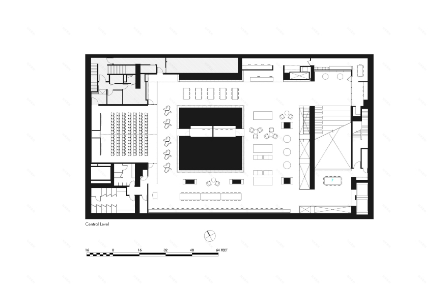
在一个拥有高端零售、豪华住宅、蓝筹股机构和办公室的社区,这个2万平方英尺的分馆将扮演一个急需的角色,成为当地社区和游客的试金石。尽管图书馆的网站大多低于等级,设置在一家新的40层酒店的底座上,但十座阿奎托斯的设计将黑暗的地下空间改造成了曼哈顿中心地带一处吸引人、开阔且光线充足的城市景观。
建筑师们并没有通过象征纽约公共图书馆作为一个机构的标志性立面来展示这个分支图书馆的身份。相反,外观完全消失,揭示了一个动态的内部街景和新的公共空间。在内部,创新的使用朴素的材料创造了丰富的调色板的纹理和表达。
由透明外墙构成的内墙,将是一幅由年轻艺术家委托创作的不断变化的画布,与街对面的现代艺术博物馆(Museum of现代派)的知名艺术界进行对话。事实上,作为一个整体,这座建筑寻求作为一个平台,进行变革、交流,并-通过它收集的资源-特别是人力资源-来提升个人和集体的地位。
这三层楼是公开连接的,为计划的最深角落带来光明和观点,并为社会互动和启示提供了无尽的机会。这座阶梯式的室内景观也将作为交流的主大厅,并成为图书馆参观者和游客获取信息的试金石。新图书馆分馆将举办讲座、电影和现场表演,甚至在几个小时后也将成为一个场所,也将成为53街文化邻居的宝贵补充。
适应性强的开放计划和书籍、艺术和技术的融合吸引了居住者,提供了一个方便、直观的景观,提供了广泛的公共和私人空间,认识到建立社区的唯一途径是赋予个人权力。图书收藏的结构是为了鼓励个人之间、用户和图书馆本身之间的更大互动,同时在图书馆、书籍、技术和艺术之间建立新的联系。
该项目的目的是实现LEED银至少在这样的可持续性特征,如25%的能源减少,40%的用水减少,日光控制50%的照明,和30%增加通风。内部包括FSC认证的木材,使用高比例的再生材料含量,所有地板和墙壁将覆盖在低VOC的完成。
十个小组:
恩里克·诺滕、安德烈·斯蒂尔、乔·默里、詹姆斯·卡塞、沃克·康、埃里克·马丁内兹、EktaDesai、AndrewDeibel、SebastianGutierrez、HarryByron、HannahLee
订约人,承包人:特纳建筑公司
哈德逊街375号6楼
英语字母表的第20个字母 646.964.4573
米尔罗斯顾问公司
纽约州纽约市第七大道498号,邮编:10018
英语字母表的第20个字母 212.643.4545
结构工程师:
坎托西诺
纽约东45街228号,3楼,纽约10017
英语字母表的第20个字母 212.687.9888
MEP/LEED/IT/AV:
科森蒂尼
两个宾夕法尼亚广场,第三楼,纽约,纽约10121
英语字母表的第20个字母 212.615.3887
照明设计师:
Horton Lees Brogden照明设计
公园大道南200号,1401套房,纽约10003
T 212.674.5580
声学工程师:
拉利声学咨询
百老汇#907H 611,纽约,10012
T 212.614.3280
Firm TEN Arquitectos
Type Educational › Library
STATUS Built
YEAR 2016
SIZE 25,000 sqft - 100,000 sqft
Photos Michael Moran
keywordsarchitecture, architecture news, interiors, interior design, portfolio, spec, brands, marketplace, products NYPL
关键词建筑、建筑新闻、室内设计、组合、规格、品牌、市场、产品
客服
消息
收藏
下载
最近

















