查看完整案例

收藏

下载
© Pato Safko
帕托·萨夫科
架构师提供的文本描述。C2 House代表了一个住在一个安静的绿色社区的家庭,对于那些全年都喜欢在户外度过空闲时间的人来说。主要的想法是在房子和花园里分散空间。带壁炉和夏季厨房的中庭成为家庭生活的核心。
Text description provided by the architects. C2 House represents a family living in a quiet green neighbourhood for people who like spending their free time outdoors all year long. The main idea is the diffusion of spaces within the house and the garden. The atrium with a fireplace and a summer kitchen becomes the core of the family life.
© Pato Safko
帕托·萨夫科
该项目的基础是邀请的建筑竞赛。一个安静的住宅区坐落在瓦赫河附近,是一个受欢迎的休闲区。宽敞的平地地产位于一条安静的街道的拐角处,位于独立房屋的建造区。由于地块的大小,可以将这些功能分成两个单层棱镜:当房子与花园和周围环境交流时,车库和健身房附近的站立物会造成来自北方邻居的障碍。
The project is based on an invited architectural competition. A quiet residential area lying close to the Váh River is a popular relaxation zone. The spacious flatland estate is located at the corner of a calm street in a built-up area of detached houses. The size of the plot makes it possible to divide the functions into two one-storey prisms: while the house communicates with the garden and with its surroundings, the nearby standing objects of the garage and the gym create a barrier from the northern neighbour.
© Pato Safko
帕托·萨夫科
Axonometric
© Pato Safko
帕托·萨夫科
房子的轮廓位于前景;车库被包裹在绿色植物中,并被推到后面。这是一个可爱的进入区出现在房子前面,在那里公共和私人领域相交。我们想打破斯洛伐克常见的街道模式:当你走在大街上时,你只会看到前面的车库,房子就隐藏在它们后面,这使得这条街变成了一个不友好和匿名的环境。
The outline of the house stands in the foreground; the garage is wrapped in the greenery and is pushed to the back. This is how a lovely entry zone has arisen in front of the house where the public and the private spheres intersect. We wanted to break the usual scheme of the street so common in Slovakia: when walking in the street, you just see garages in front and the houses are hidden behind them, what makes the street an unfriendly and anonymous environment.
© Pato Safko
帕托·萨夫科
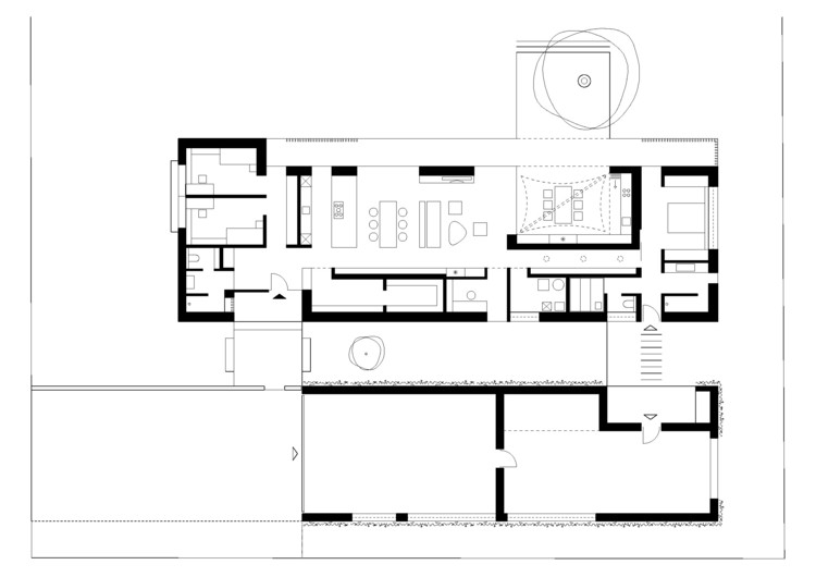
Ground Floor Plan
© Pato Safko
帕托·萨夫科
这家人喜欢花很多时间在户外。这就是为什么我们的项目提供了各种各样的户外空间:从主开放花园和两栋房子之间的石头花园,到宽敞的灌木丛,可以看到河边的大树,以及成为家庭生活中心和房屋建筑口音的中庭。
The family loves spending a lot of time outdoors. That is why our project offers a variety of spaces for staying outdoors: from the main open garden and the stone garden between two houses, to a spacious loggia with the view to huge trees by the river, and the atrium which becomes the centre of family life and the architectural accent of the house.
© Pato Safko
帕托·萨夫科
房子的内部布局合乎逻辑地遵循其环境条件和居民的生活方式。父母的主要居住空间和私人空间都与灌木丛和花园直接相连。下午的阳光透过中庭进入客厅。有了室外壁炉、夏季厨房和遮阳罩,中庭就成了一个可以全年使用的外部起居室。儿童房间故意设在靠近入口处,创造了一个自主的空间。
The inner layout of the house logically follows the conditions of its environment and the way of life of its inhabitants. The main living space and the private zone of the parents are both directly connected with the loggia and the garden. The afternoon sun enters the living room through the atrium. With an outdoor fireplace, a summer kitchen and a sun shade, the atrium becomes an exterior living room which can be used all year long. Children’s rooms are intentionally located close to the entrance, creating an autonomous space.
© Pato Safko
帕托·萨夫科
房子的物质方案唤起了家庭生活的温暖气氛。我们选择了几年来看起来更加迷人的天然材料。西伯利亚落叶松和乔尔-10在正面占主导地位。木材流畅地继续进入房子的内部,支持内外连接的想法,给这个家一种独特而舒适的氛围。
The material scheme of the house evokes the warm atmosphere of family living. We have chosen natural materials which will look even more charming over the years. Siberian larch wood and COR-TEN dominate on the facades. The wood fluently continues into the interior of the house, supporting the idea of the connection between the outside and inside and giving this home a unique and cosy atmosphere.
客服
消息
收藏
下载
最近


























