查看完整案例


收藏

下载
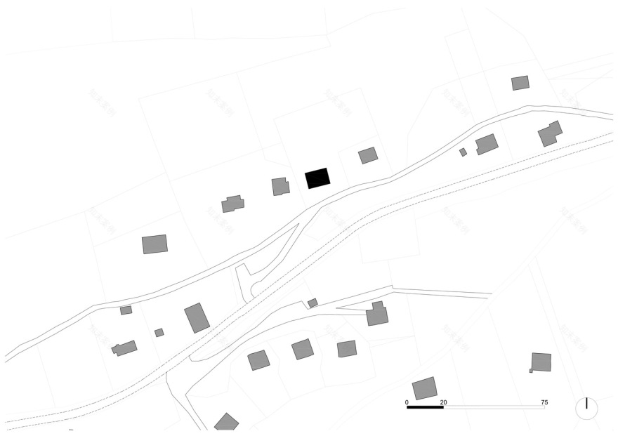
架构师提供的文本描述。在这个高度保存的阿尔卑斯山谷,严格的建筑准则允许很少的建筑表达自由。从建筑高度/宽度比到屋顶坡度,通过建筑材料和窗户大小,所有东西都受到严格控制,以加强当地被视为遗产保护的东西,但事实上却创造了营地建筑,无止境地模仿传统的山区住宅。
Text description provided by the architects. In this highly preserved Alpine valley, stringent architectural guidelines allow for very little freedom of architectural expression. Everything from building height/width ratio to roof slope, via building material and window sizes are strictly controlled to enforce what is locally perceived as patrimony protection but de facto creating camp architecture, endlessly mimicking traditional mountain homes.
© Olivier Martin Gambier
(奥利维尔·马丁·甘比尔)
© Simone Bossi
西蒙尼·博西
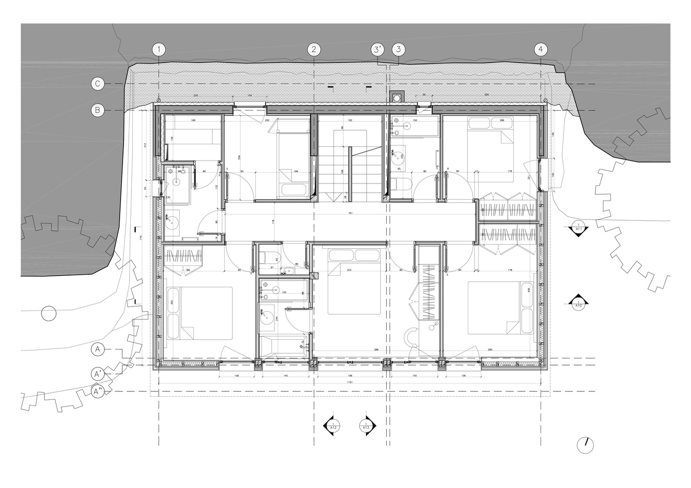
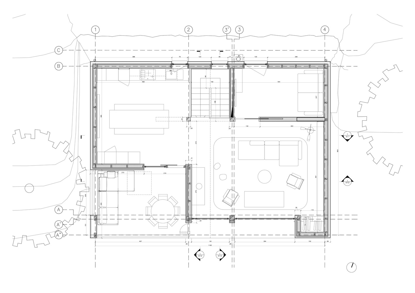
为了克服这些局限,我们在分析历史建筑时非常谨慎,以了解它们的形式,以及它们是如何塑造当地建筑文化的。然后,我们将这些信息集成到我们的设计中,只需避免所有人工和/或过时的元素,同时确保建筑完全符合代码。
In order to circumvent these limitations we took great care in analyzing historical buildings as to understand what their forms accomplished and how they shaped the local architectural culture. We then integrated this information into our design, simply avoiding all artificial and/or obsolete elements while making sure that the building was entirely code compliant.
© Simone Bossi
西蒙尼·博西
Architects Studio Razavi architecture
Location Manigod, France
Category Houses
Area 200.0 m2
Project Year 2017
Photographs Simone Bossi
Manufacturers Loading...
客服
消息
收藏
下载
最近



























































































