查看完整案例

收藏

下载
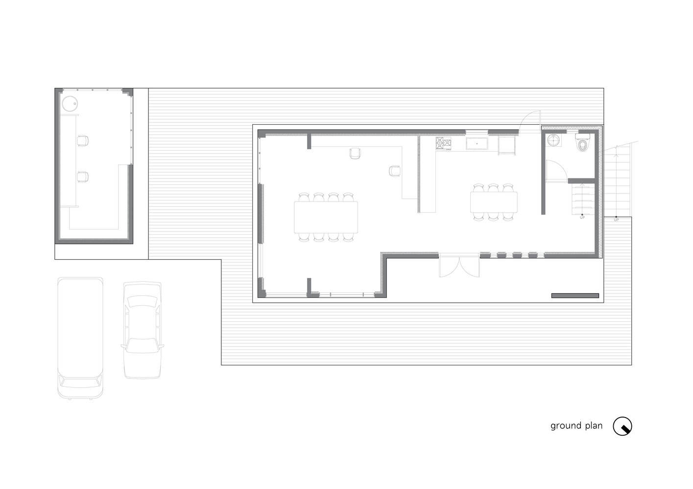
架构师提供的文本描述。光景原是在远离城市的东海沿海地区设计的.这样做的原因是为了为建筑师夫妇创造生产性的工作和生活空间,陶瓷艺术家“gwang-gyeong-won”位于阳阳枪,引领着韩国冲浪文化。通往三楼的独立楼梯供客人使用。游客喜欢四季的冲浪和娱乐活动。在一楼有一个开放的设计工作室和公共餐厅。二楼是这对夫妇的住所,在一楼内有一个隐蔽的台阶。这楼梯保护了这对夫妇的隐私。
Text description provided by the architects. Gwang-gyeong-won was designed in the coastal area of the East Sea far from the city. The reason for this is to create productive work and living space for couple in architect, ceramic artist ‘gwang-gyeong-won‘ is located in Yangyang-gun which is leading the Korean surfing culture. An independent stairway leading to the third floor is for guests. visiting people enjoy surfing and recreation for the four seasons. On the first floor there is an open design studio and common dining area. The second floor, which leads to a covert step inside the first floor, is the residence of the couple. This staircase protects the privacy of the couple.
© Eui-tae park
欧丽泰公园
© Eui-tae park
欧丽泰公园
这座建筑是在一片多年没有联系的天然土地上建造的,所以它尽可能的平静和整洁。我认为这种建筑可以与自然环境相协调。建筑物的某些部分用混凝土覆盖,没有任何覆盖材料,结构就完成了。这是一种没有视觉暴露的谦逊。
This building has been built on a natural land that has not been in touch for many years, so it is as calm and tidy as possible. I thought that this architecture could harmonize with the natural environment. Some parts of the building are covered with concrete without any covering material, and the structure is finished. This represents a humility that is not visually exposed.
© Eui-tae park
欧丽泰公园
© Eui-tae park
欧丽泰公园
保温是建筑内部的主要功能之一。建筑物外部的涂饰材料被白色的施托福染成了一团。
Insulation, one of the main functions of the building, was built inside. The finishing material of the exterior of the building was stained with white starkoflex.
所有的门和装饰造型在每一层,以及高度的窗口和门槛是传统的韩国风格。这样你就能感受到这个地区的自然性。陶器车间设在户外防火。主楼与附件楼层之间的桥面连接,便于统一和方便的移动。底层的开放公共区域连接到院子里的宽甲板上,这样人们就可以很容易地移动。此外,它还会引发各种任务和活动。每个空间要么是隐藏的,要么是开放的。尽量减少金属材料是为了防止建筑物因海盐而腐蚀。我们用泥土里的砾石做了小衣架。人们希望建筑能满足所有的功能。我所研究和设计的,是希望这种建筑能够真正的出现并激发人们的理想
All the doors and finishing moldings on each floor, and the height of the window and the threshold are traditional Korean styles. So you can feel the naturalness of this area. The pottery workshop was located in the outdoors for fire prevention. The deck floor connection between the main building and the floor of the annex allows unity and convenient movement. The open common area on the ground floor is connected to the wide deck plate on the yard, so that people can move easily. In addition, it induces various tasks and activities. Each space is either hidden or open to its use. Minimizing the metal material is to prevent the buildings from corroding due to sea salt. And we made small hangers with gravel from the earth. People want architecture to satisfy every function. What I studied and designed, It is hoped that this architecture will actually emerge and stimulate people's idealidade
© Eui-tae park
欧丽泰公园
客服
消息
收藏
下载
最近






























































